プレサンス大阪天満リバーシア 物件詳細情報
| 沿線・駅 所在地 |
賃料 共益費(管理費) |
敷金 礼金 |
間取り 専有面積 |
種別 建築年月日 |
|
|---|---|---|---|---|---|
|
JR大阪環状線 天満駅(徒歩7分)
大阪府大阪市北区天満橋2丁目 |
74,160円 8,840円 |
- 100,000円 |
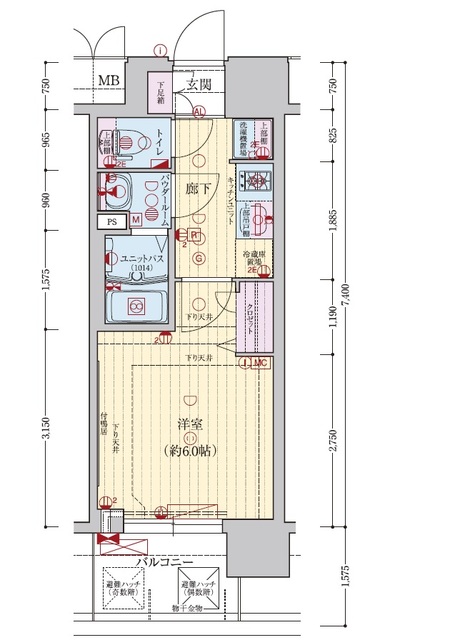
1K 21.83m2 |
マンション 2019年6月 |
|
この物件のお問い合わせ番号 0001-F000044558-0005
退去時ハウスクリーニング33000円。 室内清掃費用 33000円 鍵交換代 29700円 月額:プレサポ安心 990円 保証会社利用必須 プレサンスギャランティ 初回50%、総賃料の1.5%/月 月額(プレサポ安心 990円)

- 【公園】扇町公園

- 【スーパー】イズミヤ 天六樋之口店

- 【スーパー】スーパー玉出 天神橋店

- 【スーパー】阪急オアシス 同心店

- 【コンビニエンスストア】ファミリーマート同心町店

- 【コンビニエンスストア】セブンイレブン大阪同心北店

- 【コンビニエンスストア】セブンイレブン大阪同心2丁目店

- 【ドラッグストア】キリン堂 北区同心店

- 【総合病院】大阪市立総合医療センター
設備
| 部屋設備 | TV付モニターホン / 下駄箱 / ガスコンロ(コンロ(2口)) / エアコン / フローリング / 照明器具 / バルコニー / 浴室乾燥機 / 洗髪洗面化粧台 / 室内洗濯機置場 / バストイレ別 / シャワー付トイレ / クロゼット / 洗面所独立 / システムキッチン |
|---|---|
| 建物設備 | エレベータ / オートロック / 駐輪場 / 宅配ボックス / BSアンテナ / バイク置き場 / ネット利用料無料 / 防犯カメラ |
物件詳細
| 交通機関 | ・JR大阪環状線 天満駅(徒歩7分) ・大阪メトロ堺筋線 扇町駅(徒歩9分) | ||||
|---|---|---|---|---|---|
| 構造 | RC造 | 方位 | 西 | 階数/総階数 | 7階/10階建て |
| 総戸数 | 54戸 | 駐車場 | - | 入居日 | 即入居可 |
| 環境 | 【公園】扇町公園 (937m) / 【スーパー】イズミヤ 天六樋之口店 (524m) / 【スーパー】スーパー玉出 天神橋店 (768m) / 【スーパー】阪急オアシス 同心店 (603m) / 【コンビニエンスストア】ファミリーマート同心町店 (239m) / 【コンビニエンスストア】セブンイレブン大阪同心北店 (388m) / 【コンビニエンスストア】セブンイレブン大阪同心2丁目店 (176m) / 【ドラッグストア】キリン堂 北区同心店 (547m) / 【総合病院】大阪市立総合医療センター (1,175m) / コンビニ (239m) / スーパー (524m) / 総合病院 (1,175m) | ||||
| 内装代 | - | 償却 | 0円 | 保険 | 損保要 |
| 更新料 | 11,000円 | 水道料金等預かり金 | - | 特記事項 | - |
| 飲用水 | 公営 | ガス | 都市 | 排水 | 公共下水 |
| 給湯方式 | - | ||||
その他の費用
| 他 | プレサンスギャランティ初回50%、総賃料の1.5%/月 |
|---|
この物件のお問い合わせ番号 0001-F000044558-0005
類似物件一覧
-
7.4万円
-
-
-
7.2万円
-
1.0ヶ月
1K
大阪府大阪市北区末広町 -
6.8万円
-
1.0ヶ月
1K
大阪府大阪市北区天満3丁目 -
5.3万円
-
100,000円
1DK
大阪府大阪市北区本庄東2丁目 -
6.4万円
-
107,250円
1K
大阪府大阪市北区中津4丁目 -
6.8万円
-
1.0ヶ月
1K
大阪府大阪市北区天神西町 -
5.8万円
-
1.0ヶ月
1K
大阪府大阪市北区天満1丁目 -
8.6万円
-
100,000円
1R
大阪府大阪市北区天満2丁目 -
7.6万円
-
-
1DK
大阪府大阪市北区大淀中2丁目 -
5.5万円
-
-
1K
大阪府大阪市北区同心2丁目 -
5.9万円
-
67,000円
1K
大阪府大阪市北区中津6丁目 -
8.1万円
-
81,000円
1K
大阪府大阪市北区中崎西4丁目
店舗情報
お電話での物件問い合わせは無料通話で!(直営店のみ)
0001-F000044558-0005
- FC天六店
- 谷町線 天神橋筋六丁目駅(徒歩1分)
- Tel: 06-6882-4008
- 店舗詳細情報
このお部屋にお問い合わせ
あわせて店舗への来店を希望のお客様は、上の希望店舗の来店予約フォームをご利用ください(直営店舗のみ)
Sorry,Japanese & English only. 日本語・英語のみ対応しております。ご了承ください。
- ※取扱形態は媒介(先物)です。 / お部屋の情報は随時更新です / 各種情報と現況に差異がある場合は、現況優先となります。 / 保証会社の審査があります。 / 契約一時金は、契約時に借主より貸主に支払われ返還されない金銭です。

この物件のかんたんお問合せフォーム
お電話でお問合せ
外観・間取り図
























大阪府大阪市北区大淀北1丁目