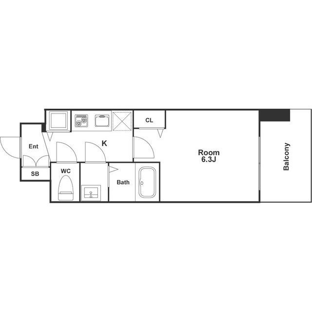
大阪府大阪市東淀川区東中島4丁目 1K 22.65m2 物件詳細情報
| 沿線・駅 所在地 |
賃料 共益費(管理費) |
敷金 礼金 |
間取り 専有面積 |
種別 建築年月日 |
|
|---|---|---|---|---|---|
|
JR東海道本線 新大阪駅(徒歩6分)
大阪府大阪市東淀川区東中島4丁目 |
68,500円 4,500円 |
- 109,500円 |
1K 22.65m2 |
マンション 2017年5月 |
|
この物件のお問い合わせ番号 0001-F000044114-0021
外観・間取り図
情報登録日:2026/02/06 情報更新日:2026/02/07 次回更新予定日:2026/02/14
設備
| 部屋設備 | 下駄箱 / エアコン / フローリング / バルコニー / 浴室乾燥機 / 室内洗濯機置場 / バストイレ別 / コンロ(コンロ(2口)) / シャワー付トイレ / クロゼット / 洗面所独立 / システムキッチン |
|---|---|
| 建物設備 | エレベータ / オートロック / 駐輪場 / 宅配ボックス / BSアンテナ / CSアンテナ / CATV / バイク置き場 / 防犯カメラ |
物件詳細
| 交通機関 | ・JR東海道本線 新大阪駅(徒歩6分) ・大阪メトロ御堂筋線 新大阪駅(徒歩8分) | ||||
|---|---|---|---|---|---|
| 構造 | RC造 | 方位 | 東 | 階数/総階数 | 11階/12階建て |
| 総戸数 | - | 駐車場 | - | 入居日 | 即入居可 |
| 環境 | |||||
| 内装代 | - | 償却 | 0円 | 保険 | 損保要 |
| 更新料 | - | 水道料金等預かり金 | - | 特記事項 | - |
| 飲用水 | - | ガス | 都市 | 排水 | その他 |
| 給湯方式 | - | ||||
その他の費用
| 一時 | 契約時ルームクリーニング代(不課税):33,000円/スマサポコンシェル入会金:5,500円/カギ代:27,500円 |
|---|---|
| 他 | スマサポ保証大手法人相談可 |
この物件のお問い合わせ番号 0001-F000044114-0021
類似物件一覧
-
6.5万円
-
-
-
8.3万円
-
-
1DK
大阪府大阪市東淀川区西淡路1丁目 -
8.7万円
-
-
1DK
大阪府大阪市東淀川区西淡路1丁目 -
8.7万円
-
-
1DK
大阪府大阪市東淀川区西淡路1丁目 -
8.4万円
-
-
1DK
大阪府大阪市東淀川区西淡路1丁目 -
5.8万円
-
1.0ヶ月
1K
大阪府大阪市東淀川区大桐3丁目 -
8.3万円
-
100,000円
1K
大阪府大阪市東淀川区東中島4丁目 -
8.6万円
-
-
1DK
大阪府大阪市東淀川区西淡路1丁目 -
7.0万円
-
-
1K
大阪府大阪市東淀川区西淡路1丁目 -
7.3万円
-
1.0ヶ月
1K
大阪府大阪市東淀川区東中島2丁目 -
6.1万円
-
-
1K
大阪府大阪市東淀川区東中島2丁目 -
8.7万円
-
87,000円
1DK
大阪府大阪市東淀川区西淡路1丁目
店舗情報
お電話での物件問い合わせは無料通話で!(直営店のみ)
0001-F000044114-0021
- 三重法人部
- 059-356-8041
- 三重県四日市市鵜の森1丁目1-19太平洋鵜の森ビル5階
このお部屋にお問い合わせ
あわせて店舗への来店を希望のお客様は、上の希望店舗の来店予約フォームをご利用ください(直営店舗のみ)
Sorry,Japanese & English only. 日本語・英語のみ対応しております。ご了承ください。
- ※取扱形態は媒介(先物)です。 / お部屋の情報は随時更新です / 各種情報と現況に差異がある場合は、現況優先となります。 / 保証会社の審査があります。 / 契約一時金は、契約時に借主より貸主に支払われ返還されない金銭です。

この物件のかんたんお問合せフォーム
お電話でお問合せ(法人用)



















大阪府大阪市東淀川区大桐2丁目