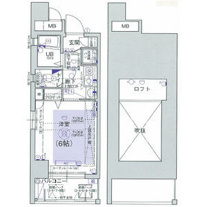
大阪府大阪市淀川区宮原1丁目 1K 18.97m2 物件詳細情報
| 沿線・駅 所在地 |
賃料 共益費(管理費) |
敷金 礼金 |
間取り 専有面積 |
種別 建築年月日 |
|
|---|---|---|---|---|---|
|
JR東海道本線 新大阪駅(徒歩4分)
大阪府大阪市淀川区宮原1丁目 |
50,000円 10,850円 |
- - |
1K 18.97m2 |
分譲賃貸 2001年11月 |
|
この物件のお問い合わせ番号 0001-F000038922-0025
外観・間取り図
情報登録日:2026/03/04 情報更新日:2026/03/05 次回更新予定日:2026/03/12
設備
| 部屋設備 | TV付モニターホン / 下駄箱 / ガスコンロ / エアコン / フローリング / ロフト / 床暖房 / バルコニー / 浴室乾燥機 / 室内洗濯機置場 / バストイレ別 / 保証人不要 / 角部屋 / 2人入居 / シャワー付トイレ / 洗面所独立 |
|---|---|
| 建物設備 | エレベータ / オートロック / 駐輪場 / 宅配ボックス / BSアンテナ / CSアンテナ / CATV / ネット利用料無料 |
物件詳細
| 交通機関 | ・JR東海道本線 新大阪駅(徒歩4分) ・大阪メトロ御堂筋線 新大阪駅(徒歩4分) | ||||
|---|---|---|---|---|---|
| 構造 | SRC造 | 方位 | 南 | 階数/総階数 | 4階/12階建て |
| 総戸数 | 168戸 | 駐車場 | 無料 | 入居日 | 相談 |
| 環境 | |||||
| 内装代 | - | 償却 | 0円 | 保険 | 損保要 |
| 更新料 | - | 水道料金等預かり金 | - | 特記事項 | - |
| 飲用水 | 公営 | ガス | 都市 | 排水 | 公共下水 |
| 給湯方式 | - | ||||
その他の費用
| 一時 | 初期費用:エステム安心クラブ入会金、契約事務手数料:16,500円/ランニング費用:更新事務手数料(更新時)、エステム:19,490円/その他費用:エアコンクリーニング代(一台につき)(:13,200円 |
|---|---|
| 他 | 初回保証料:総賃料の50%月額更新料:総賃料の1.5%初回保証料は決済金預かりです |
この物件のお問い合わせ番号 0001-F000038922-0025
類似物件一覧
-
5.8万円
-
-
-
3.5万円
-
-
1R
大阪府大阪市淀川区十三元今里1丁目 -
5.9万円
-
117,800円
1K
大阪府大阪市淀川区東三国1丁目 -
6.0万円
-
-
1K
大阪府大阪市淀川区三国本町1丁目 -
5.5万円
-
50,000円
1R
大阪府大阪市淀川区西中島7丁目 -
6.3万円
-
105,750円
1K
大阪府大阪市淀川区東三国3丁目 -
3.5万円
-
50,000円
1DK
大阪府大阪市淀川区三津屋北2丁目 -
4.3万円
-
60,000円
1K
大阪府大阪市淀川区宮原5丁目 -
3.5万円
-
-
1R
大阪府大阪市淀川区十三元今里1丁目 -
3.6万円
-
2.0ヶ月
1K
大阪府大阪市淀川区三津屋中1丁目 -
6.1万円
-
2.0ヶ月
1K
大阪府大阪市淀川区加島3丁目 -
6.2万円
-
-
1K
大阪府大阪市淀川区三津屋北2丁目
店舗情報
お電話での物件問い合わせは無料通話で!(直営店のみ)
0001-F000038922-0025
- FC江坂店
- 御堂筋線 江坂駅(徒歩1分)
- Tel: 06-6386-0321
- 店舗詳細情報
このお部屋にお問い合わせ
あわせて店舗への来店を希望のお客様は、上の希望店舗の来店予約フォームをご利用ください(直営店舗のみ)
Sorry,Japanese & English only. 日本語・英語のみ対応しております。ご了承ください。
- ※取扱形態は媒介(先物)です。 / お部屋の情報は随時更新です / 各種情報と現況に差異がある場合は、現況優先となります。 / 保証会社の審査があります。 / 契約一時金は、契約時に借主より貸主に支払われ返還されない金銭です。

この物件のかんたんお問合せフォーム
お電話でお問合せ




大阪府大阪市淀川区新北野3丁目