エステムコート新大阪]Vニスタ 物件詳細情報
| 沿線・駅 所在地 |
賃料 共益費(管理費) |
敷金 礼金 |
間取り 専有面積 |
種別 建築年月日 |
|
|---|---|---|---|---|---|
|
大阪メトロ御堂筋線 西中島南方駅(徒歩9分)
大阪府大阪市淀川区木川東3丁目 |
65,000円 7,970円 |
- - |
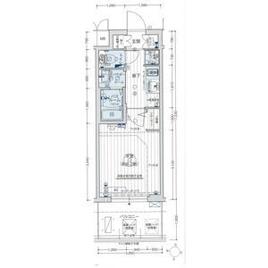
1K 21.46m2 |
分譲賃貸 2019年9月 |
|
この物件のお問い合わせ番号 0001-F000038830-0041
外観・間取り図
情報登録日:2026/03/15 情報更新日:2026/03/16 次回更新予定日:2026/03/23
設備
| 部屋設備 | TV付モニターホン / 下駄箱 / ガスコンロ(コンロ(2口)) / エアコン / フローリング / バルコニー / 浴室乾燥機 / 室内洗濯機置場 / バストイレ別 / 保証人不要 / 2人入居 / シャワー付トイレ / 洗面所独立 |
|---|---|
| 建物設備 | エレベータ / オートロック / 駐輪場 / 宅配ボックス / ペット可 / ネット利用料無料 / ネット環境(光ファイバ対応) / BSアンテナ / CSアンテナ / バイク置き場 / フロントサービス / 防犯カメラ |
物件詳細
| 交通機関 | ・大阪メトロ御堂筋線 西中島南方駅(徒歩9分) | ||||
|---|---|---|---|---|---|
| 構造 | RC造 | 方位 | 北 | 階数/総階数 | 9階/10階建て |
| 総戸数 | 133戸 | 駐車場 | - | 入居日 | 相談 |
| 環境 | |||||
| 内装代 | - | 償却 | 0円 | 保険 | 損保要 |
| 更新料 | - | 水道料金等預かり金 | - | 特記事項 | - |
| 飲用水 | 公営 | ガス | 都市 | 排水 | 公共下水 |
| 給湯方式 | - | ||||
その他の費用
| 一時 | 初期費用:エステム安心クラブ入会金、契約事務手数料:16,500円/ランニング費用:エステム安心クラブ(月額)、更新事:17,490円/その他費用:エアコンクリーニング代(一台につき)(:35,200円 |
|---|---|
| 他 | 初回保証料:総賃料の50%月額更新料:総賃料の1.5%初回保証料は決済金預かりです |
この物件のお問い合わせ番号 0001-F000038830-0041
類似物件一覧
-
4.7万円
-
100,000円
-
7.0万円
-
100,000円
1K
大阪府大阪市淀川区十八条1丁目 -
7.5万円
-
1.0ヶ月
1K
大阪府大阪市淀川区十三本町1丁目 -
6.7万円
73,000円
146,000円
1K
大阪府大阪市淀川区東三国2丁目 -
8.0万円
-
150,000円
1DK
大阪府大阪市淀川区東三国1丁目 -
7.5万円
-
1.0ヶ月
1K
大阪府大阪市淀川区西宮原2丁目 -
7.0万円
-
100,000円
1K
大阪府大阪市淀川区十八条1丁目 -
6.5万円
71,000円
142,000円
1K
大阪府大阪市淀川区東三国2丁目 -
7.0万円
20,000円
100,000円
1K
大阪府大阪市淀川区東三国4丁目 -
8.3万円
-
83,000円
1K
大阪府大阪市淀川区宮原4丁目 -
6.8万円
-
-
1K
大阪府大阪市淀川区木川東3丁目 -
7.7万円
-
-
1K
大阪府大阪市淀川区十八条1丁目
店舗情報
お電話での物件問い合わせは無料通話で!(直営店のみ)
0001-F000038830-0041
- 中部法人部
- 0800-888-3215
- 愛知県名古屋市中区錦3丁目16−27 栄パークサイドプレイス12F
このお部屋にお問い合わせ
あわせて店舗への来店を希望のお客様は、上の希望店舗の来店予約フォームをご利用ください(直営店舗のみ)
Sorry,Japanese & English only. 日本語・英語のみ対応しております。ご了承ください。
- ※取扱形態は媒介(先物)です。 / お部屋の情報は随時更新です / 各種情報と現況に差異がある場合は、現況優先となります。 / 保証会社の審査があります。 / 契約一時金は、契約時に借主より貸主に支払われ返還されない金銭です。

この物件のかんたんお問合せフォーム
お電話でお問合せ(法人用)













大阪府大阪市淀川区宮原5丁目