ザ・パークハビオ塚本 物件詳細情報
| 沿線・駅 所在地 |
賃料 共益費(管理費) |
敷金 礼金 |
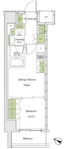
間取り 専有面積 |
種別 建築年月日 |
|
|---|---|---|---|---|---|
|
JR東海道本線 塚本駅(徒歩2分)
大阪府大阪市淀川区塚本2丁目 |
105,000円 10,000円 |
105,000円 105,000円 |
1DK 28.47m2 |
マンション 2024年7月 |
|
この物件のお問い合わせ番号 0001-F000038384-0037
退去時エアコン清掃代必須 13200円(税込み)

- 【スーパー】サンディ 塚本店

- 【スーパー】ライフ 塚本店

- 【コンビニエンスストア】セブンイレブン ハートインJR塚本駅西口店
設備
| 部屋設備 | TV付モニターホン / ガスコンロ(コンロ(2口)) / エアコン / フローリング / バルコニー / シャワー / 浴室乾燥機 / 追焚き / 室内洗濯機置場 / バストイレ別 / 角部屋 / シャワー付トイレ / クロゼット / 洗面所独立 / システムキッチン |
|---|---|
| 建物設備 | エレベータ / オートロック / 駐輪場 / 宅配ボックス / ペット可 / BSアンテナ / CSアンテナ / ネット利用料無料 / 防犯カメラ |
物件詳細
| 交通機関 | ・JR東海道本線 塚本駅(徒歩2分) ・JR東西線 御幣島駅(徒歩20分) | ||||
|---|---|---|---|---|---|
| 構造 | RC造 | 方位 | 南西 | 階数/総階数 | 14階/14階建て |
| 総戸数 | 104戸 | 駐車場 | 33,000円 | 入居日 | 2026年5月上旬 |
| 環境 | 【スーパー】サンディ 塚本店 (378m) / 【スーパー】ライフ 塚本店 (465m) / 【コンビニエンスストア】セブンイレブン ハートインJR塚本駅西口店 (95m) / コンビニ (95m) / スーパー (378m) | ||||
| 内装代 | - | 償却 | 0円 | 保険 | 損保要 |
| 更新料 | 30,000円 | 水道料金等預かり金 | - | 特記事項 | - |
| 飲用水 | 公営 | ガス | 都市 | 排水 | 公共下水 |
| 給湯方式 | - | ||||
その他の費用
| 他 | 初回保証料50% |
|---|
この物件のお問い合わせ番号 0001-F000038384-0037
類似物件一覧
-
12.3万円
123,000円
-
-
10.5万円
-
1.0ヶ月
1LDK
大阪府大阪市淀川区田川3丁目 -
7.5万円
-
-
1R
大阪府大阪市淀川区十三本町2丁目 -
9.0万円
-
-
1DK
大阪府大阪市淀川区木川東4丁目 -
7.8万円
-
87,500円
1DK
大阪府大阪市淀川区新高1丁目 -
11.9万円
-
-
1LDK
大阪府大阪市淀川区十八条2丁目 -
10.3万円
226,000円
226,000円
1LDK
大阪府大阪市淀川区木川東4丁目 -
8.0万円
-
1.0ヶ月
1K
大阪府大阪市淀川区東三国1丁目 -
12.2万円
-
122,000円
1DK
大阪府大阪市淀川区西宮原1丁目 -
13.1万円
-
-
1LDK
大阪府大阪市淀川区加島3丁目 -
8.0万円
-
-
1K
大阪府大阪市淀川区新高3丁目 -
12.2万円
122,000円
-
1LDK
大阪府大阪市淀川区新北野1丁目
店舗情報
お電話での物件問い合わせは無料通話で!(直営店のみ)
0001-F000038384-0037
- 三重法人部
- 059-356-8041
- 三重県四日市市鵜の森1丁目1-19太平洋鵜の森ビル5階
このお部屋にお問い合わせ
あわせて店舗への来店を希望のお客様は、上の希望店舗の来店予約フォームをご利用ください(直営店舗のみ)
Sorry,Japanese & English only. 日本語・英語のみ対応しております。ご了承ください。
- ※取扱形態は媒介(先物)です。 / お部屋の情報は随時更新です / 各種情報と現況に差異がある場合は、現況優先となります。 / 保証会社の審査があります。 / 契約一時金は、契約時に借主より貸主に支払われ返還されない金銭です。

この物件のかんたんお問合せフォーム
お電話でお問合せ(法人用)
外観・間取り図

























大阪府大阪市淀川区新北野1丁目