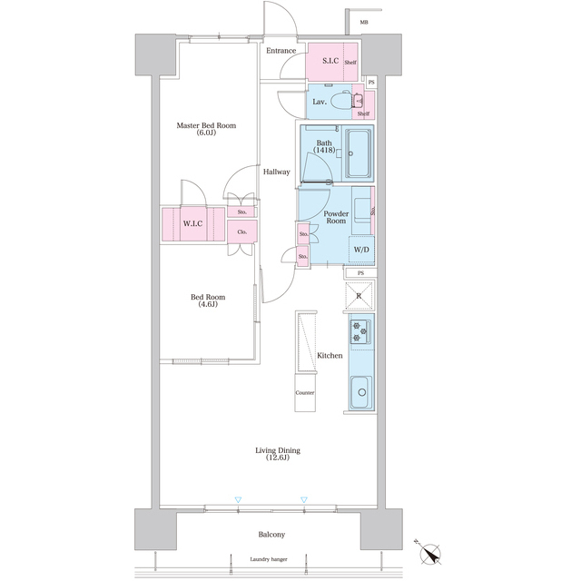
大阪府吹田市津雲台5丁目 1SLDK 65.80m2 物件詳細情報
| 沿線・駅 所在地 |
賃料 共益費(管理費) |
敷金 礼金 |
間取り 専有面積 |
種別 建築年月日 |
|
|---|---|---|---|---|---|
|
阪急電鉄千里線 山田駅(徒歩4分)
大阪府吹田市津雲台5丁目 |
179,000円 10,000円 |
89,500円 358,000円 |
1SLDK 65.80m2 |
マンション 2020年9月 |
|
この物件のお問い合わせ番号 0001-F000035595-0036

- 【小学校】吹田市千里津雲台小学校
設備
| 部屋設備 | TV付モニターホン / ガスコンロ / エアコン / フローリング / ウォークインクロゼット / バルコニー / 浴室乾燥機 / 追焚き / 室内洗濯機置場 / バストイレ別 / シャワー付トイレ / 洗面所独立 / システムキッチン |
|---|---|
| 建物設備 | オートロック / 駐輪場 / 宅配ボックス / 楽器可 / BSアンテナ / CSアンテナ / ネット利用料無料 / 防犯カメラ |
物件詳細
| 交通機関 | ・阪急電鉄千里線 山田駅(徒歩4分) ・大阪モノレール本線 山田駅(徒歩6分) | ||||
|---|---|---|---|---|---|
| 構造 | RC造 | 方位 | 南西 | 階数/総階数 | 5階/11階建て |
| 総戸数 | 99戸 | 駐車場 | - | 入居日 | 2026年3月下旬 |
| 環境 | 【小学校】吹田市千里津雲台小学校 (534m) / 吹田市千里津雲台小学校 (534m) / コンビニ (408m) | ||||
| 内装代 | - | 償却 | 0円 | 保険 | 損保要 |
| 更新料 | 189,000円 | 水道料金等預かり金 | - | 特記事項 | - |
| 飲用水 | - | ガス | 都市 | 排水 | その他 |
| 給湯方式 | - | ||||
その他の費用
| 一時 | 鍵交換代:27,500円 |
|---|---|
| 他 | 保証料:賃料等の50%(最低2万)、月額保証料:賃料等の1%(更新料無) |
この物件のお問い合わせ番号 0001-F000035595-0036
類似物件一覧
-
12.6万円
-
-
-
22.8万円
-
228,000円
1LDK
大阪府吹田市南金田2丁目 -
15.4万円
154,000円
1.0ヶ月
1LDK
大阪府吹田市広芝町 -
15.2万円
152,000円
1.0ヶ月
1LDK
大阪府吹田市広芝町 -
15.1万円
151,000円
1.0ヶ月
1LDK
大阪府吹田市広芝町 -
14.3万円
-
1.0ヶ月
1LDK
大阪府吹田市江坂町1丁目 -
13.2万円
-
1.0ヶ月
1LDK
大阪府吹田市垂水町3丁目 -
13.0万円
-
1.0ヶ月
2K
大阪府吹田市江坂町1丁目 -
15.5万円
155,000円
1.0ヶ月
1LDK
大阪府吹田市広芝町 -
15.2万円
152,000円
1.0ヶ月
1LDK
大阪府吹田市広芝町 -
22.8万円
-
228,000円
1LDK
大阪府吹田市南金田2丁目 -
12.6万円
-
-
2K
大阪府吹田市広芝町
店舗情報
お電話での物件問い合わせは無料通話で!(直営店のみ)
0001-F000035595-0036
- FC山田店
- 阪急電鉄千里線 山田駅(徒歩1分)
- Tel: 06-6872-3232
- 店舗詳細情報
このお部屋にお問い合わせ
あわせて店舗への来店を希望のお客様は、上の希望店舗の来店予約フォームをご利用ください(直営店舗のみ)
Sorry,Japanese & English only. 日本語・英語のみ対応しております。ご了承ください。
- ※取扱形態は媒介(先物)です。 / お部屋の情報は随時更新です / 各種情報と現況に差異がある場合は、現況優先となります。 / 保証会社の審査があります。 / 契約一時金は、契約時に借主より貸主に支払われ返還されない金銭です。

この物件のかんたんお問合せフォーム
お電話でお問合せ
外観・間取り図
















大阪府吹田市広芝町