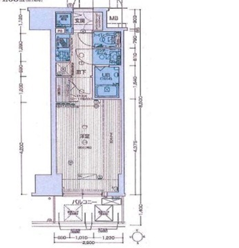
大阪府大阪市中央区糸屋町1丁目 1K 24.65m2 物件詳細情報
| 沿線・駅 所在地 |
賃料 共益費(管理費) |
敷金 礼金 |
間取り 専有面積 |
種別 建築年月日 |
|
|---|---|---|---|---|---|
|
大阪メトロ谷町線 谷町四丁目駅(徒歩4分)
大阪府大阪市中央区糸屋町1丁目 |
67,000円 8,000円 |
- 67,000円 |
1K 24.65m2 |
分譲賃貸 2014年2月 |
|
この物件のお問い合わせ番号 0001-F000031345-0014
室内清掃費用 44000円 鍵交換代 33000円 月額:ライフサポート 2420円 初期:書類作成代 22000円 退去時エアコン清掃費 19800円 保証会社利用必須 初回100% 月額1.5% 月額(ライフサポート 2420円)

- 【スーパー】KOHYO(コーヨー)内本町店

- 【スーパー】ライフ天神橋

- 【コンビニエンスストア】セブンイレブン 大阪内本町1丁目店

- 【コンビニエンスストア】ファミリーマート 本町橋店

- 【皮膚科】大阪肛門科診療所

- 【警察】大阪府警察第一方面本部

- 【ファーストフード】すき家 谷町三丁目店

- 【公園】南天満公園

- 【公園】東横堀緑道
設備
| 部屋設備 | TV付モニターホン / 下駄箱 / ガスコンロ(コンロ(2口)) / エアコン / フローリング / バルコニー / シャワー / 浴室乾燥機 / 室内洗濯機置場 / バストイレ別 / シャワー付トイレ / クロゼット / 洗面所独立 / システムキッチン |
|---|---|
| 建物設備 | エレベータ / オートロック / 駐輪場 / 宅配ボックス / デザイナーズマンション / BSアンテナ / CSアンテナ / CATV / バイク置き場 / 防犯カメラ |
物件詳細
| 交通機関 | ・大阪メトロ谷町線 谷町四丁目駅(徒歩4分) ・大阪メトロ谷町線 天満橋駅(徒歩9分) | ||||
|---|---|---|---|---|---|
| 構造 | RC造 | 方位 | 南 | 階数/総階数 | 2階/15階建て |
| 総戸数 | 84戸 | 駐車場 | 27,000円 | 入居日 | 2026年5月下旬 |
| 環境 | 【スーパー】KOHYO(コーヨー)内本町店 (483m) / 【スーパー】ライフ天神橋 (698m) / 【コンビニエンスストア】セブンイレブン 大阪内本町1丁目店 (322m) / 【コンビニエンスストア】ファミリーマート 本町橋店 (454m) / 【皮膚科】大阪肛門科診療所 (598m) / 【警察】大阪府警察第一方面本部 (606m) / 【ファーストフード】すき家 谷町三丁目店 (336m) / 【公園】南天満公園 (1,136m) / 【公園】東横堀緑道 (933m) / コンビニ (322m) / スーパー (483m) | ||||
| 内装代 | - | 償却 | 0円 | 保険 | 損保要 |
| 更新料 | 67,000円 | 水道料金等預かり金 | - | 特記事項 | - |
| 飲用水 | 公営 | ガス | 都市 | 排水 | 公共下水 |
| 給湯方式 | - | ||||
その他の費用
| 一時 | 書類作成代:22,000円/退去時エアコン清掃費:19,800円 |
|---|---|
| 他 | 初回100%月額1.5% |
この物件のお問い合わせ番号 0001-F000031345-0014
類似物件一覧
-
6.5万円
50,600円
100,000円
-
8.3万円
-
135,000円
1K
大阪府大阪市中央区北久宝寺町2丁目 -
7.1万円
-
-
1K
大阪府大阪市中央区内久宝寺町3丁目 -
6.7万円
-
1.0ヶ月
1K
大阪府大阪市中央区糸屋町1丁目 -
7.5万円
-
74,500円
1DK
大阪府大阪市中央区船越町2丁目 -
8.0万円
80,000円
-
1K
大阪府大阪市中央区瓦町2丁目 -
7.2万円
-
-
1K
大阪府大阪市中央区日本橋2丁目 -
7.4万円
-
1.0ヶ月
1K
大阪府大阪市中央区谷町9丁目 -
8.3万円
-
1.0ヶ月
1K
大阪府大阪市中央区常盤町1丁目 -
8.3万円
-
1.0ヶ月
1K
大阪府大阪市中央区常盤町2丁目 -
8.7万円
-
150,000円
1DK
大阪府大阪市中央区玉造2丁目 -
8.0万円
80,000円
-
1K
大阪府大阪市中央区瓦町2丁目
店舗情報
お電話での物件問い合わせは無料通話で!(直営店のみ)
0001-F000031345-0014
- FC本町店
- 御堂筋線 本町駅(徒歩1分)
- Tel: 06-6253-4455
- 店舗詳細情報
このお部屋にお問い合わせ
あわせて店舗への来店を希望のお客様は、上の希望店舗の来店予約フォームをご利用ください(直営店舗のみ)
Sorry,Japanese & English only. 日本語・英語のみ対応しております。ご了承ください。
- ※取扱形態は媒介(先物)です。 / お部屋の情報は随時更新です / 各種情報と現況に差異がある場合は、現況優先となります。 / 保証会社の審査があります。 / 契約一時金は、契約時に借主より貸主に支払われ返還されない金銭です。

この物件のかんたんお問合せフォーム
お電話でお問合せ
外観・間取り図
















大阪府大阪市中央区農人橋2丁目