大阪府大阪市中央区北久宝寺町1丁目 1LDK 35.79m2 物件詳細情報
| 沿線・駅 所在地 |
賃料 共益費(管理費) |
敷金 礼金 |
間取り 専有面積 |
種別 建築年月日 |
|
|---|---|---|---|---|---|
|
大阪メトロ堺筋線 堺筋本町駅(徒歩4分)
大阪府大阪市中央区北久宝寺町1丁目 |
127,000円 10,000円 |
- - |
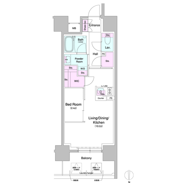
1LDK 35.79m2 |
マンション 2022年11月 |
|
この物件のお問い合わせ番号 0001-F000030312-0007
清掃費:33000円(退去時請求).エアコン清掃費:8250円(退去時請求)

- 【ファーストフード】マクドナルド 地下鉄谷町四丁目店

- 【ファーストフード】すき家 谷町三丁目店

- 【公園】東横堀緑道

- 【スーパー】ライフ 堺筋本町店

- 【スーパー】KOHYO(コーヨー) 南船場店

- 【スーパー】業務スーパー 松屋町筋本町橋店

- 【コンビニエンスストア】ファミリーマート 南久宝寺町二丁目店

- 【コンビニエンスストア】ローソン 和泉町店

- 【ドラッグストア】スギドラッグ 北久宝寺店
設備
| 部屋設備 | TV付モニターホン / エアコン / ウォークインクロゼット / 浴室乾燥機 / 室内洗濯機置場 / バストイレ別 / 角部屋 / シャワー付トイレ / 洗面所独立 / カウンターキッチン |
|---|---|
| 建物設備 | エレベータ / オートロック / 駐輪場 / 宅配ボックス / バイク置き場 / ネット利用料無料 / 防犯カメラ |
物件詳細
| 交通機関 | ・大阪メトロ堺筋線 堺筋本町駅(徒歩4分) ・大阪メトロ堺筋線 長堀橋駅(徒歩11分) | ||||
|---|---|---|---|---|---|
| 構造 | RC造 | 方位 | 北 | 階数/総階数 | 13階/15階建て |
| 総戸数 | 85戸 | 駐車場 | - | 入居日 | 即入居可 |
| 環境 | 【ファーストフード】マクドナルド 地下鉄谷町四丁目店 (1,060m) / 【ファーストフード】すき家 谷町三丁目店 (1,060m) / 【公園】東横堀緑道 (1,003m) / 【スーパー】ライフ 堺筋本町店 (278m) / 【スーパー】KOHYO(コーヨー) 南船場店 (363m) / 【スーパー】業務スーパー 松屋町筋本町橋店 (466m) / 【コンビニエンスストア】ファミリーマート 南久宝寺町二丁目店 (493m) / 【コンビニエンスストア】ローソン 和泉町店 (374m) / 【ドラッグストア】スギドラッグ 北久宝寺店 (245m) / コンビニ (493m) / スーパー (278m) | ||||
| 内装代 | - | 償却 | 0円 | 保険 | 損保要 |
| 更新料 | - | 水道料金等預かり金 | - | 特記事項 | - |
| 飲用水 | - | ガス | 都市 | 排水 | その他 |
| 給湯方式 | - | ||||
その他の費用
| 一時 | 駐輪場ステッカー:440円/鍵交換代:27,500円 |
|---|---|
| 他 | オリコフォレントインシュア保証料:賃料等の50%(最低2万)、月次保証料:賃料等の1%(更新料無) |
この物件のお問い合わせ番号 0001-F000030312-0007
類似物件一覧
-
9.8万円
-
-
-
13.5万円
-
270,000円
1LDK
大阪府大阪市中央区博労町1丁目 -
14.3万円
-
-
1LDK
大阪府大阪市中央区農人橋2丁目 -
14.1万円
-
-
1LDK
大阪府大阪市中央区久太郎町1丁目 -
11.8万円
-
1.0ヶ月
1DK
大阪府大阪市中央区内淡路町2丁目 -
11.3万円
-
1.0ヶ月
1DK
大阪府大阪市中央区安堂寺町1丁目 -
14.0万円
-
1.0ヶ月
1SLDK
大阪府大阪市中央区久太郎町1丁目 -
13.5万円
-
135,000円
1LDK
大阪府大阪市中央区南久宝寺町1丁目 -
11.0万円
110,000円
-
2K
大阪府大阪市中央区南船場2丁目 -
16.3万円
-
-
1LDK
大阪府大阪市中央区安土町1丁目 -
10.9万円
-
-
1LDK
大阪府大阪市中央区博労町1丁目 -
12.0万円
50,000円
400,000円
1LDK
大阪府大阪市中央区伏見町2丁目
店舗情報
お電話での物件問い合わせは無料通話で!(直営店のみ)
0001-F000030312-0007
- FC天満橋店
- 谷町線 天満橋駅(徒歩1分)
- Tel: 06-6920-4848
- 店舗詳細情報
このお部屋にお問い合わせ
あわせて店舗への来店を希望のお客様は、上の希望店舗の来店予約フォームをご利用ください(直営店舗のみ)
Sorry,Japanese & English only. 日本語・英語のみ対応しております。ご了承ください。
- ※取扱形態は媒介(先物)です。 / お部屋の情報は随時更新です / 各種情報と現況に差異がある場合は、現況優先となります。 / 保証会社の審査があります。 / 契約一時金は、契約時に借主より貸主に支払われ返還されない金銭です。

この物件のかんたんお問合せフォーム
お電話でお問合せ
外観・間取り図



















大阪府大阪市中央区安堂寺町2丁目