パークリュクス大阪天満 物件詳細情報
このお部屋は募集を終了しました
ただいまこのお部屋は入居募集を終了しており、募集時の情報となっております。お部屋探しの参考としてご利用ください。募集が再度開始しましたら、こちらのページで詳細情報を掲載の上募集開始致します。情報掲載日:2025/06/18
| 沿線・駅 所在地 |
間取り 専有面積 |
種別 建築年月日 |
|
|---|---|---|---|
|
大阪メトロ谷町線 天満橋駅(徒歩9分)
大阪府大阪市北区天満1丁目 |
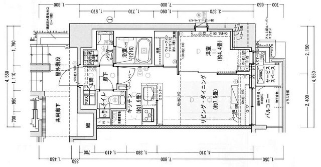
1LDK 35.00m2 |
分譲賃貸 2018年5月 |
|
この物件のお問い合わせ番号 0001-F000029678-0003
設備
| 部屋設備 | TV付モニターホン / 下駄箱 / ガスコンロ(コンロ(3口)) / エアコン / フローリング / ウォークインクロゼット / 床暖房 / バルコニー / シャワー / 浴室乾燥機 / 洗髪洗面化粧台 / 追焚き / 室内洗濯機置場 / バストイレ別 / 角部屋 / シャワー付トイレ / クロゼット / 洗面所独立 / カウンターキッチン / システムキッチン |
|---|---|
| 建物設備 | エレベータ / オートロック / 駐輪場 / 宅配ボックス / BSアンテナ / CSアンテナ / CATV / バイク置き場 / ネット利用料無料 / 防犯カメラ / 初期費用カード決済可 |
物件詳細
| 交通機関 | ・大阪メトロ谷町線 天満橋駅(徒歩9分) ・JR東西線 大阪天満宮駅(徒歩10分) | ||||
|---|---|---|---|---|---|
| 構造 | RC造 | 総階数 | 15階建て | ||
| 総戸数 | 56戸 | 入居日 | 入居不可(募集終了) | ||
| 飲用水 | 公営 | ガス | 都市 | 排水 | 公共下水 |
| 給湯方式 | - | ||||
この物件のお問い合わせ番号 0001-F000029678-0003
類似物件一覧
-
13.0万円
-
2.0ヶ月
-
11.3万円
-
-
1LDK
大阪府大阪市北区天満1丁目 -
9.7万円
-
-
2K
大阪府大阪市北区兎我野町 -
9.7万円
107,000円
214,000円
1DK
大阪府大阪市北区天神橋1丁目 -
10.6万円
-
-
1LDK
大阪府大阪市北区本庄東3丁目 -
11.9万円
65,000円
218,000円
1LDK
大阪府大阪市北区中崎3丁目 -
12.2万円
-
-
1LDK
大阪府大阪市北区兎我野町 -
16.0万円
-
-
1LDK
大阪府大阪市北区中崎西4丁目 -
11.9万円
-
-
1LDK
大阪府大阪市北区西天満5丁目 -
12.4万円
-
248,000円
1LDK
大阪府大阪市北区天満橋3丁目 -
13.5万円
-
1.0ヶ月
1LDK
大阪府大阪市北区西天満3丁目 -
13.7万円
-
68,500円
1LDK
大阪府大阪市北区本庄西2丁目
店舗情報
お電話での物件問い合わせは無料通話で!(直営店のみ)
0001-F000029678-0003
- FC天満橋店
- 谷町線 天満橋駅(徒歩1分)
- Tel: 06-6920-4848
- 店舗詳細情報
このお部屋に似ている物件を問い合わせる
あわせて店舗への来店を希望のお客様は、上の希望店舗の来店予約フォームをご利用ください(直営店舗のみ)
Sorry,Japanese & English only. 日本語・英語のみ対応しております。ご了承ください。
- ※各種情報と現況に差異がある場合は、現況優先となります。

似た物件を問い合わせる
お電話でお問合せ
間取り図

大阪府大阪市北区天神橋3丁目