S-RESIDENCE城東SEVER 物件詳細情報
| 沿線・駅 所在地 |
賃料 共益費(管理費) |
敷金 礼金 |
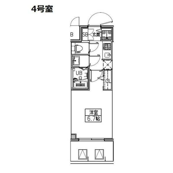
間取り 専有面積 |
種別 建築年月日 |
|
|---|---|---|---|---|---|
|
京阪電鉄本線 関目駅(徒歩5分)
大阪府大阪市城東区関目3丁目 |
71,500円 10,000円 |
- - |
1K 21.38m2 |
マンション 2024年2月 |
|
この物件のお問い合わせ番号 0001-F000029310-0022
退去時費用清掃代3.3万円(込)鍵交換代2.75万円(込)AC清掃代1.65万円(込)違約金1年未満解約総賃料の1ヶ月分ペット敷金1ヶ月分要法人契約礼金1ヶ月要・保証会社未加入の場合は敷金10万円必要更新料有(個人契約:22000円/法人契約:新賃料の1ヶ月)

- 【寿司】スシロー 関目店

- 【中華料理】餃子の王将 関目店

- 【公園】蒲生公園

- 【スーパー】ライフ 関目店

- 【スーパー】阪急オアシス野江店

- 【スーパー】阪急OASIS(阪急オアシス) 高殿店

- 【スーパー】阪急OASIS(オアシス) 野江店

- 【スーパー】食品館アプロ 新森店

- 【スーパー】スーパーナショナル 森小路店
設備
| 部屋設備 | TV付モニターホン / ガスコンロ(コンロ(2口)) / エアコン / フローリング / バルコニー / 浴室乾燥機 / 室内洗濯機置場 / バストイレ別 / 保証人不要 / シャワー付トイレ / クロゼット / 洗面所独立 / システムキッチン |
|---|---|
| 建物設備 | エレベータ / オートロック / 駐輪場 / 宅配ボックス / ペット可 / バイク置き場 / ネット利用料無料 |
物件詳細
| 交通機関 | ・京阪電鉄本線 関目駅(徒歩5分) ・大阪メトロ谷町線 関目高殿駅(徒歩10分) | ||||
|---|---|---|---|---|---|
| 構造 | RC造 | 方位 | 南 | 階数/総階数 | 7階/12階建て |
| 総戸数 | 88戸 | 駐車場 | 17,600円 | 入居日 | 2026年4月下旬 |
| 環境 | 【寿司】スシロー 関目店 (618m) / 【中華料理】餃子の王将 関目店 (640m) / 【公園】蒲生公園 (1,178m) / 【スーパー】ライフ 関目店 (534m) / 【スーパー】阪急オアシス野江店 (1,111m) / 【スーパー】阪急OASIS(阪急オアシス) 高殿店 (837m) / 【スーパー】阪急OASIS(オアシス) 野江店 (1,140m) / 【スーパー】食品館アプロ 新森店 (1,291m) / 【スーパー】スーパーナショナル 森小路店 (1,197m) / スーパー (534m) | ||||
| 内装代 | - | 償却 | 0円 | 保険 | 損保要 |
| 更新料 | 22,000円 | 水道料金等預かり金 | - | 特記事項 | - |
| 飲用水 | 公営 | ガス | 都市 | 排水 | 公共下水 |
| 給湯方式 | - | ||||
その他の費用
| 他 | 初回30%1年毎10,000円口座振替月額330円 |
|---|
この物件のお問い合わせ番号 0001-F000029310-0022
類似物件一覧
-
6.2万円
-
62,000円
-
7.6万円
-
100,000円
1R
大阪府大阪市城東区新喜多1丁目 -
6.9万円
-
2.0ヶ月
1K
大阪府大阪市城東区野江3丁目 -
9.0万円
20,000円
100,000円
1DK
大阪府大阪市城東区今福西4丁目 -
8.2万円
-
-
1DK
大阪府大阪市城東区放出西3丁目 -
6.6万円
-
90,000円
1K
大阪府大阪市城東区野江2丁目 -
6.0万円
-
-
1K
大阪府大阪市城東区今福西1丁目 -
9.0万円
20,000円
100,000円
1DK
大阪府大阪市城東区今福西4丁目 -
6.2万円
-
62,000円
1K
大阪府大阪市城東区今福南1丁目 -
6.7万円
-
60,000円
1K
大阪府大阪市城東区成育4丁目 -
7.3万円
-
1.0ヶ月
1K
大阪府大阪市城東区野江3丁目 -
9.0万円
20,000円
100,000円
1DK
大阪府大阪市城東区今福西4丁目
店舗情報
お電話での物件問い合わせは無料通話で!(直営店のみ)
0001-F000029310-0022
- 三重法人部
- 059-356-8041
- 三重県四日市市鵜の森1丁目1-19太平洋鵜の森ビル5階
このお部屋にお問い合わせ
あわせて店舗への来店を希望のお客様は、上の希望店舗の来店予約フォームをご利用ください(直営店舗のみ)
Sorry,Japanese & English only. 日本語・英語のみ対応しております。ご了承ください。
- ※取扱形態は媒介(先物)です。 / お部屋の情報は随時更新です / 各種情報と現況に差異がある場合は、現況優先となります。 / 保証会社の審査があります。 / 契約一時金は、契約時に借主より貸主に支払われ返還されない金銭です。

この物件のかんたんお問合せフォーム
お電話でお問合せ(法人用)
外観・間取り図


















大阪府大阪市城東区今福南1丁目