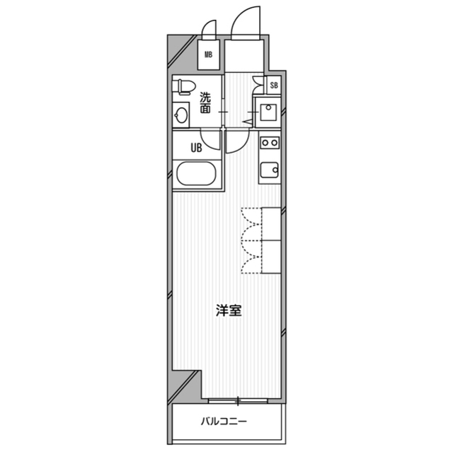
大阪府大阪市西区南堀江3丁目 1R 31.57m2 物件詳細情報
| 沿線・駅 所在地 |
賃料 共益費(管理費) |
敷金 礼金 |
間取り 専有面積 |
種別 建築年月日 |
|
|---|---|---|---|---|---|
|
大阪メトロ長堀鶴見緑地線 西長堀駅(徒歩5分)
大阪府大阪市西区南堀江3丁目 |
87,000円 15,000円 |
- - |
1R 31.57m2 |
マンション 2007年3月 |
|
この物件のお問い合わせ番号 0001-F000028756-0012
月額(定額水道料 2750円)

- 【公園】立売堀公園

- 【スーパー】スーパー玉出 堀江店

- 【ショッピングセンター】イオンモール大阪ドームシティ

- 【コンビニエンスストア】ローソン 南堀江四丁目店

- 【図書館】大阪市立中央図書館

- 【市役所・区役所】大阪市西区役所
設備
| 部屋設備 | TV付モニターホン / 下駄箱 / エアコン / フローリング / 床暖房 / バルコニー / シャワー / 浴室乾燥機 / 室内洗濯機置場 / バストイレ別 / コンロ(コンロ(2口)) / クロゼット / 洗面所独立 / システムキッチン |
|---|---|
| 建物設備 | エレベータ / オートロック / 駐輪場 / 宅配ボックス / CATV / 防犯カメラ |
物件詳細
| 交通機関 | ・大阪メトロ長堀鶴見緑地線 西長堀駅(徒歩5分) ・大阪メトロ長堀鶴見緑地線 西大橋駅(徒歩10分) | ||||
|---|---|---|---|---|---|
| 構造 | RC造 | 方位 | 北 | 階数/総階数 | 6階/12階建て |
| 総戸数 | 42戸 | 駐車場 | - | 入居日 | 即入居可 |
| 環境 | 【公園】立売堀公園 (942m) / 【スーパー】スーパー玉出 堀江店 (304m) / 【ショッピングセンター】イオンモール大阪ドームシティ (1,198m) / 【コンビニエンスストア】ローソン 南堀江四丁目店 (318m) / 【図書館】大阪市立中央図書館 (457m) / 【市役所・区役所】大阪市西区役所 (763m) / コンビニ (318m) / スーパー (304m) | ||||
| 内装代 | - | 償却 | 0円 | 保険 | 損保要 |
| 更新料 | 87,000円 | 水道料金等預かり金 | - | 特記事項 | - |
| 飲用水 | 公営 | ガス | 都市 | 排水 | 公共下水 |
| 給湯方式 | - | ||||
その他の費用
| 一時 | カギ費用:33,000円/退去時RC代:33,000円 |
|---|---|
| 他 | 初回保証料:30%更新:10,000円/年 |
この物件のお問い合わせ番号 0001-F000028756-0012
類似物件一覧
-
6.8万円
-
1.0ヶ月
-
6.5万円
-
75,000円
1K
大阪府大阪市西区川口3丁目 -
7.9万円
-
85,650円
1K
大阪府大阪市西区江戸堀1丁目 -
6.3万円
-
106,800円
1K
大阪府大阪市西区江戸堀3丁目 -
8.8万円
-
-
1K
大阪府大阪市西区靱本町3丁目 -
8.2万円
-
1.0ヶ月
1DK
大阪府大阪市西区九条1丁目 -
6.7万円
-
-
1K
大阪府大阪市西区九条1丁目 -
9.0万円
-
-
1K
大阪府大阪市西区西本町1丁目 -
9.6万円
96,000円
-
1K
大阪府大阪市西区京町堀1丁目 -
7.7万円
-
1.0ヶ月
1K
大阪府大阪市西区立売堀5丁目 -
7.0万円
-
1.0ヶ月
1R
大阪府大阪市西区九条南1丁目 -
7.6万円
-
-
1K
大阪府大阪市西区川口2丁目
店舗情報
お電話での物件問い合わせは無料通話で!(直営店のみ)
0001-F000028756-0012
- FC天満橋店
- 谷町線 天満橋駅(徒歩1分)
- Tel: 06-6920-4848
- 店舗詳細情報
このお部屋にお問い合わせ
あわせて店舗への来店を希望のお客様は、上の希望店舗の来店予約フォームをご利用ください(直営店舗のみ)
Sorry,Japanese & English only. 日本語・英語のみ対応しております。ご了承ください。
- ※取扱形態は媒介(先物)です。 / お部屋の情報は随時更新です / 各種情報と現況に差異がある場合は、現況優先となります。 / 保証会社の審査があります。 / 契約一時金は、契約時に借主より貸主に支払われ返還されない金銭です。

この物件のかんたんお問合せフォーム
お電話でお問合せ
外観・間取り図

























大阪府大阪市西区靱本町3丁目