大阪府大阪市西区新町3丁目 1LDK 44.64m2 物件詳細情報
このお部屋は募集を終了しました
ただいまこのお部屋は入居募集を終了しており、募集時の情報となっております。お部屋探しの参考としてご利用ください。募集が再度開始しましたら、こちらのページで詳細情報を掲載の上募集開始致します。情報掲載日:2025/07/20
| 沿線・駅 所在地 |
間取り 専有面積 |
種別 建築年月日 |
|
|---|---|---|---|
|
大阪メトロ長堀鶴見緑地線 西長堀駅(徒歩2分)
大阪府大阪市西区新町3丁目 |
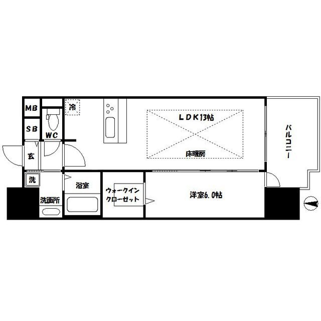
1LDK 44.64m2 |
分譲賃貸 2018年7月 |
|
この物件のお問い合わせ番号 0001-F000028615-0013
設備
| 部屋設備 | TV付モニターホン / 下駄箱 / ガスコンロ(コンロ(3口)) / エアコン / フローリング / ウォークインクロゼット / 床暖房 / バルコニー / シャワー / 浴室乾燥機 / 追焚き / 室内洗濯機置場 / バストイレ別 / 角部屋 / 2人入居 / シャワー付トイレ / クロゼット / 洗面所独立 / カウンターキッチン |
|---|---|
| 建物設備 | エレベータ / オートロック / 駐輪場 / 宅配ボックス / バリアフリー / BSアンテナ / CSアンテナ / CATV / バイク置き場 / ネット利用料無料 / 防犯カメラ |
物件詳細
| 交通機関 | ・大阪メトロ長堀鶴見緑地線 西長堀駅(徒歩2分) ・大阪メトロ四つ橋線 四ツ橋駅(徒歩15分) | ||||
|---|---|---|---|---|---|
| 構造 | RC造 | 総階数 | 15階建て | ||
| 総戸数 | 70戸 | 入居日 | 入居不可(募集終了) | ||
| 飲用水 | 公営 | ガス | 都市 | 排水 | 公共下水 |
| 給湯方式 | - | ||||
この物件のお問い合わせ番号 0001-F000028615-0013
類似物件一覧
-
16.2万円
-
1.0ヶ月
-
11.1万円
-
1.0ヶ月
1LDK
大阪府大阪市西区本田2丁目 -
11.3万円
-
-
1DK
大阪府大阪市西区南堀江2丁目 -
14.7万円
-
1.0ヶ月
1LDK
大阪府大阪市西区南堀江2丁目 -
11.2万円
-
-
1DK
大阪府大阪市西区西本町1丁目 -
10.8万円
-
1.0ヶ月
1LDK
大阪府大阪市西区本田2丁目 -
13.9万円
-
-
1LDK
大阪府大阪市西区立売堀3丁目 -
11.9万円
-
-
1LDK
大阪府大阪市西区土佐堀3丁目 -
12.5万円
-
-
1LDK
大阪府大阪市西区南堀江3丁目 -
14.0万円
150,000円
150,000円
1LDK
大阪府大阪市西区西本町1丁目 -
13.7万円
-
-
1LDK
大阪府大阪市西区立売堀3丁目 -
11.0万円
-
1.5ヶ月
1LDK
大阪府大阪市西区南堀江1丁目
店舗情報
お電話での物件問い合わせは無料通話で!(直営店のみ)
0001-F000028615-0013
- FC天満橋店
- 谷町線 天満橋駅(徒歩1分)
- Tel: 06-6920-4848
- 店舗詳細情報
このお部屋に似ている物件を問い合わせる
あわせて店舗への来店を希望のお客様は、上の希望店舗の来店予約フォームをご利用ください(直営店舗のみ)
Sorry,Japanese & English only. 日本語・英語のみ対応しております。ご了承ください。
- ※各種情報と現況に差異がある場合は、現況優先となります。

似た物件を問い合わせる
お電話でお問合せ
間取り図

大阪府大阪市西区土佐堀1丁目