大阪府大阪市北区中津4丁目 1K 22.40m2 物件詳細情報
| 沿線・駅 所在地 |
賃料 共益費(管理費) |
敷金 礼金 |
間取り 専有面積 |
種別 建築年月日 |
|
|---|---|---|---|---|---|
|
大阪メトロ御堂筋線 中津駅(徒歩8分)
大阪府大阪市北区中津4丁目 |
62,000円 10,000円 |
- - |
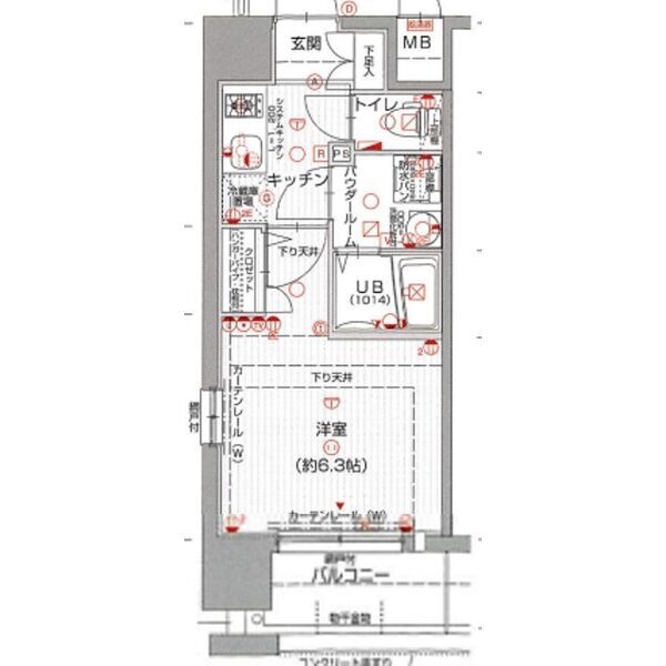
1K 22.40m2 |
分譲賃貸 2016年8月 |
|
この物件のお問い合わせ番号 0001-F000027974-0039
室内清掃費用 38500円 月額:24時間駆けつけサービス 990円 初期:退去時エアコンクリーニング代 16500円 保証会社利用必須 初回30%〜 更新1年毎1万円 小型犬もしくは猫合計2匹まで飼育可 飼育時1匹につき敷金1カ月必要 月額(24時間駆けつけサービス 990円)

- 【スーパー】ライフ 大淀中店

- 【警察】大淀警察署

- 【ショッピングセンター】阪急三番街 北館
設備
| 部屋設備 | TV付モニターホン / 下駄箱 / ガスコンロ(コンロ(2口)) / エアコン / フローリング / バルコニー / シャワー / 浴室乾燥機 / 室内洗濯機置場 / バストイレ別 / 角部屋 / シャワー付トイレ / クロゼット / 洗面所独立 / システムキッチン |
|---|---|
| 建物設備 | エレベータ / オートロック / 駐輪場 / 宅配ボックス / ペット可 / BSアンテナ / CSアンテナ / CATV / バイク置き場 / ネット利用料無料 / 防犯カメラ |
物件詳細
| 交通機関 | ・大阪メトロ御堂筋線 中津駅(徒歩8分) ・おおさか東線 大阪駅(徒歩19分) | ||||
|---|---|---|---|---|---|
| 構造 | RC造 | 方位 | 南西 | 階数/総階数 | 2階/10階建て |
| 総戸数 | 169戸 | 駐車場 | - | 入居日 | 2026年6月中旬 |
| 環境 | 【スーパー】ライフ 大淀中店 (752m) / 【警察】大淀警察署 (681m) / 【ショッピングセンター】阪急三番街 北館 (1,140m) / コンビニ (273m) / スーパー (752m) / 総合病院 (746m) | ||||
| 内装代 | - | 償却 | 0円 | 保険 | 損保要 |
| 更新料 | - | 水道料金等預かり金 | - | 特記事項 | - |
| 飲用水 | 公営 | ガス | 都市 | 排水 | 公共下水 |
| 給湯方式 | - | ||||
その他の費用
| 一時 | 退去時エアコンクリーニング代:16,500円 |
|---|---|
| 他 | 初回30%〜更新1年毎1万円 |
この物件のお問い合わせ番号 0001-F000027974-0039
類似物件一覧
-
5.5万円
55,000円
-
-
7.2万円
-
1.0ヶ月
1K
大阪府大阪市北区西天満4丁目 -
6.9万円
-
1.0ヶ月
1K
大阪府大阪市北区天満4丁目 -
6.8万円
-
-
1K
大阪府大阪市北区西天満6丁目 -
6.2万円
-
1.0ヶ月
1K
大阪府大阪市北区同心1丁目 -
5.5万円
-
-
1K
大阪府大阪市北区天満2丁目 -
7.4万円
-
1.0ヶ月
1K
大阪府大阪市北区天満2丁目 -
7.8万円
86,000円
-
1K
大阪府大阪市北区長柄東3丁目 -
7.6万円
-
-
1K
大阪府大阪市北区本庄西3丁目 -
5.4万円
-
1.0ヶ月
1K
大阪府大阪市北区浪花町 -
7.7万円
-
100,000円
1DK
大阪府大阪市北区大淀中4丁目 -
7.2万円
-
1.0ヶ月
1K
大阪府大阪市北区東天満2丁目
店舗情報
お電話での物件問い合わせは無料通話で!(直営店のみ)
0001-F000027974-0039
- FC天満橋店
- 谷町線 天満橋駅(徒歩1分)
- Tel: 06-6920-4848
- 店舗詳細情報
このお部屋にお問い合わせ
あわせて店舗への来店を希望のお客様は、上の希望店舗の来店予約フォームをご利用ください(直営店舗のみ)
Sorry,Japanese & English only. 日本語・英語のみ対応しております。ご了承ください。
- ※取扱形態は媒介(先物)です。 / お部屋の情報は随時更新です / 各種情報と現況に差異がある場合は、現況優先となります。 / 保証会社の審査があります。 / 契約一時金は、契約時に借主より貸主に支払われ返還されない金銭です。

この物件のかんたんお問合せフォーム
お電話でお問合せ
外観・間取り図























大阪府大阪市北区浪花町