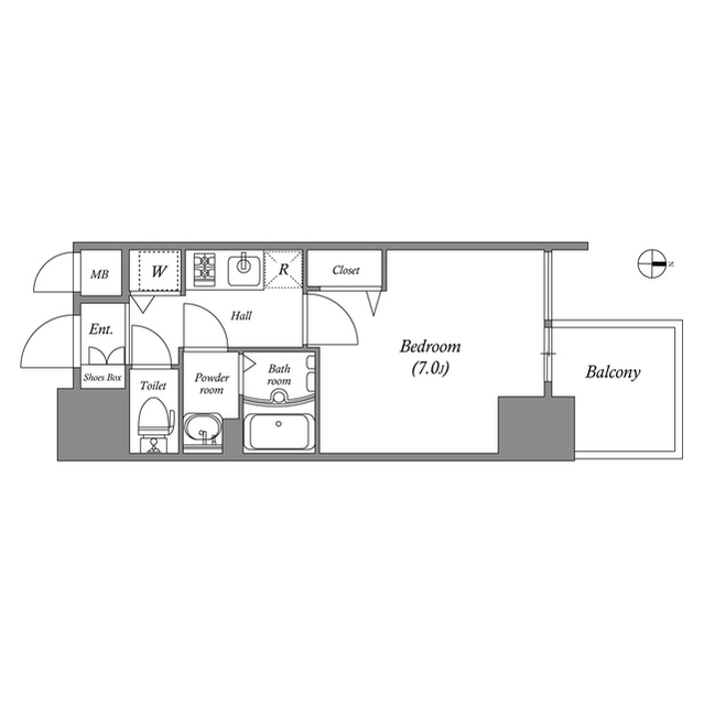
大阪府大阪市中央区南船場1丁目 1K 24.00m2 物件詳細情報
| 沿線・駅 所在地 |
賃料 共益費(管理費) |
敷金 礼金 |
間取り 専有面積 |
種別 建築年月日 |
|
|---|---|---|---|---|---|
|
大阪メトロ堺筋線 長堀橋駅(徒歩6分)
大阪府大阪市中央区南船場1丁目 |
91,000円 8,000円 |
- - |
1K 24.00m2 |
マンション 2019年7月 |
|
この物件のお問い合わせ番号 0001-F000021264-0005
外観・間取り図
情報登録日:2026/03/20 情報更新日:2026/03/21 次回更新予定日:2026/03/28
設備
| 部屋設備 | TV付モニターホン / 下駄箱 / エアコン / フローリング / バルコニー / シャワー / 浴室乾燥機 / 室内洗濯機置場 / バストイレ別 / コンロ(コンロ(2口)) / シャワー付トイレ / クロゼット / 洗面所独立 / システムキッチン |
|---|---|
| 建物設備 | エレベータ / オートロック / 宅配ボックス / 防犯カメラ |
物件詳細
| 交通機関 | ・大阪メトロ堺筋線 長堀橋駅(徒歩6分) | ||||
|---|---|---|---|---|---|
| 構造 | RC造 | 方位 | 北 | 階数/総階数 | 12階/14階建て |
| 総戸数 | 52戸 | 駐車場 | - | 入居日 | 即入居可 |
| 環境 | |||||
| 内装代 | - | 償却 | 0円 | 保険 | 損保要 |
| 更新料 | - | 水道料金等預かり金 | - | 特記事項 | - |
| 飲用水 | 公営 | ガス | 都市 | 排水 | 公共下水 |
| 給湯方式 | - | ||||
その他の費用
| 一時 | 退去時RC代:38,500円/カギ代:33,000円 |
|---|---|
| 他 | 株式会社エポスカード※大手法人相談可 |
この物件のお問い合わせ番号 0001-F000021264-0005
類似物件一覧
-
8.0万円
-
100,000円
-
9.5万円
-
-
1DK
大阪府大阪市中央区北久宝寺町1丁目 -
8.5万円
-
100,000円
1R
大阪府大阪市中央区南久宝寺町4丁目 -
8.6万円
-
-
1K
大阪府大阪市中央区南久宝寺町1丁目 -
11.2万円
-
1.0ヶ月
1R
大阪府大阪市中央区安堂寺町1丁目 -
7.7万円
-
1.0ヶ月
1R
大阪府大阪市中央区博労町1丁目 -
8.4万円
-
-
1K
大阪府大阪市中央区南久宝寺町1丁目 -
9.7万円
-
120,000円
1R
大阪府大阪市中央区瓦町1丁目 -
8.0万円
-
100,000円
1K
大阪府大阪市中央区北久宝寺町1丁目 -
8.1万円
-
1.0ヶ月
1K
大阪府大阪市中央区農人橋1丁目 -
7.2万円
-
-
1K
大阪府大阪市中央区上汐2丁目 -
9.4万円
-
2.0ヶ月
1DK
大阪府大阪市中央区糸屋町1丁目
店舗情報
お電話での物件問い合わせは無料通話で!(直営店のみ)
0001-F000021264-0005
- FC肥後橋店
- 四つ橋線 肥後橋駅(徒歩2分)
- Tel: 06-6441-5000
- 店舗詳細情報
このお部屋にお問い合わせ
あわせて店舗への来店を希望のお客様は、上の希望店舗の来店予約フォームをご利用ください(直営店舗のみ)
Sorry,Japanese & English only. 日本語・英語のみ対応しております。ご了承ください。
- ※取扱形態は媒介(先物)です。 / お部屋の情報は随時更新です / 各種情報と現況に差異がある場合は、現況優先となります。 / 保証会社の審査があります。 / 契約一時金は、契約時に借主より貸主に支払われ返還されない金銭です。

この物件のかんたんお問合せフォーム
お電話でお問合せ








大阪府大阪市中央区北久宝寺町1丁目