大阪府大阪市西区西本町3丁目 1DK 28.19m2 物件詳細情報
このお部屋は募集を終了しました
ただいまこのお部屋は入居募集を終了しており、募集時の情報となっております。お部屋探しの参考としてご利用ください。募集が再度開始しましたら、こちらのページで詳細情報を掲載の上募集開始致します。情報掲載日:2025/08/23
| 沿線・駅 所在地 |
間取り 専有面積 |
種別 建築年月日 |
|
|---|---|---|---|
|
大阪メトロ中央線 阿波座駅(徒歩1分)
大阪府大阪市西区西本町3丁目 |
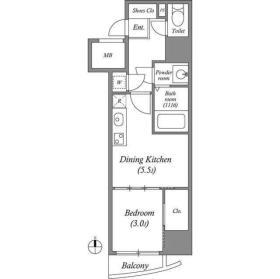
1DK 28.19m2 |
マンション 2019年1月 |
|
この物件のお問い合わせ番号 0001-F000021168-0036
設備
| 部屋設備 | TV付モニターホン / 下駄箱 / IHヒーター / エアコン / フローリング / バルコニー / シャワー / 浴室乾燥機 / 洗髪洗面化粧台 / 室内洗濯機置場 / バストイレ別 / コンロ(コンロ(2口)) / オール電化 / 角部屋 / シャワー付トイレ / クロゼット / 洗面所独立 / システムキッチン |
|---|---|
| 建物設備 | エレベータ / オートロック / 駐輪場 / 宅配ボックス / ネット利用料無料 / ネット環境(光ファイバ対応) / BSアンテナ / CSアンテナ / CATV / バイク置き場 / 防犯カメラ |
物件詳細
| 交通機関 | ・大阪メトロ中央線 阿波座駅(徒歩1分) ・大阪メトロ千日前線 阿波座駅(徒歩1分) | ||||
|---|---|---|---|---|---|
| 構造 | RC造 | 総階数 | 15階建て | ||
| 総戸数 | 201戸 | 入居日 | 入居不可(募集終了) | ||
| 飲用水 | 公営 | ガス | - | 排水 | 公共下水 |
| 給湯方式 | - | ||||
この物件のお問い合わせ番号 0001-F000021168-0036
類似物件一覧
-
11.8万円
-
118,000円
-
9.0万円
100,000円
200,000円
1K
大阪府大阪市西区靱本町3丁目 -
6.6万円
-
-
1K
大阪府大阪市西区靱本町1丁目 -
6.5万円
-
36,250円
1K
大阪府大阪市西区本田1丁目 -
9.6万円
-
-
1K
大阪府大阪市西区靱本町3丁目 -
9.0万円
-
-
1K
大阪府大阪市西区西本町1丁目 -
10.0万円
100,000円
-
1R
大阪府大阪市西区京町堀1丁目 -
6.6万円
-
-
1K
大阪府大阪市西区西本町2丁目 -
7.3万円
-
-
1K
大阪府大阪市西区靱本町1丁目 -
11.4万円
150,000円
114,000円
1K
大阪府大阪市西区西本町2丁目 -
7.1万円
-
1.0ヶ月
1K
大阪府大阪市西区南堀江4丁目 -
6.7万円
-
1.5ヶ月
1K
大阪府大阪市西区本田4丁目
店舗情報
お電話での物件問い合わせは無料通話で!(直営店のみ)
0001-F000021168-0036
- FC肥後橋店
- 四つ橋線 肥後橋駅(徒歩2分)
- Tel: 06-6441-5000
- 店舗詳細情報
このお部屋に似ている物件を問い合わせる
あわせて店舗への来店を希望のお客様は、上の希望店舗の来店予約フォームをご利用ください(直営店舗のみ)
Sorry,Japanese & English only. 日本語・英語のみ対応しております。ご了承ください。
- ※各種情報と現況に差異がある場合は、現況優先となります。

似た物件を問い合わせる
お電話でお問合せ
間取り図

大阪府大阪市西区新町1丁目