アプリーレ中之島 物件詳細情報
| 沿線・駅 所在地 |
賃料 共益費(管理費) |
敷金 礼金 |
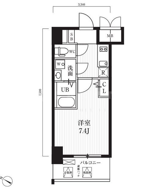
間取り 専有面積 |
種別 建築年月日 |
|
|---|---|---|---|---|---|
|
京阪電鉄中之島線 中之島駅(徒歩4分)
大阪府大阪市北区中之島4丁目 |
93,000円 9,000円 |
- 102,000円 |
1K 24.38m2 |
マンション 2020年10月 |
|
この物件のお問い合わせ番号 0001-F000020695-0022
鍵交換代 33000円 保証会社利用必須 保証人代行初回保証料は賃料等の40%、月額保証料は賃料等の1%、その他保証会社条件有

- 【スーパー】ライフ 土佐堀店

- 【コンビニエンスストア】セブンイレブン 大阪土佐堀ダイビル店

- 【総合病院】住友病院

- 【スーパー】阪急オアシス 中之島店

- 【公園】靱公園

- 【スーパー】KOHYO(コーヨー) 淀屋橋店

- 【ドラッグストア】キリン堂 肥後橋店
設備
| 部屋設備 | 下駄箱 / ガスコンロ(コンロ(2口)) / エアコン / バルコニー / シャワー / 浴室乾燥機 / 室内洗濯機置場 / バストイレ別 / シャワー付トイレ / クロゼット / 洗面所独立 / システムキッチン |
|---|---|
| 建物設備 | エレベータ / オートロック / 駐輪場 / 宅配ボックス / ペット可 / BSアンテナ / CSアンテナ / CATV / ネット利用料無料 / 防犯カメラ |
物件詳細
| 交通機関 | ・京阪電鉄中之島線 中之島駅(徒歩4分) ・JR大阪環状線 福島駅(徒歩10分) | ||||
|---|---|---|---|---|---|
| 構造 | RC造 | 方位 | 南西 | 階数/総階数 | 13階/15階建て |
| 総戸数 | 96戸 | 駐車場 | 近隣 | 入居日 | 即入居可 |
| 環境 | 【スーパー】ライフ 土佐堀店 (296m) / 【コンビニエンスストア】セブンイレブン 大阪土佐堀ダイビル店 (311m) / 【総合病院】住友病院 (497m) / 【スーパー】阪急オアシス 中之島店 (754m) / 【公園】靱公園 (873m) / 【スーパー】KOHYO(コーヨー) 淀屋橋店 (1,202m) / 【ドラッグストア】キリン堂 肥後橋店 (875m) / コンビニ (311m) / スーパー (296m) / 総合病院 (497m) | ||||
| 内装代 | - | 償却 | 0円 | 保険 | 損保要 |
| 更新料 | 30,000円 | 水道料金等預かり金 | - | 特記事項 | - |
| 飲用水 | 公営 | ガス | 都市 | 排水 | 公共下水 |
| 給湯方式 | - | ||||
その他の費用
| 他 | 【保証人代行】初回保証料は賃料等の50%、月額保証料は賃料等の1% |
|---|
この物件のお問い合わせ番号 0001-F000020695-0022
類似物件一覧
-
10.9万円
-
109,000円
-
7.2万円
-
72,000円
1R
大阪府大阪市北区西天満4丁目 -
9.0万円
-
1.0ヶ月
1K
大阪府大阪市北区南扇町 -
7.8万円
20,000円
100,000円
1K
大阪府大阪市北区兎我野町 -
7.2万円
-
160,200円
1K
大阪府大阪市北区南森町1丁目 -
8.5万円
-
1.0ヶ月
1K
大阪府大阪市北区西天満1丁目 -
8.9万円
-
1.0ヶ月
1K
大阪府大阪市北区中津6丁目 -
6.7万円
-
-
1K
大阪府大阪市北区同心1丁目 -
8.9万円
-
99,000円
1K
大阪府大阪市北区西天満4丁目 -
9.4万円
-
1.0ヶ月
1K
大阪府大阪市北区神山町 -
6.7万円
-
80,000円
1K
大阪府大阪市北区紅梅町 -
9.8万円
-
196,000円
1DK
大阪府大阪市北区西天満3丁目
店舗情報
お電話での物件問い合わせは無料通話で!(直営店のみ)
0001-F000020695-0022
- FC肥後橋店
- 四つ橋線 肥後橋駅(徒歩2分)
- Tel: 06-6441-5000
- 店舗詳細情報
このお部屋にお問い合わせ
あわせて店舗への来店を希望のお客様は、上の希望店舗の来店予約フォームをご利用ください(直営店舗のみ)
Sorry,Japanese & English only. 日本語・英語のみ対応しております。ご了承ください。
- ※取扱形態は媒介(先物)です。 / お部屋の情報は随時更新です / 各種情報と現況に差異がある場合は、現況優先となります。 / 保証会社の審査があります。 / 契約一時金は、契約時に借主より貸主に支払われ返還されない金銭です。

この物件のかんたんお問合せフォーム
お電話でお問合せ
外観・間取り図





















大阪府大阪市北区大淀中3丁目