レジディア玉造(旧AMARE長堀通) 物件詳細情報
| 沿線・駅 所在地 |
賃料 共益費(管理費) |
敷金 礼金 |
間取り 専有面積 |
種別 建築年月日 |
|
|---|---|---|---|---|---|
|
JR大阪環状線 玉造駅(徒歩7分)
大阪府大阪市東成区玉津1丁目 |
182,000円 12,000円 |
182,000円 364,000円 |
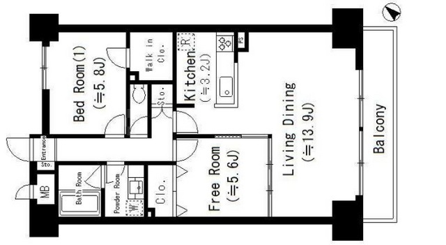
2LDK 68.65m2 |
マンション 2015年2月 |
|
この物件のお問い合わせ番号 0001-F000019532-0006

- 【公園】真田山公園
設備
| 部屋設備 | TV付モニターホン / 下駄箱 / ガスコンロ(コンロ(3口)) / エアコン / フローリング / ウォークインクロゼット / バルコニー / シャワー / 浴室乾燥機 / 洗髪洗面化粧台 / 室内洗濯機置場 / バストイレ別 / シャワー付トイレ / クロゼット / 洗面所独立 / カウンターキッチン / システムキッチン |
|---|---|
| 建物設備 | エレベータ / オートロック / 駐輪場 / 宅配ボックス / ペット可 / デザイナーズマンション / BSアンテナ / CSアンテナ / CATV / バイク置き場 / ネット利用料無料 / 防犯カメラ |
物件詳細
| 交通機関 | ・JR大阪環状線 玉造駅(徒歩7分) ・JR大阪環状線 森ノ宮駅(徒歩15分) | ||||
|---|---|---|---|---|---|
| 構造 | RC造 | 方位 | 南 | 階数/総階数 | 8階/11階建て |
| 総戸数 | 50戸 | 駐車場 | 無料 | 入居日 | 相談 |
| 環境 | 【公園】真田山公園 (1,381m) / コンビニ (305m) / スーパー (659m) / 総合病院 (195m) | ||||
| 内装代 | - | 償却 | 0円 | 保険 | 損保要 |
| 更新料 | 182,000円 | 水道料金等預かり金 | - | 特記事項 | - |
| 飲用水 | 公営 | ガス | 都市 | 排水 | 公共下水 |
| 給湯方式 | - | ||||
その他の費用
| 一時 | 退去時エアコンクリーニング費用:13,200円 |
|---|---|
| 他 | 内容:保証人有30%、保証人無50%/1年(初回のみ最低保証委託料2万円)更新料、 25%/1年口振手数料220円(税込)/月 |
この物件のお問い合わせ番号 0001-F000019532-0006
類似物件一覧
-
13.7万円
-
200,000円
-
13.8万円
8,000円
200,000円
2LDK
大阪府大阪市東成区大今里2丁目 -
17.4万円
-
1.0ヶ月
2LDK
大阪府大阪市東成区玉津1丁目 -
17.4万円
-
1.0ヶ月
2LDK
大阪府大阪市東成区玉津1丁目 -
18.2万円
182,000円
364,000円
2LDK
大阪府大阪市東成区玉津1丁目 -
18.0万円
180,000円
360,000円
2LDK
大阪府大阪市東成区玉津1丁目 -
13.8万円
8,000円
200,000円
2LDK
大阪府大阪市東成区大今里2丁目 -
13.6万円
8,000円
200,000円
2LDK
大阪府大阪市東成区大今里2丁目 -
18.2万円
182,000円
364,000円
2LDK
大阪府大阪市東成区玉津1丁目 -
13.5万円
-
200,000円
2LDK
大阪府大阪市東成区大今里2丁目 -
13.2万円
-
200,000円
2LDK
大阪府大阪市東成区大今里2丁目 -
13.7万円
-
200,000円
2LDK
大阪府大阪市東成区大今里2丁目
店舗情報
お電話での物件問い合わせは無料通話で!(直営店のみ)
0001-F000019532-0006
- FC心斎橋店
- 御堂筋線 心斎橋駅(徒歩2分)
- Tel: 06-6253-6060
- 店舗詳細情報
このお部屋にお問い合わせ
あわせて店舗への来店を希望のお客様は、上の希望店舗の来店予約フォームをご利用ください(直営店舗のみ)
Sorry,Japanese & English only. 日本語・英語のみ対応しております。ご了承ください。
- ※取扱形態は媒介(先物)です。 / お部屋の情報は随時更新です / 各種情報と現況に差異がある場合は、現況優先となります。 / 保証会社の審査があります。 / 契約一時金は、契約時に借主より貸主に支払われ返還されない金銭です。

この物件のかんたんお問合せフォーム
お電話でお問合せ
外観・間取り図

























大阪府大阪市東成区大今里2丁目