リーガル新大阪 物件詳細情報
| 沿線・駅 所在地 |
賃料 共益費(管理費) |
敷金 礼金 |
間取り 専有面積 |
種別 建築年月日 |
|
|---|---|---|---|---|---|
|
大阪メトロ御堂筋線 東三国駅(徒歩1分)
大阪府大阪市淀川区東三国1丁目 |
47,000円 6,600円 |
- 47,000円 |
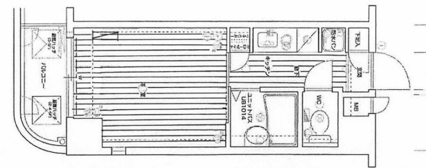
1K 17.55m2 |
マンション 1996年6月 |
|
この物件のお問い合わせ番号 0001-F000015073-0015

- 【コンビニエンスストア】ローソン東三国二丁目店

- 【ドラッグストア】ジャパン東三国店

- 【銀行】三菱UFJ銀行ATM東三国駅前

- 【郵便局】淀川東三国二郵便局

- 【ファーストフード】マクドナルド東三国

- 【弁当】キッチンオリジン 東三国店
設備
| 部屋設備 | 下駄箱 / IHヒーター / 冷蔵庫 / エアコン / フローリング / 照明器具 / バルコニー / シャワー / 室内洗濯機置場 / バストイレ別 / オール電化 / 角部屋 / シャワー付トイレ / クロゼット / システムキッチン |
|---|---|
| 建物設備 | エレベータ / オートロック / 駐輪場 / ネット環境(光ファイバ対応) / BSアンテナ / CATV / バイク置き場 / 防犯カメラ |
物件詳細
| 交通機関 | ・大阪メトロ御堂筋線 東三国駅(徒歩1分) ・JR東海道本線 東淀川駅(徒歩7分) | ||||
|---|---|---|---|---|---|
| 構造 | RC造 | 方位 | 西 | 階数/総階数 | 8階/8階建て |
| 総戸数 | 84戸 | 駐車場 | 近隣 | 入居日 | 即入居可 |
| 環境 | 【コンビニエンスストア】ローソン東三国二丁目店 (157m) / 【ドラッグストア】ジャパン東三国店 (211m) / 【銀行】三菱UFJ銀行ATM東三国駅前 (222m) / 【郵便局】淀川東三国二郵便局 (166m) / 【ファーストフード】マクドナルド東三国 (227m) / 【弁当】キッチンオリジン 東三国店 (310m) / コンビニ (157m) | ||||
| 内装代 | - | 償却 | 0円 | 保険 | 損保要 |
| 更新料 | - | 水道料金等預かり金 | - | 特記事項 | - |
| 飲用水 | 公営 | ガス | - | 排水 | 公共下水 |
| 給湯方式 | - | ||||
その他の費用
| 他 | 総賃料50%更新料12,000円 |
|---|
この物件のお問い合わせ番号 0001-F000015073-0015
類似物件一覧
-
6.0万円
-
90,000円
-
5.8万円
-
58,000円
1K
大阪府大阪市淀川区西中島7丁目 -
4.5万円
-
100,000円
1DK
大阪府大阪市淀川区東三国6丁目 -
3.6万円
-
2.0ヶ月
1K
大阪府大阪市淀川区三津屋中1丁目 -
3.8万円
-
50,000円
1DK
大阪府大阪市淀川区東三国6丁目 -
5.0万円
-
-
1K
大阪府大阪市淀川区十三東2丁目 -
6.0万円
-
90,000円
1R
大阪府大阪市淀川区十三本町1丁目 -
5.6万円
-
61,500円
1K
大阪府大阪市淀川区宮原1丁目 -
4.0万円
-
1.0ヶ月
1K
大阪府大阪市淀川区東三国1丁目 -
5.8万円
-
-
1K
大阪府大阪市淀川区新北野3丁目 -
6.1万円
-
-
1K
大阪府大阪市淀川区木川西3丁目 -
4.5万円
-
100,000円
1DK
大阪府大阪市淀川区西宮原2丁目
店舗情報
お電話での物件問い合わせは無料通話で!(直営店のみ)
0001-F000015073-0015
- FC東三国店
- 御堂筋線 東三国駅(徒歩1分)
- Tel: 06-6399-3251
- 店舗詳細情報
このお部屋にお問い合わせ
あわせて店舗への来店を希望のお客様は、上の希望店舗の来店予約フォームをご利用ください(直営店舗のみ)
Sorry,Japanese & English only. 日本語・英語のみ対応しております。ご了承ください。
- ※取扱形態は媒介(先物)です。 / お部屋の情報は随時更新です / 各種情報と現況に差異がある場合は、現況優先となります。 / 保証会社の審査があります。 / 契約一時金は、契約時に借主より貸主に支払われ返還されない金銭です。

この物件のかんたんお問合せフォーム
お電話でお問合せ
外観・間取り図




大阪府大阪市淀川区十三本町1丁目