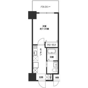
大阪府豊中市三国1丁目 1K 25.03m2 物件詳細情報
| 沿線・駅 所在地 |
賃料 共益費(管理費) |
敷金 礼金 |
間取り 専有面積 |
種別 建築年月日 |
|
|---|---|---|---|---|---|
|
阪急電鉄宝塚線 三国駅(徒歩8分)
大阪府豊中市三国1丁目 |
64,000円 8,000円 |
- - |
1K 25.03m2 |
マンション 2007年4月 |
|
この物件のお問い合わせ番号 0001-F000012990-0050
外観・間取り図
情報登録日:2026/03/06 情報更新日:2026/03/07 次回更新予定日:2026/03/14
設備
| 部屋設備 | TV付モニターホン / 下駄箱 / IHヒーター / エアコン / フローリング / 浴室乾燥機 / 室内洗濯機置場 / バストイレ別 / シャワー付トイレ / システムキッチン |
|---|---|
| 建物設備 | エレベータ / オートロック / 駐輪場 / 宅配ボックス / ペット可 / CATV |
物件詳細
| 交通機関 | ・阪急電鉄宝塚線 三国駅(徒歩8分) ・阪急電鉄宝塚線 庄内駅(徒歩15分) | ||||
|---|---|---|---|---|---|
| 構造 | RC造 | 方位 | 南西 | 階数/総階数 | 4階/10階建て |
| 総戸数 | 81戸 | 駐車場 | 19,800円 | 入居日 | 相談 |
| 環境 | |||||
| 内装代 | - | 償却 | 0円 | 保険 | 損保要 |
| 更新料 | 64,000円 | 水道料金等預かり金 | - | 特記事項 | - |
| 飲用水 | - | ガス | - | 排水 | その他 |
| 給湯方式 | - | ||||
この物件のお問い合わせ番号 0001-F000012990-0050
類似物件一覧
-
5.8万円
-
80,000円
-
7.1万円
-
71,000円
1K
大阪府豊中市東寺内町 -
7.1万円
-
71,000円
1K
大阪府豊中市東寺内町 -
5.6万円
-
56,000円
1K
大阪府豊中市東泉丘1丁目 -
5.9万円
-
1.0ヶ月
1K
大阪府豊中市立花町1丁目 -
5.2万円
-
52,000円
1K
大阪府豊中市本町9丁目 -
7.1万円
-
1.0ヶ月
1K
大阪府豊中市原田元町2丁目 -
6.0万円
-
-
1SDK
大阪府豊中市柴原町3丁目 -
5.2万円
-
-
1R
大阪府豊中市赤阪1丁目 -
5.1万円
-
51,000円
1K
大阪府豊中市箕輪1丁目 -
6.9万円
-
80,000円
1K
大阪府豊中市庄内幸町2丁目 -
7.1万円
-
71,000円
1K
大阪府豊中市庄内宝町3丁目
店舗情報
お電話での物件問い合わせは無料通話で!(直営店のみ)
0001-F000012990-0050
- FC桃山台店
- 北大阪急行南北線 桃山台駅(徒歩1分)
- Tel: 06-6872-3211
- 店舗詳細情報
このお部屋にお問い合わせ
あわせて店舗への来店を希望のお客様は、上の希望店舗の来店予約フォームをご利用ください(直営店舗のみ)
Sorry,Japanese & English only. 日本語・英語のみ対応しております。ご了承ください。
- ※取扱形態は媒介(先物)です。 / お部屋の情報は随時更新です / 各種情報と現況に差異がある場合は、現況優先となります。 / 保証会社の審査があります。 / 契約一時金は、契約時に借主より貸主に支払われ返還されない金銭です。

この物件のかんたんお問合せフォーム
お電話でお問合せ




大阪府豊中市熊野町2丁目