アンプルール クラージュコリーヌシャンU 物件詳細情報
| 沿線・駅 所在地 |
賃料 共益費(管理費) |
敷金 礼金 |
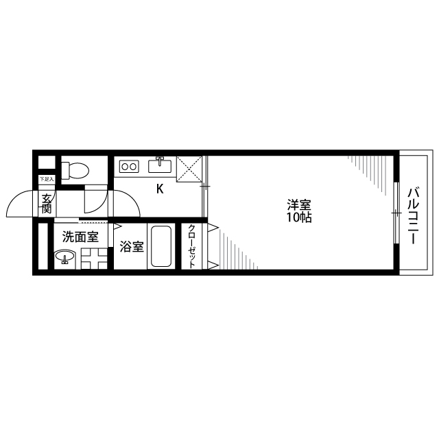
間取り 専有面積 |
種別 建築年月日 |
|
|---|---|---|---|---|---|
|
阪急電鉄箕面線 桜井駅(徒歩14分)
大阪府豊中市宮山町4丁目 |
58,000円 3,000円 |
- - |
1K 32.83m2 |
アパート 2010年2月 |
|
この物件のお問い合わせ番号 0001-F000011966-0009

- 【幼稚園】春日荘聖マリア幼稚園

- 【中学校】豊中市立 第二中学校

- 【スーパー】食品館アプロ 豊中春日店
設備
| 部屋設備 | TV付モニターホン / エアコン / フローリング / バルコニー / 浴室乾燥機 / 室内洗濯機置場 / バストイレ別 / システムキッチン |
|---|---|
| 建物設備 | オートロック / ネット環境(光ファイバ対応) / 防犯カメラ |
物件詳細
| 交通機関 | ・阪急電鉄箕面線 桜井駅(徒歩14分) ・大阪モノレール本線 少路駅(徒歩19分) | ||||
|---|---|---|---|---|---|
| 構造 | 軽量鉄骨造 | 方位 | 西 | 階数/総階数 | 1階/2階建て |
| 総戸数 | 24戸 | 駐車場 | 12,100円 | 入居日 | 2026年5月下旬 |
| 環境 | 【幼稚園】春日荘聖マリア幼稚園 (641m) / 【中学校】豊中市立 第二中学校 (588m) / 【スーパー】食品館アプロ 豊中春日店 (431m) / 豊中市立 第二中学校 (588m) / スーパー (431m) | ||||
| 内装代 | - | 償却 | 0円 | 保険 | 損保要 |
| 更新料 | - | 水道料金等預かり金 | - | 特記事項 | - |
| 飲用水 | - | ガス | - | 排水 | その他 |
| 給湯方式 | - | ||||
その他の費用
| 他 | 株式会社木下グループ |
|---|
この物件のお問い合わせ番号 0001-F000011966-0009
類似物件一覧
-
6.7万円
-
50,000円
-
6.6万円
-
66,000円
1K
大阪府豊中市豊南町西1丁目 -
7.3万円
-
73,000円
1K
大阪府豊中市小曽根3丁目 -
4.8万円
-
48,000円
1K
大阪府豊中市庄内栄町3丁目 -
6.9万円
-
-
1K
大阪府豊中市螢池西町2丁目 -
4.5万円
-
-
1K
大阪府豊中市上新田2丁目 -
6.4万円
-
69,000円
1K
大阪府豊中市小曽根4丁目 -
4.6万円
-
1.0ヶ月
1K
大阪府豊中市千里園3丁目 -
6.5万円
-
-
1K
大阪府豊中市東寺内町 -
4.9万円
-
49,000円
1K
大阪府豊中市箕輪2丁目 -
7.1万円
-
1.0ヶ月
1K
大阪府豊中市東寺内町 -
6.7万円
-
67,000円
1K
大阪府豊中市原田中1丁目
店舗情報
お電話での物件問い合わせは無料通話で!(直営店のみ)
0001-F000011966-0009
- 三重法人部
- 059-356-8041
- 三重県四日市市鵜の森1丁目1-19太平洋鵜の森ビル5階
このお部屋にお問い合わせ
あわせて店舗への来店を希望のお客様は、上の希望店舗の来店予約フォームをご利用ください(直営店舗のみ)
Sorry,Japanese & English only. 日本語・英語のみ対応しております。ご了承ください。
- ※取扱形態は媒介(先物)です。 / お部屋の情報は随時更新です / 各種情報と現況に差異がある場合は、現況優先となります。 / 保証会社の審査があります。 / 契約一時金は、契約時に借主より貸主に支払われ返還されない金銭です。

この物件のかんたんお問合せフォーム
お電話でお問合せ(法人用)
外観・間取り図
















大阪府豊中市浜1丁目