メインステージ大阪NorthGateT 物件詳細情報
| 沿線・駅 所在地 |
賃料 共益費(管理費) |
敷金 礼金 |
間取り 専有面積 |
種別 建築年月日 |
|
|---|---|---|---|---|---|
|
阪急電鉄神戸線 十三駅(徒歩6分)
大阪府大阪市淀川区十三東4丁目 |
71,000円 8,000円 |
- 79,000円 |
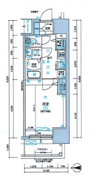
1K 26.93m2 |
分譲賃貸 2022年12月 |
|
この物件のお問い合わせ番号 0001-F000011018-0006
短期違約金:1年未満の解約は「家賃共益費」の1ヶ月分 犬猫1匹のみ可能 (体長60センチ程度迄) ペット飼育時、敷金として賃料・共益費の1ヶ月分要

- 【ファーストフード】ミスタードーナツ 十三東口ショップ

- 【ファーストフード】ケンタッキーフライドチキン 十三東口店

- 【ファーストフード】マクドナルド 十三西口店
設備
| 部屋設備 | TV付モニターホン / エアコン / フローリング / バルコニー / シャワー / 浴室乾燥機 / 室内洗濯機置場 / バストイレ別 / シャワー付トイレ / クロゼット / 洗面所独立 / システムキッチン |
|---|---|
| 建物設備 | エレベータ / オートロック / 駐輪場 / 宅配ボックス / バリアフリー / BSアンテナ / CSアンテナ / バイク置き場 / ネット利用料無料 / 防犯カメラ |
物件詳細
| 交通機関 | ・阪急電鉄神戸線 十三駅(徒歩6分) ・大阪メトロ御堂筋線 西中島南方駅(徒歩22分) | ||||
|---|---|---|---|---|---|
| 構造 | RC造 | 方位 | 西 | 階数/総階数 | 9階/13階建て |
| 総戸数 | 36戸 | 駐車場 | - | 入居日 | 2026年3月下旬 |
| 環境 | 【ファーストフード】ミスタードーナツ 十三東口ショップ (469m) / 【ファーストフード】ケンタッキーフライドチキン 十三東口店 (495m) / 【ファーストフード】マクドナルド 十三西口店 (655m) / コンビニ (421m) | ||||
| 内装代 | - | 償却 | 0円 | 保険 | 損保要 |
| 更新料 | - | 水道料金等預かり金 | - | 特記事項 | - |
| 飲用水 | 公営 | ガス | 都市 | 排水 | 公共下水 |
| 給湯方式 | - | ||||
その他の費用
| 一時 | カギ代:30,800円/退去時RC代:33,000円 |
|---|---|
| 他 | 初回:総賃料50%更新:2万円/年月額保証料:月額総賃料の1% |
この物件のお問い合わせ番号 0001-F000011018-0006
類似物件一覧
-
7.6万円
76,000円
-
-
8.4万円
-
84,000円
1K
大阪府大阪市淀川区宮原5丁目 -
6.5万円
-
200,000円
1DK
大阪府大阪市淀川区宮原5丁目 -
8.2万円
-
82,000円
1K
大阪府大阪市淀川区西宮原2丁目 -
8.0万円
-
1.0ヶ月
1K
大阪府大阪市淀川区東三国1丁目 -
6.5万円
-
73,000円
1K
大阪府大阪市淀川区十三本町2丁目 -
7.5万円
75,000円
-
1K
大阪府大阪市淀川区新北野1丁目 -
5.5万円
-
125,000円
1DK
大阪府大阪市淀川区東三国5丁目 -
7.1万円
-
35,250円
1K
大阪府大阪市淀川区宮原4丁目 -
7.7万円
77,000円
-
1K
大阪府大阪市淀川区新北野1丁目 -
6.7万円
-
-
1K
大阪府大阪市淀川区十三東2丁目 -
7.9万円
79,000円
-
1K
大阪府大阪市淀川区新北野1丁目
店舗情報
お電話での物件問い合わせは無料通話で!(直営店のみ)
0001-F000011018-0006
- FC新大阪店
- 御堂筋線 新大阪駅(徒歩2分)
- Tel: 06-6100-0021
- 店舗詳細情報
このお部屋にお問い合わせ
あわせて店舗への来店を希望のお客様は、上の希望店舗の来店予約フォームをご利用ください(直営店舗のみ)
Sorry,Japanese & English only. 日本語・英語のみ対応しております。ご了承ください。
- ※取扱形態は媒介(先物)です。 / お部屋の情報は随時更新です / 各種情報と現況に差異がある場合は、現況優先となります。 / 保証会社の審査があります。 / 契約一時金は、契約時に借主より貸主に支払われ返還されない金銭です。

この物件のかんたんお問合せフォーム
お電話でお問合せ
外観・間取り図

























大阪府大阪市淀川区新北野1丁目