大阪府大阪市福島区吉野2丁目 1LDK 31.82m2 物件詳細情報
| 沿線・駅 所在地 |
賃料 共益費(管理費) |
敷金 礼金 |
間取り 専有面積 |
種別 建築年月日 |
|
|---|---|---|---|---|---|
|
阪神電鉄本線 野田駅(徒歩5分)
大阪府大阪市福島区吉野2丁目 |
117,250円 8,750円 |
- 150,000円 |
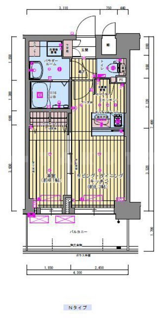
1LDK 31.82m2 |
マンション 2021年1月 |
|
この物件のお問い合わせ番号 0001-F000008728-0030

- 【スーパー】MISUGIYA(三杉屋) 福島店

- 【コンビニエンスストア】ローソン 吉野一丁目店

- 【市役所・区役所】大阪市福島区役所

- 【警察】大阪府福島警察署

- 【郵便局】大阪西郵便局

- 【総合病院】JCHO大阪病院

- 【ドラッグストア】ダイコクドラッグ 福島駅前店

- 【ホームセンター】コーナン 福島大開店

- 【公園】下福島公園
設備
| 部屋設備 | 下駄箱 / ガスコンロ(コンロ(2口)) / エアコン / フローリング / バルコニー / シャワー / 浴室乾燥機 / 洗髪洗面化粧台 / 室内洗濯機置場 / バストイレ別 / シャワー付トイレ / クロゼット / 洗面所独立 / カウンターキッチン / システムキッチン |
|---|---|
| 建物設備 | エレベータ / オートロック / 駐輪場 / 宅配ボックス / バイク置き場 / ネット利用料無料 / 防犯カメラ |
物件詳細
| 交通機関 | ・阪神電鉄本線 野田駅(徒歩5分) ・JR大阪環状線 福島駅(徒歩15分) | ||||
|---|---|---|---|---|---|
| 構造 | RC造 | 方位 | 西 | 階数/総階数 | 13階/13階建て |
| 総戸数 | 144戸 | 駐車場 | 19,800円 | 入居日 | 相談 |
| 環境 | 【スーパー】MISUGIYA(三杉屋) 福島店 (448m) / 【コンビニエンスストア】ローソン 吉野一丁目店 (191m) / 【市役所・区役所】大阪市福島区役所 (591m) / 【警察】大阪府福島警察署 (604m) / 【郵便局】大阪西郵便局 (1,606m) / 【総合病院】JCHO大阪病院 (930m) / 【ドラッグストア】ダイコクドラッグ 福島駅前店 (1,407m) / 【ホームセンター】コーナン 福島大開店 (1,245m) / 【公園】下福島公園 (831m) / コンビニ (191m) / スーパー (448m) / 総合病院 (930m) | ||||
| 内装代 | - | 償却 | 0円 | 保険 | 損保要 |
| 更新料 | 11,000円 | 水道料金等預かり金 | - | 特記事項 | - |
| 飲用水 | 公営 | ガス | 都市 | 排水 | 公共下水 |
| 給湯方式 | - | ||||
その他の費用
| 他 | プレサンスギャランティ初回保証料50%月額保証料1.5% |
|---|
この物件のお問い合わせ番号 0001-F000008728-0030
類似物件一覧
-
10.5万円
-
1.0ヶ月
-
14.6万円
-
-
1LDK
大阪府大阪市福島区玉川2丁目 -
10.5万円
-
104,500円
1LDK
大阪府大阪市福島区福島3丁目 -
9.6万円
-
120,000円
1DK
大阪府大阪市福島区吉野2丁目 -
11.6万円
-
1.0ヶ月
1LDK
大阪府大阪市福島区吉野4丁目 -
11.6万円
-
1.0ヶ月
1LDK
大阪府大阪市福島区吉野4丁目 -
11.2万円
-
-
1LDK
大阪府大阪市福島区海老江4丁目 -
10.7万円
-
-
1DK
大阪府大阪市福島区福島4丁目 -
13.7万円
-
1.0ヶ月
1LDK
大阪府大阪市福島区吉野1丁目 -
13.7万円
-
1.0ヶ月
1LDK
大阪府大阪市福島区野田4丁目 -
11.7万円
-
150,000円
1LDK
大阪府大阪市福島区吉野2丁目 -
13.8万円
-
1.0ヶ月
1LDK
大阪府大阪市福島区吉野4丁目
店舗情報
お電話での物件問い合わせは無料通話で!(直営店のみ)
0001-F000008728-0030
- 三重法人部
- 059-356-8041
- 三重県四日市市鵜の森1丁目1-19太平洋鵜の森ビル5階
このお部屋にお問い合わせ
あわせて店舗への来店を希望のお客様は、上の希望店舗の来店予約フォームをご利用ください(直営店舗のみ)
Sorry,Japanese & English only. 日本語・英語のみ対応しております。ご了承ください。
- ※取扱形態は媒介(先物)です。 / お部屋の情報は随時更新です / 各種情報と現況に差異がある場合は、現況優先となります。 / 保証会社の審査があります。 / 契約一時金は、契約時に借主より貸主に支払われ返還されない金銭です。

この物件のかんたんお問合せフォーム
お電話でお問合せ(法人用)
外観・間取り図






大阪府大阪市福島区吉野4丁目