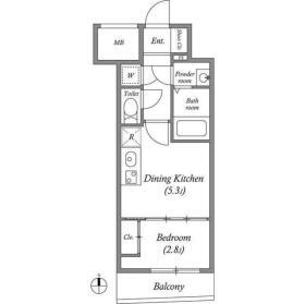
大阪府大阪市西区西本町3丁目 1DK 23.04m2 物件詳細情報
| 沿線・駅 所在地 |
賃料 共益費(管理費) |
敷金 礼金 |
間取り 専有面積 |
種別 建築年月日 |
|
|---|---|---|---|---|---|
|
大阪メトロ中央線 阿波座駅(徒歩1分)
大阪府大阪市西区西本町3丁目 |
83,000円 10,500円 |
- 83,000円 |
1DK 23.04m2 |
マンション 2019年1月 |
|
この物件のお問い合わせ番号 0001-F000008608-0076

- 【コンビニエンスストア】ローソン 西本町三丁目店

- 【郵便局】大阪西郵便局

- 【警察】西警察署

- 【スーパー】ライフ阿波座駅前店

- 【スーパー】ライフ ビオラル靭店

- 【公園】靱公園
設備
| 部屋設備 | TV付モニターホン / 下駄箱 / IHヒーター / エアコン / フローリング / バルコニー / シャワー / 浴室乾燥機 / 洗髪洗面化粧台 / 室内洗濯機置場 / バストイレ別 / コンロ(コンロ(2口)) / オール電化 / シャワー付トイレ / クロゼット / 洗面所独立 / システムキッチン |
|---|---|
| 建物設備 | エレベータ / オートロック / 駐輪場 / 宅配ボックス / ネット利用料無料 / ネット環境(光ファイバ対応) / BSアンテナ / CSアンテナ / バイク置き場 / 防犯カメラ |
物件詳細
| 交通機関 | ・大阪メトロ中央線 阿波座駅(徒歩1分) ・大阪メトロ千日前線 阿波座駅(徒歩1分) | ||||
|---|---|---|---|---|---|
| 構造 | RC造 | 方位 | 南 | 階数/総階数 | 7階/15階建て |
| 総戸数 | 201戸 | 駐車場 | - | 入居日 | 2026年4月中旬 |
| 環境 | 【コンビニエンスストア】ローソン 西本町三丁目店 (17m) / 【郵便局】大阪西郵便局 (187m) / 【警察】西警察署 (718m) / 【スーパー】ライフ阿波座駅前店 (169m) / 【スーパー】ライフ ビオラル靭店 (371m) / 【公園】靱公園 (736m) / コンビニ (17m) / スーパー (169m) | ||||
| 内装代 | - | 償却 | 0円 | 保険 | 損保要 |
| 更新料 | 15,000円 | 水道料金等預かり金 | - | 特記事項 | - |
| 飲用水 | 公営 | ガス | - | 排水 | 公共下水 |
| 給湯方式 | - | ||||
その他の費用
| 一時 | 退去時RC代:40,500円/カギ費用:27,500円 |
|---|---|
| 他 | エポス初回:月額総賃料の2.5%更新料:20000円/年 |
この物件のお問い合わせ番号 0001-F000008608-0076
類似物件一覧
-
7.0万円
-
1.0ヶ月
-
6.7万円
-
80,000円
1K
大阪府大阪市西区九条2丁目 -
6.2万円
-
33,500円
1K
大阪府大阪市西区川口4丁目 -
7.6万円
-
-
1K
大阪府大阪市西区川口1丁目 -
8.0万円
-
1.0ヶ月
1DK
大阪府大阪市西区本田2丁目 -
9.3万円
-
-
1LDK
大阪府大阪市西区九条1丁目 -
6.6万円
-
100,000円
1K
大阪府大阪市西区九条2丁目 -
6.3万円
-
67,500円
1K
大阪府大阪市西区本田4丁目 -
8.5万円
-
127,500円
1K
大阪府大阪市西区新町1丁目 -
8.1万円
-
1.0ヶ月
1K
大阪府大阪市西区境川1丁目 -
8.5万円
-
-
1K
大阪府大阪市西区立売堀1丁目 -
10.0万円
-
-
1DK
大阪府大阪市西区立売堀5丁目
店舗情報
お電話での物件問い合わせは無料通話で!(直営店のみ)
0001-F000008608-0076
- 三重法人部
- 059-356-8041
- 三重県四日市市鵜の森1丁目1-19太平洋鵜の森ビル5階
このお部屋にお問い合わせ
あわせて店舗への来店を希望のお客様は、上の希望店舗の来店予約フォームをご利用ください(直営店舗のみ)
Sorry,Japanese & English only. 日本語・英語のみ対応しております。ご了承ください。
- ※取扱形態は媒介(先物)です。 / お部屋の情報は随時更新です / 各種情報と現況に差異がある場合は、現況優先となります。 / 保証会社の審査があります。 / 契約一時金は、契約時に借主より貸主に支払われ返還されない金銭です。

この物件のかんたんお問合せフォーム
お電話でお問合せ(法人用)
外観・間取り図
















大阪府大阪市西区江戸堀3丁目