アスリート本町リバーウエスト 物件詳細情報
| 沿線・駅 所在地 |
賃料 共益費(管理費) |
敷金 礼金 |
間取り 専有面積 |
種別 建築年月日 |
|
|---|---|---|---|---|---|
|
大阪メトロ中央線 阿波座駅(徒歩7分)
大阪府大阪市西区川口1丁目 |
85,000円 10,000円 |
- - |
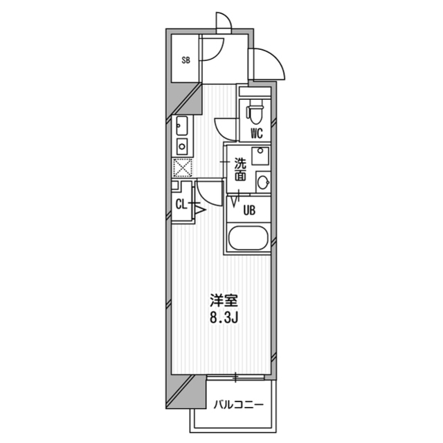
1K 26.00m2 |
マンション 2007年8月 |
|
この物件のお問い合わせ番号 0001-F000007881-0011
退去時費用ハウスクリーニング費33000円、エアコンクリーニング代13200円/台違約金1年未満の解約時、家賃共益費の1ヶ月分要

- 【スーパー】ライフ阿波座駅前店

- 【コンビニエンスストア】ローソンストア100 LS西区立売堀店

- 【コンビニエンスストア】ファミリーマート 阿波座駅前店

- 【総合病院】日本生命病院

- 【郵便局】大阪西郵便局

- 【警察】西警察署
設備
| 部屋設備 | TV付モニターホン / 下駄箱 / ガスコンロ(コンロ(2口)) / エアコン / フローリング / バルコニー / 浴室乾燥機 / 洗髪洗面化粧台 / 室内洗濯機置場 / バストイレ別 / 角部屋 / シャワー付トイレ / クロゼット / 洗面所独立 / システムキッチン |
|---|---|
| 建物設備 | エレベータ / オートロック / 駐輪場 / 宅配ボックス / ペット可 / BSアンテナ / CATV / バイク置き場 / 防犯カメラ |
物件詳細
| 交通機関 | ・大阪メトロ中央線 阿波座駅(徒歩7分) ・大阪メトロ中央線 九条駅(徒歩13分) | ||||
|---|---|---|---|---|---|
| 構造 | RC造 | 方位 | 西 | 階数/総階数 | 7階/11階建て |
| 総戸数 | 70戸 | 駐車場 | 無料 | 入居日 | 即入居可 |
| 環境 | 【スーパー】ライフ阿波座駅前店 (657m) / 【コンビニエンスストア】ローソンストア100 LS西区立売堀店 (652m) / 【コンビニエンスストア】ファミリーマート 阿波座駅前店 (561m) / 【総合病院】日本生命病院 (396m) / 【郵便局】大阪西郵便局 (426m) / 【警察】西警察署 (225m) / コンビニ (652m) / スーパー (657m) / 総合病院 (396m) | ||||
| 内装代 | - | 償却 | 0円 | 保険 | 損保要 |
| 更新料 | 85,000円 | 水道料金等預かり金 | - | 特記事項 | - |
| 飲用水 | 公営 | ガス | 都市 | 排水 | 公共下水 |
| 給湯方式 | - | ||||
その他の費用
| 他 | 初回保証料:月額総賃料の30%、更新時:10,000円/年 |
|---|
この物件のお問い合わせ番号 0001-F000007881-0011
類似物件一覧
-
6.9万円
-
-
-
6.7万円
-
80,000円
1K
大阪府大阪市西区境川2丁目 -
9.2万円
-
-
1K
大阪府大阪市西区新町4丁目 -
10.6万円
-
-
1R
大阪府大阪市西区江戸堀1丁目 -
6.5万円
-
1.0ヶ月
1K
大阪府大阪市西区九条2丁目 -
9.3万円
50,000円
150,000円
1K
大阪府大阪市西区南堀江4丁目 -
6.3万円
-
34,000円
1K
大阪府大阪市西区川口4丁目 -
6.8万円
-
1.5ヶ月
1K
大阪府大阪市西区本田4丁目 -
7.5万円
-
100,000円
1K
大阪府大阪市西区立売堀6丁目 -
6.9万円
-
1.0ヶ月
1K
大阪府大阪市西区九条2丁目 -
7.3万円
-
73,000円
1K
大阪府大阪市西区立売堀1丁目 -
7.1万円
-
71,000円
1K
大阪府大阪市西区立売堀1丁目
店舗情報
お電話での物件問い合わせは無料通話で!(直営店のみ)
0001-F000007881-0011
- FC心斎橋店
- 御堂筋線 心斎橋駅(徒歩2分)
- Tel: 06-6253-6060
- 店舗詳細情報
このお部屋にお問い合わせ
あわせて店舗への来店を希望のお客様は、上の希望店舗の来店予約フォームをご利用ください(直営店舗のみ)
Sorry,Japanese & English only. 日本語・英語のみ対応しております。ご了承ください。
- ※取扱形態は媒介(先物)です。 / お部屋の情報は随時更新です / 各種情報と現況に差異がある場合は、現況優先となります。 / 保証会社の審査があります。 / 契約一時金は、契約時に借主より貸主に支払われ返還されない金銭です。

この物件のかんたんお問合せフォーム
お電話でお問合せ
外観・間取り図

























大阪府大阪市西区立売堀5丁目