大阪府吹田市江坂町1丁目 2K 29.27m2 物件詳細情報
| 沿線・駅 所在地 |
賃料 共益費(管理費) |
敷金 礼金 |
間取り 専有面積 |
種別 建築年月日 |
|
|---|---|---|---|---|---|
|
大阪メトロ御堂筋線 江坂駅(徒歩6分)
大阪府吹田市江坂町1丁目 |
109,000円 10,000円 |
- - |
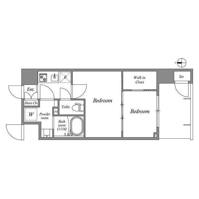
2K 29.27m2 |
マンション 2019年6月 |
|
この物件のお問い合わせ番号 0001-F000006747-0054
外観・間取り図
情報登録日:2026/02/09 情報更新日:2026/02/10 次回更新予定日:2026/02/17
設備
| 部屋設備 | 下駄箱 / エアコン / フローリング / バルコニー / シャワー / 浴室乾燥機 / 室内洗濯機置場 / バストイレ別 / コンロ(コンロ(2口)) / オール電化 / クロゼット / システムキッチン |
|---|---|
| 建物設備 | エレベータ / オートロック / 駐輪場 / 宅配ボックス / バイク置き場 / 防犯カメラ |
物件詳細
| 交通機関 | ・大阪メトロ御堂筋線 江坂駅(徒歩6分) ・阪急電鉄千里線 豊津駅(徒歩13分) | ||||
|---|---|---|---|---|---|
| 構造 | RC造 | 方位 | 南 | 階数/総階数 | 2階/10階建て |
| 総戸数 | - | 駐車場 | - | 入居日 | 2026年2月下旬 |
| 環境 | |||||
| 内装代 | - | 償却 | 0円 | 保険 | 損保要 |
| 更新料 | 109,000円 | 水道料金等預かり金 | - | 特記事項 | - |
| 飲用水 | - | ガス | - | 排水 | その他 |
| 給湯方式 | - | ||||
その他の費用
| 一時 | カギ代:33,000円/退去時RC代:38,500円 |
|---|---|
| 他 | 株式会社エポスカード保証会社:@エポス月次2.5%Aニッポンインシュア100% |
この物件のお問い合わせ番号 0001-F000006747-0054
類似物件一覧
-
9.1万円
-
-
-
10.5万円
-
-
1LDK
大阪府吹田市江坂町2丁目 -
8.2万円
-
82,000円
1LDK
大阪府吹田市江坂町5丁目 -
9.4万円
-
-
1LDK
大阪府吹田市西御旅町 -
9.2万円
-
-
1LDK
大阪府吹田市西御旅町 -
11.8万円
118,000円
1.0ヶ月
1LDK
大阪府吹田市広芝町 -
10.3万円
-
-
1LDK
大阪府吹田市穂波町 -
9.4万円
-
-
1LDK
大阪府吹田市芳野町 -
12.1万円
-
-
1LDK
大阪府吹田市広芝町 -
9.4万円
-
-
1LDK
大阪府吹田市西御旅町 -
10.3万円
-
-
1LDK
大阪府吹田市穂波町 -
10.3万円
-
-
1LDK
大阪府吹田市穂波町
店舗情報
お電話での物件問い合わせは無料通話で!(直営店のみ)
0001-F000006747-0054
- FC千里中央店
- 北大阪急行南北線 千里中央駅(徒歩2分)
- Tel: 06-6836-3200
- 店舗詳細情報
このお部屋にお問い合わせ
あわせて店舗への来店を希望のお客様は、上の希望店舗の来店予約フォームをご利用ください(直営店舗のみ)
Sorry,Japanese & English only. 日本語・英語のみ対応しております。ご了承ください。
- ※取扱形態は媒介(先物)です。 / お部屋の情報は随時更新です / 各種情報と現況に差異がある場合は、現況優先となります。 / 保証会社の審査があります。 / 契約一時金は、契約時に借主より貸主に支払われ返還されない金銭です。

この物件のかんたんお問合せフォーム
お電話でお問合せ








大阪府吹田市芳野町