大阪府吹田市江坂町2丁目 1K 25.05m2 物件詳細情報
| 沿線・駅 所在地 |
賃料 共益費(管理費) |
敷金 礼金 |
間取り 専有面積 |
種別 建築年月日 |
|
|---|---|---|---|---|---|
|
大阪メトロ御堂筋線 江坂駅(徒歩5分)
大阪府吹田市江坂町2丁目 |
80,000円 8,000円 |
- - |
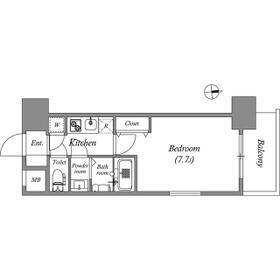
1K 25.05m2 |
マンション 2023年3月 |
|
この物件のお問い合わせ番号 0001-F000005459-0189
外観・間取り図
情報登録日:2026/03/20 情報更新日:2026/03/21 次回更新予定日:2026/03/28
設備
| 部屋設備 | TV付モニターホン / 下駄箱 / IHヒーター / エアコン / フローリング / バルコニー / シャワー / 浴室乾燥機 / 洗髪洗面化粧台 / 室内洗濯機置場 / バストイレ別 / 2人入居 / シャワー付トイレ / クロゼット / 洗面所独立 |
|---|---|
| 建物設備 | オートロック / 宅配ボックス / ペット可 / BSアンテナ / CSアンテナ / ネット利用料無料 / 防犯カメラ |
物件詳細
| 交通機関 | ・大阪メトロ御堂筋線 江坂駅(徒歩5分) ・阪急電鉄千里線 豊津駅(徒歩16分) | ||||
|---|---|---|---|---|---|
| 構造 | RC造 | 方位 | 北 | 階数/総階数 | 7階/15階建て |
| 総戸数 | - | 駐車場 | - | 入居日 | 2026年5月上旬 |
| 環境 | |||||
| 内装代 | - | 償却 | 0円 | 保険 | 損保要 |
| 更新料 | - | 水道料金等預かり金 | - | 特記事項 | - |
| 飲用水 | - | ガス | - | 排水 | その他 |
| 給湯方式 | - | ||||
その他の費用
| 一時 | 退去時RC代:25,300円/カギ代:27,500円 |
|---|---|
| 他 | 株式会社エポスカード※大手法人相談可 |
この物件のお問い合わせ番号 0001-F000005459-0189
類似物件一覧
-
7.7万円
-
154,000円
-
8.0万円
-
-
1K
大阪府吹田市江坂町2丁目 -
8.1万円
-
100,000円
1DK
大阪府吹田市長野西 -
9.4万円
94,000円
-
1DK
大阪府吹田市豊津町 -
7.8万円
-
-
1K
大阪府吹田市垂水町3丁目 -
7.0万円
-
155,000円
1R
大阪府吹田市片山町1丁目 -
8.7万円
97,000円
97,000円
1K
大阪府吹田市豊津町 -
7.6万円
-
76,000円
1K
大阪府吹田市南金田2丁目 -
6.2万円
-
1.0ヶ月
1R
大阪府吹田市豊津町 -
6.6万円
50,000円
250,000円
1DK
大阪府吹田市南金田2丁目 -
8.2万円
-
82,000円
1K
大阪府吹田市広芝町 -
7.0万円
-
140,000円
1R
大阪府吹田市片山町1丁目
店舗情報
お電話での物件問い合わせは無料通話で!(直営店のみ)
0001-F000005459-0189
- 関東法人部
- 03-6206-3203
- 東京都千代田区丸の内1丁目8−3 丸の内トラストタワー本館4階
- 中部法人部
- 0800-888-3215
- 愛知県名古屋市中区錦3丁目16−27 栄パークサイドプレイス12F
このお部屋にお問い合わせ
あわせて店舗への来店を希望のお客様は、上の希望店舗の来店予約フォームをご利用ください(直営店舗のみ)
Sorry,Japanese & English only. 日本語・英語のみ対応しております。ご了承ください。
- ※取扱形態は媒介(先物)です。 / お部屋の情報は随時更新です / 各種情報と現況に差異がある場合は、現況優先となります。 / 保証会社の審査があります。 / 契約一時金は、契約時に借主より貸主に支払われ返還されない金銭です。

この物件のかんたんお問合せフォーム
お電話でお問合せ(法人用)







大阪府吹田市江坂町1丁目