プレサンス立売堀パークシティ 物件詳細情報
| 沿線・駅 所在地 |
賃料 共益費(管理費) |
敷金 礼金 |
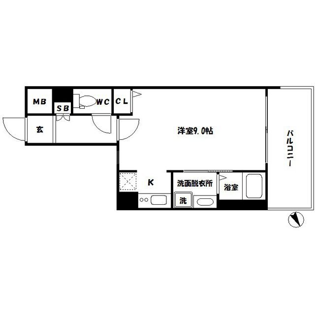
間取り 専有面積 |
種別 建築年月日 |
|
|---|---|---|---|---|---|
|
大阪メトロ中央線 阿波座駅(徒歩2分)
大阪府大阪市西区立売堀6丁目 |
95,010円 8,890円 |
- 120,000円 |
1K 25.40m2 |
マンション 2018年1月 |
|
この物件のお問い合わせ番号 0001-F000001210-0035

- 【スーパー】ライフ阿波座駅前店

- 【スーパー】ライフ ビオラル靭店

- 【コンビニエンスストア】ローソン 西本町三丁目店

- 【市役所・区役所】大阪市西区役所

- 【警察】西警察署

- 【図書館】大阪市立中央図書館

- 【総合病院】住友病院

- 【総合病院】日本生命病院

- 【ドラッグストア】ドラッグアカカベ 阿波座店

- 【コンビニエンスストア】セブンイレブン 大阪立売堀5丁目店
設備
| 部屋設備 | 下駄箱 / ガスコンロ(コンロ(2口)) / エアコン / フローリング / バルコニー / シャワー / 浴室乾燥機 / 室内洗濯機置場 / バストイレ別 / シャワー付トイレ / クロゼット / 洗面所独立 / システムキッチン |
|---|---|
| 建物設備 | エレベータ / オートロック / 駐輪場 / 宅配ボックス / バリアフリー / BSアンテナ / CSアンテナ / CATV / バイク置き場 / ネット利用料無料 / 防犯カメラ |
物件詳細
| 交通機関 | ・大阪メトロ中央線 阿波座駅(徒歩2分) ・大阪メトロ長堀鶴見緑地線 西長堀駅(徒歩8分) | ||||
|---|---|---|---|---|---|
| 構造 | RC造 | 方位 | 北西 | 階数/総階数 | 9階/15階建て |
| 総戸数 | 148戸 | 駐車場 | 無料 | 入居日 | 相談 |
| 環境 | 【スーパー】ライフ阿波座駅前店 (438m) / 【スーパー】ライフ ビオラル靭店 (640m) / 【コンビニエンスストア】ローソン 西本町三丁目店 (368m) / 【市役所・区役所】大阪市西区役所 (813m) / 【警察】西警察署 (726m) / 【図書館】大阪市立中央図書館 (992m) / 【総合病院】住友病院 (1,365m) / 【総合病院】日本生命病院 (358m) / 【ドラッグストア】ドラッグアカカベ 阿波座店 (589m) / 【コンビニエンスストア】セブンイレブン 大阪立売堀5丁目店 (404m) / コンビニ (368m) / スーパー (438m) / 総合病院 (1,365m) | ||||
| 内装代 | - | 償却 | 0円 | 保険 | 損保要 |
| 更新料 | 11,000円 | 水道料金等預かり金 | - | 特記事項 | - |
| 飲用水 | 公営 | ガス | 都市 | 排水 | 公共下水 |
| 給湯方式 | - | ||||
その他の費用
| 他 | 初回保証料:総賃料の50%月次保証料:総賃料の1.5% |
|---|
この物件のお問い合わせ番号 0001-F000001210-0035
類似物件一覧
-
7.4万円
-
100,000円
-
7.8万円
-
1.0ヶ月
1K
大阪府大阪市西区立売堀1丁目 -
9.2万円
-
1.0ヶ月
1K
大阪府大阪市西区境川1丁目 -
11.6万円
-
-
1K
大阪府大阪市西区江戸堀1丁目 -
8.9万円
-
1.0ヶ月
1K
大阪府大阪市西区境川1丁目 -
8.3万円
-
-
1DK
大阪府大阪市西区川口3丁目 -
6.9万円
-
1.0ヶ月
1K
大阪府大阪市西区江戸堀2丁目 -
10.7万円
-
1.0ヶ月
1DK
大阪府大阪市西区京町堀1丁目 -
9.4万円
-
-
1K
大阪府大阪市西区新町4丁目 -
9.4万円
94,000円
188,000円
1K
大阪府大阪市西区靱本町2丁目 -
11.3万円
-
-
1DK
大阪府大阪市西区新町4丁目 -
6.9万円
-
1.0ヶ月
1K
大阪府大阪市西区江戸堀3丁目
店舗情報
お電話での物件問い合わせは無料通話で!(直営店のみ)
0001-F000001210-0035
- 三重法人部
- 059-356-8041
- 三重県四日市市鵜の森1丁目1-19太平洋鵜の森ビル5階
このお部屋にお問い合わせ
あわせて店舗への来店を希望のお客様は、上の希望店舗の来店予約フォームをご利用ください(直営店舗のみ)
Sorry,Japanese & English only. 日本語・英語のみ対応しております。ご了承ください。
- ※取扱形態は媒介(先物)です。 / お部屋の情報は随時更新です / 各種情報と現況に差異がある場合は、現況優先となります。 / 保証会社の審査があります。 / 契約一時金は、契約時に借主より貸主に支払われ返還されない金銭です。

この物件のかんたんお問合せフォーム
お電話でお問合せ(法人用)
外観・間取り図



















大阪府大阪市西区立売堀6丁目