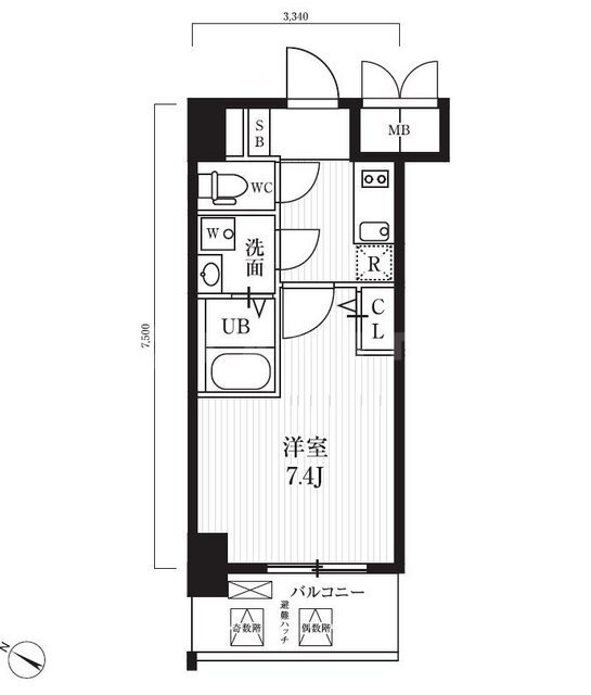
大阪府大阪市北区中之島4丁目 1K 24.38m2 物件詳細情報
| 沿線・駅 所在地 |
賃料 共益費(管理費) |
敷金 礼金 |
間取り 専有面積 |
種別 建築年月日 |
|
|---|---|---|---|---|---|
|
京阪電鉄中之島線 中之島駅(徒歩4分)
大阪府大阪市北区中之島4丁目 |
86,000円 9,000円 |
- 95,000円 |
1K 24.38m2 |
マンション 2020年10月 |
|
この物件のお問い合わせ番号 0001-F000000683-0033
1年未満解約時賃料等1ヶ月分の違約金あり ペットSOHO敷金1ヶ月増

- 【スーパー】ライフ 土佐堀店

- 【コンビニエンスストア】セブンイレブン 大阪土佐堀ダイビル店

- 【総合病院】住友病院

- 【スーパー】阪急オアシス 中之島店

- 【公園】靱公園

- 【スーパー】KOHYO(コーヨー) 淀屋橋店

- 【ドラッグストア】キリン堂 肥後橋店
設備
| 部屋設備 | ガスコンロ(コンロ(2口)) / エアコン / バルコニー / シャワー / 浴室乾燥機 / 室内洗濯機置場 / バストイレ別 / シャワー付トイレ / クロゼット / 洗面所独立 / システムキッチン |
|---|---|
| 建物設備 | エレベータ / オートロック / 駐輪場 / 宅配ボックス / ペット可 / BSアンテナ / CSアンテナ / CATV / ネット利用料無料 / 防犯カメラ |
物件詳細
| 交通機関 | ・京阪電鉄中之島線 中之島駅(徒歩4分) ・JR大阪環状線 福島駅(徒歩10分) | ||||
|---|---|---|---|---|---|
| 構造 | RC造 | 方位 | 南西 | 階数/総階数 | 2階/15階建て |
| 総戸数 | 96戸 | 駐車場 | 無料 | 入居日 | 2026年4月下旬 |
| 環境 | 【スーパー】ライフ 土佐堀店 (296m) / 【コンビニエンスストア】セブンイレブン 大阪土佐堀ダイビル店 (311m) / 【総合病院】住友病院 (497m) / 【スーパー】阪急オアシス 中之島店 (754m) / 【公園】靱公園 (873m) / 【スーパー】KOHYO(コーヨー) 淀屋橋店 (1,202m) / 【ドラッグストア】キリン堂 肥後橋店 (875m) / コンビニ (311m) / スーパー (296m) / 総合病院 (497m) | ||||
| 内装代 | - | 償却 | 0円 | 保険 | 損保要 |
| 更新料 | 30,000円 | 水道料金等預かり金 | - | 特記事項 | - |
| 飲用水 | 公営 | ガス | 都市 | 排水 | 公共下水 |
| 給湯方式 | - | ||||
その他の費用
| 他 | 初回保証料は賃料等の50%、月額保証料は賃料等の1%、 |
|---|
この物件のお問い合わせ番号 0001-F000000683-0033
類似物件一覧
-
9.1万円
-
1.0ヶ月
-
7.4万円
-
-
1K
大阪府大阪市北区大淀北1丁目 -
8.5万円
-
1.0ヶ月
1K
大阪府大阪市北区西天満1丁目 -
8.7万円
-
-
1K
大阪府大阪市北区浮田1丁目 -
8.6万円
-
2.0ヶ月
1K
大阪府大阪市北区西天満5丁目 -
11.0万円
120,000円
120,000円
1DK
大阪府大阪市北区天満橋1丁目 -
7.8万円
-
1.0ヶ月
1R
大阪府大阪市北区中津6丁目 -
7.0万円
-
156,800円
1K
大阪府大阪市北区浮田2丁目 -
9.5万円
95,000円
1.0ヶ月
1K
大阪府大阪市北区同心1丁目 -
9.4万円
-
-
1K
大阪府大阪市北区兎我野町 -
10.8万円
108,000円
2.0ヶ月
1K
大阪府大阪市北区中之島3丁目 -
7.4万円
-
-
1K
大阪府大阪市北区大淀中5丁目
店舗情報
お電話での物件問い合わせは無料通話で!(直営店のみ)
0001-F000000683-0033
- 三重法人部
- 059-356-8041
- 三重県四日市市鵜の森1丁目1-19太平洋鵜の森ビル5階
このお部屋にお問い合わせ
あわせて店舗への来店を希望のお客様は、上の希望店舗の来店予約フォームをご利用ください(直営店舗のみ)
Sorry,Japanese & English only. 日本語・英語のみ対応しております。ご了承ください。
- ※取扱形態は媒介(先物)です。 / お部屋の情報は随時更新です / 各種情報と現況に差異がある場合は、現況優先となります。 / 保証会社の審査があります。 / 契約一時金は、契約時に借主より貸主に支払われ返還されない金銭です。

この物件のかんたんお問合せフォーム
お電話でお問合せ(法人用)
外観・間取り図





















大阪府大阪市北区中津6丁目