エスコルト 物件詳細情報
| 沿線・駅 所在地 |
賃料 共益費(管理費) |
敷金 礼金 |
間取り 専有面積 |
種別 建築年月日 |
|
|---|---|---|---|---|---|
|
東海道本線 浜松駅(徒歩10分)
静岡県浜松市中央区海老塚2丁目 |
65,000円 5,000円 |
- 65,000円 |
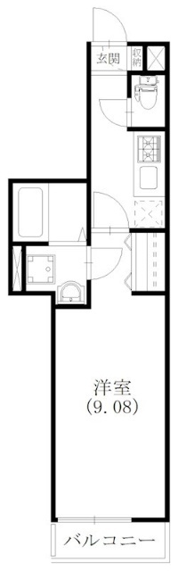
1K 28.11m2 |
マンション 2026年3月 |
|
ミニミニの仲介手数料は家賃の55%(税込)です。※直営店は全店対象。但し、駐車場・店舗・事務所・業者仲介及び紹介契約は対象外。※FC店舗は対象外ですので、各店にお問い合わせください。
この物件のお問い合わせ番号 0001-S000108528-0014
外観・間取り図
情報登録日:2026/02/02 情報更新日:2026/02/08 次回更新予定日:2026/02/15
須山建設施工_【駅近_新築マンション】 ※写真はイメージ写真です。近隣にコンビニやスーパーなど充実した住環境
設備
| 部屋設備 | ガス給湯 / 浴室給湯あり / キッチン給湯あり / 洗面所給湯あり / TV付モニターホン / ガスコンロ(コンロ(2口)) / エアコン / バルコニー / 洋式トイレ / トイレ電源有 / シャワー / 浴室乾燥機 / 洗髪洗面化粧台 / 洗面化粧台 / 室内洗濯機置場 / バストイレ別 / シャワー付トイレ / 全居室収納 / 洗面所独立 / システムキッチン / オンライン接客 |
|---|---|
| 建物設備 | エレベータ / オートロック / 宅配ボックス / BSアンテナ / ネット利用料無料 / 敷地内ゴミ置き場 / 防犯カメラ |
物件詳細
| 交通機関 | ・東海道本線 浜松駅(徒歩10分) ・遠州鉄道 第一通り駅(徒歩13分) ・遠州鉄道 遠州病院駅(徒歩18分) | ||||
|---|---|---|---|---|---|
| 構造 | RC造 | 方位 | 南 | 階数/総階数 | 5階/5階建て |
| 総戸数 | 30戸 | 駐車場 | 13,200円 | 入居日 | 2026年3月上旬 |
| 環境 | 遠鉄百貨店 (664m) / 浜松市役所 (1,766m) / 浜松海老塚郵便局 (435m) / 高砂公園 (728m) / JA静岡厚生連遠州病院 (1,835m) / 静岡銀行砂山支店 (254m) / ビオ・あつみエピスリー浜松 (638m) / セブンイレブン浜松海老塚店 (162m) / スギ薬局浜松海老塚店 (396m) / 静岡文化芸術大学 (2,094m) / ロイヤルホスト浜松駅南店 (543m) | ||||
| 内装代 | - | 償却 | 0円 | 保険 | 損保要 |
| 更新料 | - | 水道料金等預かり金 | - | 特記事項 | - |
| 飲用水 | 公営 | ガス | 都市 | 排水 | 公共下水 |
| 給湯方式 | ガス給湯(浴室給湯あり・キッチン給湯あり・洗面所給湯あり) | ||||
その他の費用
| 毎月 | 自治会費:600円 |
|---|---|
| 一時 | 退去負担金:65,000円/自治会入会金:2,000円/消毒料:17,600円/入居安心サービス:17,600円/ファイテック消火剤:4,800円 |
| 他 | 毎月賃料等請求金額の合計1.5% 家賃保証会社 初回保証料50% |
この物件のお問い合わせ番号 0001-S000108528-0014
類似物件一覧
-
5.3万円
70,000円
-
-
6.2万円
-
62,000円
1K
静岡県浜松市中央区常盤町 -
5.5万円
-
1.0ヶ月
1K
静岡県浜松市中央区鴨江1丁目 -
6.4万円
-
1.0ヶ月
1K
静岡県浜松市中央区三方原町 -
5.3万円
-
-
1R
静岡県浜松市中央区丸塚町 -
4.6万円
46,000円
0.5ヶ月
1K
静岡県浜松市中央区佐鳴台5丁目 -
4.8万円
-
-
1K
静岡県浜松市中央区元浜町 -
6.3万円
80,000円
-
1K
静岡県浜松市中央区板屋町 -
5.2万円
-
-
1K
静岡県浜松市中央区神田町 -
5.4万円
53,600円
-
1K
静岡県浜松市中央区新橋町 -
5.8万円
-
1.0ヶ月
1R
静岡県浜松市中央区佐藤2丁目 -
6.2万円
-
1.0ヶ月
1K
静岡県浜松市中央区青屋町
店舗情報
お電話での物件問い合わせは無料通話で!(直営店のみ)
0001-S000108528-0014
- 浜松店
-
この物件で来店予約- 来店予約フォーム -
-
無料通話番号を表示
- 東海道本線 浜松駅(徒歩6分)
- Tel: 053-456-3232
- 店舗詳細情報
このお部屋にお問い合わせ
あわせて店舗への来店を希望のお客様は、上の希望店舗の来店予約フォームをご利用ください(直営店舗のみ)
Sorry,Japanese & English only. 日本語・英語のみ対応しております。ご了承ください。
- ※取扱形態は媒介(先物)です。 / お部屋の情報は随時更新です / 各種情報と現況に差異がある場合は、現況優先となります。 / 保証会社の審査があります。 / 契約一時金は、契約時に借主より貸主に支払われ返還されない金銭です。

この物件のかんたんお問合せフォーム
お電話でお問合せ(無料)















静岡県浜松市中央区有玉北町