スウィートベル 物件詳細情報
| 沿線・駅 所在地 |
賃料 共益費(管理費) |
保証金 礼金 |
間取り 専有面積 |
種別 建築年月日 |
|
|---|---|---|---|---|---|
|
東海道本線 浜松駅(バス27分 ・浜工高前停、 徒歩9分)
静岡県浜松市中央区東三方町 |
95,000円 4,000円 |
90,000円 95,000円 |
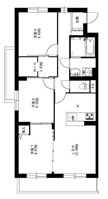
3LDK 72.82m2 |
マンション 2025年4月 |
|
ミニミニの仲介手数料は家賃の55%(税込)です。※直営店は全店対象。但し、駐車場・店舗・事務所・業者仲介及び紹介契約は対象外。※FC店舗は対象外ですので、各店にお問い合わせください。
この物件のお問い合わせ番号 0001-S000105318-0005
真っさら新築の物件、更にコンロやシンクがセットされたシステムキッチン設置済で一体感のあるデザインの台所です。また転居後のネット接続がスムーズに行えるインターネット使用料無料の物件です。一度に複数のおかず作りを同時進行できるコンロ3口以上の仕様なので、進行ペースがスピードアップ。ちなみに洗髪とメイクをまとめてできるシャンプードレッサー付です。自然に団らんが生まれる2LDK。

- 浜松市立北星中学校
設備
| 部屋設備 | 下駄箱 / ガスコンロ(コンロ(3口)) / エアコン / フローリング / ウォークインクロゼット / バルコニー / 洋式トイレ / ウォームレット / トイレ電源有 / シャワー / 洗髪洗面化粧台 / 洗面化粧台 / 追焚き / 室内洗濯機置場 / バストイレ別 / 保証人不要 / 2人入居 / シャワー付トイレ / ウォークインスルークロゼット / 収納2間半 / 洗面所独立 / システムキッチン |
|---|---|
| 建物設備 | オートロック / ネット利用料無料 |
物件詳細
| 交通機関 | ・東海道本線 浜松駅(バス27分 ・浜工高前停、 徒歩9分) ・遠州鉄道 積志駅(徒歩50分) ・遠州鉄道 さぎの宮駅(徒歩56分) | ||||
|---|---|---|---|---|---|
| 構造 | RC造 | 方位 | 南 | 階数/総階数 | 2階/3階建て |
| 総戸数 | 12戸 | 駐車場 | 4,400円 | 入居日 | 2026年4月中旬 |
| 環境 | 浜松市立初生小学校 (1,015m) / 浜松市立北星中学校 (1,466m) / 三方原保育園 (210m) / 静岡県立浜松工業高校 (865m) / 浜松市浜名区役所 (6,621m) / 浜松北郵便局 (983m) / 浜松医科大学附属図書館 (2,640m) / 浜北警察署 (5,002m) / 半田公園 (1,595m) / 医療法人社団種光会朝山病院 (1,512m) / 浜松いわた信用金庫初生支店 (852m) / マックスバリュ浜松三方原店 (486m) / セブンイレブン浜松三方原南店 (449m) / メイワン (8,809m) / 杏林堂ドラッグストア新初生店 (370m) / DCM三方原店 (656m) / 国立浜松医科大学 (2,644m) / ゲオ浜松初生店 (1,535m) / 焼肉酒家牛角初生店 (630m) / ラフレ初生 (1,912m) | ||||
| 内装代 | - | 償却 | 90,000円 | 保険 | 損保要 |
| 更新料 | - | 水道料金等預かり金 | - | 特記事項 | - |
| 飲用水 | 公営 | ガス | プロパン | 排水 | 公共下水 |
| 給湯方式 | - | ||||
その他の費用
| 一時 | 駐車場紹介料:4,400円/ファイテック消火剤:4,800円/防災グッズ:13,091円/消毒料:17,600円 |
|---|---|
| 他 | 家賃保証会社 初回保証料30,000円 毎月賃料等請求金額の合計2% |
この物件のお問い合わせ番号 0001-S000105318-0005
類似物件一覧
-
11.5万円
-
120,000円
-
11.8万円
118,000円
1.0ヶ月
3LDK
静岡県浜松市中央区富塚町 -
8.7万円
87,000円
1.0ヶ月
3LDK
静岡県浜松市中央区領家3丁目 -
7.1万円
-
1.0ヶ月
3LDK
静岡県浜松市中央区高丘西1丁目 -
9.2万円
92,000円
1.0ヶ月
3LDK
静岡県浜松市中央区南浅田2丁目 -
7.8万円
156,000円
-
3LDK
静岡県浜松市中央区大瀬町 -
6.7万円
-
77,000円
3LDK
静岡県浜松市中央区三方原町 -
12.3万円
-
-
3LDK
静岡県浜松市中央区上西町 -
10.6万円
-
1.0ヶ月
3LDK
静岡県浜松市中央区宮竹町 -
9.7万円
194,000円
-
3SLDK
静岡県浜松市中央区高町 -
12.2万円
-
-
3LDK
静岡県浜松市中央区佐藤2丁目 -
9.2万円
-
-
3LDK
静岡県浜松市中央区富塚町
店舗情報
お電話での物件問い合わせは無料通話で!(直営店のみ)
0001-S000105318-0005
- 浜松高台店
-
この物件で来店予約- 来店予約フォーム -
-
無料通話番号を表示
- バス・せいれい病院入口停(徒歩1分)
- Tel: 053-471-3232
- 店舗詳細情報
- 浜松店
-
この物件で来店予約- 来店予約フォーム -
-
無料通話番号を表示
- 東海道本線 浜松駅(徒歩6分)
- Tel: 053-456-3232
- 店舗詳細情報
- 浜松東店
-
この物件で来店予約- 来店予約フォーム -
-
無料通話番号を表示
- 東海道本線 浜松駅(バス・宮竹停、徒歩4分)
- Tel: 053-464-0032
- 店舗詳細情報
このお部屋にお問い合わせ
あわせて店舗への来店を希望のお客様は、上の希望店舗の来店予約フォームをご利用ください(直営店舗のみ)
Sorry,Japanese & English only. 日本語・英語のみ対応しております。ご了承ください。
- ※取扱形態は媒介(先物)です。 / お部屋の情報は随時更新です / 各種情報と現況に差異がある場合は、現況優先となります。 / 保証会社の審査があります。 / 契約一時金は、契約時に借主より貸主に支払われ返還されない金銭です。

この物件のかんたんお問合せフォーム
お電話でお問合せ(無料)
外観・間取り図
















静岡県浜松市中央区植松町