プレサンス岐阜ゼクシス 物件詳細情報

| 沿線・駅 所在地 |
賃料 共益費(管理費) |
敷金 礼金 |
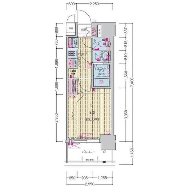
間取り 専有面積 |
種別 建築年月日 |
|
|---|---|---|---|---|---|
|
東海道本線 岐阜駅(徒歩8分)
岐阜県岐阜市吉野町1丁目 |
53,300円 7,060円 |
- - |
1K 21.09m2 |
マンション 2025年9月 |
|
ミニミニの仲介手数料は家賃の55%(税込)です。※直営店は全店対象。但し、駐車場・店舗・事務所・業者仲介及び紹介契約は対象外。※FC店舗は対象外ですので、各店にお問い合わせください。
この物件のお問い合わせ番号 0001-S000097213-0046
岐阜駅まで徒歩圏内の好立地単身様向けマンションです。オートロック、防犯カメラ完備でセキュリティ面も安心です。

- 岐阜市立華陽小学校

- 岐阜中央郵便局

- ファミリーマート岐阜松鴻町店

- クスリのアオキ加納桜道店
パノラマ
設備
| 部屋設備 | ガス給湯 / 浴室給湯あり / キッチン給湯あり / 洗面所給湯あり / TV付モニターホン / 下駄箱 / ガスコンロ(コンロ(2口)) / エアコン / 照明器具 / バルコニー / 洋式トイレ / トイレ電源有 / シャワー / 浴室乾燥機 / 洗髪洗面化粧台 / 室内洗濯機置場 / バストイレ別 / 保証人不要 / シャワー付トイレ / クロゼット / システムキッチン / オンライン内見 / オンライン接客 / IT重説 |
|---|---|
| 建物設備 | エレベータ / オートロック / 駐輪場 / 宅配ボックス / ネット利用料無料 / 敷地内ゴミ置き場 / 防犯カメラ |
物件詳細
| 交通機関 | ・東海道本線 岐阜駅(徒歩8分) ・名鉄名古屋本線 名鉄岐阜駅(徒歩5分) ・バス・JR岐阜停(徒歩9分) | ||||
|---|---|---|---|---|---|
| 構造 | RC造 | 方位 | 南 | 階数/総階数 | 11階/13階建て |
| 総戸数 | 72戸 | 駐車場 | - | 入居日 | 即入居可 |
| 環境 | 岐阜市立華陽小学校 (706m) / 岐阜市立梅林中学校 (1,817m) / みぞはた保育園 (517m) / 岐阜中央郵便局 (556m) / マックスバリュ岐阜元町店 (919m) / ファミリーマート岐阜松鴻町店 (353m) / クスリのアオキ加納桜道店 (884m) / ホームセンターコーナン岐阜店 (669m) | ||||
| 内装代 | - | 償却 | 0円 | 保険 | 損保要 |
| 更新料 | 11,000円 | 水道料金等預かり金 | - | 特記事項 | - |
| 飲用水 | 公営 | ガス | 都市 | 排水 | 公共下水 |
| 給湯方式 | ガス給湯(浴室給湯あり・キッチン給湯あり・洗面所給湯あり) | ||||
その他の費用
| 毎月 | プレサポ24:990円/駐輪場(利用者のみ):440円/バイク置き場(利用者のみ):2,200円/ミニバイク置き場(利用者のみ):1,100円 |
|---|---|
| 一時 | ハウスクリーニング代(退去時):38,500円/消毒料:17,600円/防災セット:14,400円/ファイテック消火剤:4,800円 |
| 他 | 家賃保証会社 初回保証料50% 毎月賃料等請求金額の合計1.5% |
この物件のお問い合わせ番号 0001-S000097213-0046
類似物件一覧
-
4.0万円
80,000円
1.0ヶ月
-
4.2万円
-
-
1R
岐阜県岐阜市柳津町下佐波6丁目 -
4.7万円
-
1.0ヶ月
1DK
岐阜県岐阜市今嶺4丁目 -
4.7万円
94,000円
-
1K
岐阜県岐阜市領下4丁目 -
3.9万円
-
-
1K
岐阜県岐阜市柳津町下佐波2丁目 -
3.8万円
76,000円
-
1K
岐阜県岐阜市今嶺1丁目 -
4.8万円
-
-
1K
岐阜県岐阜市寿町7丁目 -
4.7万円
47,000円
-
1K
岐阜県岐阜市則武西1丁目 -
4.5万円
45,000円
-
1DK
岐阜県岐阜市昭和町3丁目 -
4.4万円
-
-
1DK
岐阜県岐阜市溝旗町2丁目 -
4.2万円
-
-
1R
岐阜県岐阜市本郷町5丁目 -
6.2万円
-
70,000円
1R
岐阜県岐阜市加納本町2丁目
店舗情報
お電話での物件問い合わせは無料通話で!(直営店のみ)
0001-S000097213-0046
- 岐阜駅前店
-
この物件で来店予約- 来店予約フォーム -
-
無料通話番号を表示
- 名鉄名古屋本線 名鉄岐阜駅(徒歩2分)
- Tel: 058-262-3212
- 店舗詳細情報
このお部屋にお問い合わせ
あわせて店舗への来店を希望のお客様は、上の希望店舗の来店予約フォームをご利用ください(直営店舗のみ)
Sorry,Japanese & English only. 日本語・英語のみ対応しております。ご了承ください。
- ※取扱形態は媒介(先物)です。 / お部屋の情報は随時更新です / 各種情報と現況に差異がある場合は、現況優先となります。 / 保証会社の審査があります。 / 契約一時金は、契約時に借主より貸主に支払われ返還されない金銭です。

この物件のかんたんお問合せフォーム
お電話でお問合せ(無料)
外観・間取り図





















岐阜県岐阜市吉野町3丁目