N-stage Fujisawa 物件詳細情報
| 沿線・駅 所在地 |
賃料 共益費(管理費) |
敷金 礼金 |
間取り 専有面積 |
種別 建築年月日 |
|
|---|---|---|---|---|---|
|
東海道本線 藤沢駅(徒歩9分)
神奈川県藤沢市川名1丁目 |
81,000円 9,000円 |
81,000円 81,000円 |
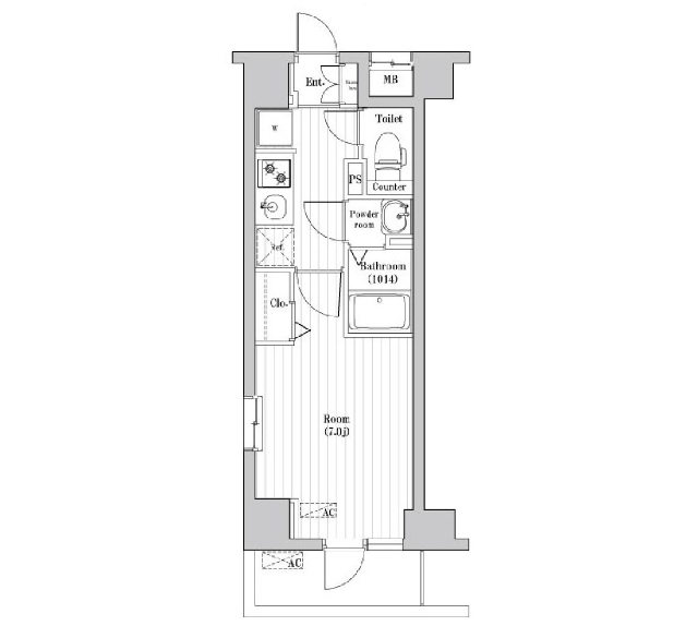
1K 24.33m2 |
マンション 2021年3月 |
|
ミニミニの仲介手数料は家賃の55%(税込)です。※直営店は全店対象。但し、駐車場・店舗・事務所・業者仲介及び紹介契約は対象外。※FC店舗は対象外ですので、各店にお問い合わせください。
この物件のお問い合わせ番号 0001-1410964394-0016

- オーケー

- マクドナルド

- ドン・キホーテ

- フジサワ名店ビル
設備
| 部屋設備 | 浴室給湯あり / キッチン給湯あり / 洗面所給湯あり / TV付モニターホン / 下駄箱 / エアコン / フローリング / 照明器具 / ベランダ / バルコニー / 洋式トイレ / シャワー / 浴室乾燥機 / 洗面化粧台 / 室内洗濯機置場 / バストイレ別 / 保証人不要 / コンロ(コンロ(2口)) / オール電化 / 角部屋 / シャワー付トイレ / クロゼット / 洗面所独立 / システムキッチン / オンライン内見 / オンライン接客 / IT重説 |
|---|---|
| 建物設備 | エレベータ / オートロック / エントランス / 駐輪場 / 宅配ボックス / BSアンテナ / CSアンテナ / CATV / 敷地内ゴミ置き場 / 防犯カメラ |
物件詳細
| 交通機関 | ・東海道本線 藤沢駅(徒歩9分) ・小田急電鉄江ノ島線 藤沢駅(徒歩9分) ・江ノ島電鉄 藤沢駅(徒歩9分) | ||||
|---|---|---|---|---|---|
| 構造 | RC造 | 方位 | 階数/総階数 | 2階/5階建て | |
| 総戸数 | 73戸 | 駐車場 | - | 入居日 | 2026年3月下旬 |
| 環境 | セブンイレブン (170m) / オーケー (530m) / マクドナルド (580m) / ドン・キホーテ (620m) / フジサワ名店ビル (700m) / 村岡保育園 (700m) / 市立大道小学校 (1,200m) / 市立村岡中学校 (900m) | ||||
| 内装代 | - | 償却 | 0円 | 保険 | 損保要 |
| 更新料 | 81,000円 | 水道料金等預かり金 | - | 特記事項 | - |
| 飲用水 | 公営 | ガス | プロパン | 排水 | 公共下水 |
| 給湯方式 | 浴室給湯あり・キッチン給湯あり・洗面所給湯あり | ||||
その他の費用
| 一時 | 鍵交換費用:16,500円/清掃代※20u超+1,100円/u:33,000円/エアコンクリーニング費用/台:16,500円/消毒料:17,600円 |
|---|---|
| 他 | 家賃保証会社 初回保証料40%最低保証料15,000 円1年毎保証料有利用設備(駐車場・バイク置き場)利用料も保証料算出賃料 に含まれます。 |
この物件のお問い合わせ番号 0001-1410964394-0016
類似物件一覧
-
8.2万円
-
1.0ヶ月
-
7.8万円
78,000円
1.0ヶ月
1DK
神奈川県藤沢市善行6丁目 -
6.9万円
-
-
1R
神奈川県藤沢市本町1丁目 -
8.7万円
87,000円
43,500円
1R
神奈川県藤沢市湘南台6丁目 -
7.2万円
72,000円
1.0ヶ月
1K
神奈川県藤沢市亀井野4丁目 -
5.7万円
114,000円
1.0ヶ月
1K
神奈川県藤沢市湘南台4丁目 -
6.5万円
65,000円
65,000円
1K
神奈川県藤沢市高倉 -
9.5万円
-
1.0ヶ月
1K
神奈川県藤沢市辻堂神台2丁目 -
7.8万円
-
1.0ヶ月
1K
神奈川県藤沢市長後 -
6.3万円
-
-
1K
神奈川県藤沢市湘南台4丁目 -
6.5万円
-
1.0ヶ月
1R
神奈川県藤沢市本町3丁目 -
6.6万円
66,000円
1.0ヶ月
1K
神奈川県藤沢市辻堂1丁目
店舗情報
お電話での物件問い合わせは無料通話で!(直営店のみ)
0001-1410964394-0016
- 藤沢店
-
この物件で来店予約- 来店予約フォーム -
-
無料通話番号を表示
- 東海道本線 藤沢駅(徒歩3分)
- Tel: 0466-24-3200
- 店舗詳細情報
このお部屋にお問い合わせ
あわせて店舗への来店を希望のお客様は、上の希望店舗の来店予約フォームをご利用ください(直営店舗のみ)
Sorry,Japanese & English only. 日本語・英語のみ対応しております。ご了承ください。
- ※取扱形態は媒介(先物)です。 / お部屋の情報は随時更新です / 各種情報と現況に差異がある場合は、現況優先となります。 / 保証会社の審査があります。 / 契約一時金は、契約時に借主より貸主に支払われ返還されない金銭です。

この物件のかんたんお問合せフォーム
お電話でお問合せ(無料)
外観・間取り図








神奈川県藤沢市鵠沼神明5丁目