ドゥーエ新丸子 物件詳細情報
| 沿線・駅 所在地 |
賃料 共益費(管理費) |
敷金 礼金 |
間取り 専有面積 |
種別 建築年月日 |
|
|---|---|---|---|---|---|
|
東急東横線 新丸子駅(徒歩9分)
神奈川県川崎市中原区丸子通1丁目 |
146,000円 5,000円 |
146,000円 146,000円 |
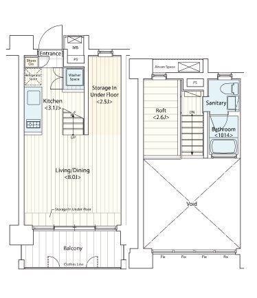
1R 23.56m2 |
マンション 2006年10月 |
|
ミニミニの仲介手数料は家賃の55%(税込)です。※直営店は全店対象。但し、駐車場・店舗・事務所・業者仲介及び紹介契約は対象外。※FC店舗は対象外ですので、各店にお問い合わせください。
この物件のお問い合わせ番号 0001-1400414670-0018
敷地内駐車場ございます!!デザイナーズマンション!オートロック付きマンションです☆ ※退去時清掃費用39600円、20u超+1375円/u

- セブンイレブン

- 東急ストア

- 横浜銀行ATM

- 川崎新丸子郵便局

- 日本医科大学武蔵小杉病院

- まるこ保育園

- 市立上丸子小学校

- 市立中原中学校
設備
| 部屋設備 | ガス給湯 / 浴室給湯あり / キッチン給湯あり / 洗面所給湯あり / TV付モニターホン / ガスコンロ(コンロ(2口)) / エアコン / フローリング / ロフト / 床暖房 / 照明器具 / ベランダ / バルコニー / 防音サッシ / 洋式トイレ / トイレ電源有 / シャワー / 浴室乾燥機 / 洗面化粧台 / 追焚き / 室内洗濯機置場 / バストイレ別 / 保証人不要 / シャワー付トイレ / 洗面所独立 / システムキッチン / オンライン内見 / オンライン接客 / IT重説 |
|---|---|
| 建物設備 | エレベータ / オートロック / エントランス / 駐輪場 / 宅配ボックス / ネット利用料無料 / ネット環境(光ファイバ対応) / デザイナーズマンション / BSアンテナ / CSアンテナ / CATV / バイク置き場 / 防犯カメラ |
物件詳細
| 交通機関 | ・東急東横線 新丸子駅(徒歩9分) ・東急東横線 多摩川駅(徒歩13分) ・南武線 武蔵小杉駅(徒歩15分) | ||||
|---|---|---|---|---|---|
| 構造 | RC造 | 方位 | 階数/総階数 | 4階/8階建て | |
| 総戸数 | 60戸 | 駐車場 | 24,200円 | 入居日 | 相談 |
| 環境 | セブンイレブン (410m) / 東急ストア (720m) / 横浜銀行ATM (580m) / 川崎新丸子郵便局 (800m) / 日本医科大学武蔵小杉病院 (1,200m) / まるこ保育園 (1,300m) / 市立上丸子小学校 (970m) / 市立中原中学校 (1,300m) | ||||
| 内装代 | - | 償却 | 0円 | 保険 | 損保要 |
| 更新料 | 146,000円 | 水道料金等預かり金 | - | 特記事項 | - |
| 飲用水 | 公営 | ガス | 都市 | 排水 | 公共下水 |
| 給湯方式 | ガス給湯(浴室給湯あり・キッチン給湯あり・洗面所給湯あり) | ||||
その他の費用
| 一時 | 鍵交換費用:16,500円/駐車場仲介手数料:24,200円/消毒料:17,600円/退去時エアコンクリーニング費用/台:15,000円 |
|---|---|
| 他 | 初回保証委託料:月額賃料等の50%(最低保証料 2万円)、月額保証料:月額賃料等の1%(上限千円)共益費・利用設備(駐車場・ バイク置き場)利用料も保証料算出賃料に含まれます。 |
この物件のお問い合わせ番号 0001-1400414670-0018
類似物件一覧
店舗情報
お電話での物件問い合わせは無料通話で!(直営店のみ)
0001-1400414670-0018
- 武蔵小杉店
-
この物件で来店予約- 来店予約フォーム -
-
無料通話番号を表示
- 東急東横線 武蔵小杉駅(徒歩3分)
- Tel: 044-738-3222
- 店舗詳細情報
このお部屋にお問い合わせ
あわせて店舗への来店を希望のお客様は、上の希望店舗の来店予約フォームをご利用ください(直営店舗のみ)
Sorry,Japanese & English only. 日本語・英語のみ対応しております。ご了承ください。
- ※取扱形態は媒介(先物)です。 / お部屋の情報は随時更新です / 各種情報と現況に差異がある場合は、現況優先となります。 / 保証会社の審査があります。 / 契約一時金は、契約時に借主より貸主に支払われ返還されない金銭です。

この物件のかんたんお問合せフォーム
お電話でお問合せ(無料)
外観・間取り図



















神奈川県川崎市中原区今井南町