LUXENA+PAWS藤沢 物件詳細情報

| 沿線・駅 所在地 |
賃料 共益費(管理費) |
敷金 礼金 |
間取り 専有面積 |
種別 建築年月日 |
|
|---|---|---|---|---|---|
|
東海道本線 藤沢駅(徒歩12分)
神奈川県藤沢市弥勒寺1丁目 |
209,000円 20,000円 |
- - |
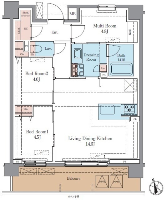
2SLDK 62.97m2 |
マンション 2026年1月 |
|
ミニミニの仲介手数料は家賃の55%(税込)です。※直営店は全店対象。但し、駐車場・店舗・事務所・業者仲介及び紹介契約は対象外。※FC店舗は対象外ですので、各店にお問い合わせください。
この物件のお問い合わせ番号 0001-S000109434-0028
★ペット共生型新築マンション★オートロック、エレベーター付!敷地内駐車場あり。屋上天然芝ドッグランやトリミング室、滑りにくい床材、消臭壁紙、アニコム24導入などペットとの快適な暮らしを実現。

- オーケー藤沢店

- セブンイレブン藤沢川名1丁目店
パノラマ
設備
| 部屋設備 | ガス給湯 / 浴室給湯あり / キッチン給湯あり / 洗面所給湯あり / TV付モニターホン / 下駄箱 / ガスコンロ(コンロ(3口)) / エアコン / フローリング / バルコニー / 洋式トイレ / シャワー / 浴室乾燥機 / 洗髪洗面化粧台 / 追焚き / 室内洗濯機置場 / バストイレ別 / シャワー付トイレ / クロゼット / 洗面所独立 / カウンターキッチン / システムキッチン |
|---|---|
| 建物設備 | エレベータ / オートロック / 駐輪場 / 宅配ボックス / ペット可(犬・猫可) / BSアンテナ / CSアンテナ / バイク置き場 / ネット利用料無料 / 敷地内ゴミ置き場 / 防犯カメラ |
物件詳細
| 交通機関 | ・東海道本線 藤沢駅(徒歩12分) ・江ノ島電鉄 石上駅(徒歩18分) ・湘南モノレール 湘南深沢駅(徒歩28分) | ||||
|---|---|---|---|---|---|
| 構造 | RC造 | 方位 | 南 | 階数/総階数 | 7階/7階建て |
| 総戸数 | 41戸 | 駐車場 | 22,000円 | 入居日 | 即入居可 |
| 環境 | 藤沢市立村岡小学校 (258m) / 藤沢市立村岡中学校 (550m) / きっずワン弥勒寺保育園 (165m) / 神奈川県立深沢高校 (1,309m) / 藤沢市役所 (977m) / 藤沢郵便局 (932m) / 藤沢市南市民図書館 (1,052m) / 藤沢警察署 (2,690m) / 第2号御所ケ谷緑地 (730m) / 医療法人徳州会山内病院 (789m) / JAさがみ村岡支店 (723m) / オーケー藤沢店 (672m) / セブンイレブン藤沢川名1丁目店 (325m) / 小田急百貨店ふじさわ (1,052m) / ヒノミドラッグ藤沢店 (675m) / ケーズデンキ藤沢弥勒寺店 (728m) / 私立湘南鎌倉医療大学 (4,000m) / TSUTAYA村岡店 (1,442m) / 木曽路藤沢店 (452m) / 上州屋藤沢店 (735m) | ||||
| 内装代 | - | 償却 | 0円 | 保険 | 損保要 |
| 更新料 | 209,000円 | 水道料金等預かり金 | - | 特記事項 | - |
| 飲用水 | 公営 | ガス | 都市 | 排水 | 公共下水 |
| 給湯方式 | ガス給湯(浴室給湯あり・キッチン給湯あり・洗面所給湯あり) | ||||
その他の費用
| 毎月 | 駐輪代:220円/自動二輪駐輪代:5,500円 |
|---|---|
| 一時 | ペット登録費用:5,500円/鍵設定費:11,000円/ルームクリーニング代:97,900円/エアコンクリーニング費用:19,800円 |
| 他 | 家賃保証会社 初回保証料50% 毎月賃料等請求金額の合計1% |
この物件のお問い合わせ番号 0001-S000109434-0028
類似物件一覧
-
15.7万円
157,000円
1.0ヶ月
-
16.1万円
-
2.0ヶ月
2LDK
神奈川県藤沢市辻堂新町2丁目 -
17.0万円
-
1.0ヶ月
2LDK
神奈川県藤沢市藤沢 -
16.6万円
-
1.0ヶ月
2LDK
神奈川県藤沢市大鋸2丁目 -
14.7万円
147,000円
2.0ヶ月
2LDK
神奈川県藤沢市湘南台1丁目 -
18.3万円
183,000円
1.0ヶ月
2LDK
神奈川県藤沢市鵠沼石上2丁目 -
15.3万円
153,000円
2.0ヶ月
2LDK
神奈川県藤沢市湘南台1丁目 -
16.9万円
169,000円
1.0ヶ月
2LDK
神奈川県藤沢市藤沢 -
16.2万円
162,000円
1.0ヶ月
2LDK
神奈川県藤沢市鵠沼海岸7丁目 -
20.3万円
-
2.0ヶ月
2LDK
神奈川県藤沢市南藤沢 -
15.9万円
-
2.0ヶ月
2LDK
神奈川県藤沢市辻堂新町2丁目 -
15.7万円
157,000円
1.0ヶ月
2LDK
神奈川県藤沢市鵠沼海岸7丁目
店舗情報
お電話での物件問い合わせは無料通話で!(直営店のみ)
0001-S000109434-0028
- 藤沢店
-
この物件で来店予約- 来店予約フォーム -
-
無料通話番号を表示
- 東海道本線 藤沢駅(徒歩3分)
- Tel: 0466-24-3200
- 店舗詳細情報
- 茅ヶ崎店
-
この物件で来店予約- 来店予約フォーム -
-
無料通話番号を表示
- 東海道本線 茅ヶ崎駅(徒歩4分)
- Tel: 0467-83-3232
- 店舗詳細情報
- 大船店
-
この物件で来店予約- 来店予約フォーム -
-
無料通話番号を表示
- 東海道本線 大船駅(徒歩1分)
- Tel: 0467-48-3232
- 店舗詳細情報
このお部屋にお問い合わせ
あわせて店舗への来店を希望のお客様は、上の希望店舗の来店予約フォームをご利用ください(直営店舗のみ)
Sorry,Japanese & English only. 日本語・英語のみ対応しております。ご了承ください。
- ※取扱形態は媒介(先物)です。 / お部屋の情報は随時更新です / 各種情報と現況に差異がある場合は、現況優先となります。 / 保証会社の審査があります。 / 契約一時金は、契約時に借主より貸主に支払われ返還されない金銭です。

この物件のかんたんお問合せフォーム
お電話でお問合せ(無料)
外観・間取り図

























神奈川県藤沢市鵠沼海岸7丁目