グランディールC棟 物件詳細情報
| 沿線・駅 所在地 |
賃料 共益費(管理費) |
敷金 礼金 |
間取り 専有面積 |
種別 建築年月日 |
|
|---|---|---|---|---|---|
|
横浜市営地下鉄グリーンライン 東山田駅(徒歩17分)
神奈川県横浜市都筑区早渕1丁目 |
220,000円 8,000円 |
440,000円 220,000円 |
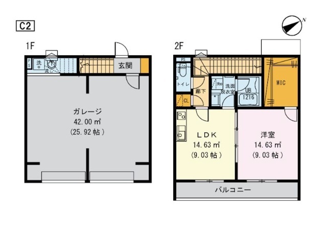
1LDK 98.00m2 |
アパート 2026年3月 |
|
ミニミニの仲介手数料は家賃の55%(税込)です。※直営店は全店対象。但し、駐車場・店舗・事務所・業者仲介及び紹介契約は対象外。※FC店舗は対象外ですので、各店にお問い合わせください。
この物件のお問い合わせ番号 0001-S000107810-0002
新築・ガレージ付き設備充実1LDK! 2台駐車可。都筑インターまで120m。高速道路のアクセス良好です。

- 横浜市立勝田小学校

- 横浜市立早渕中学校

- ゆうゆうのもり幼稚園

- ファミリーマート早渕二丁目店

- 早渕公園

- 横浜勝田郵便局

- 川崎信用金庫勝田支店

- まいばすけっと仲町台駅前店

- スーパー文化堂仲町台店

- 業務スーパー仲町台店

- ファミリーマート新栄町店

- ローソン横浜新栄町店

- ドラッグセイムス仲町台駅前店

- しゃぶ葉都筑インター店

- イオンそよら横浜高田
パノラマ
設備
| 部屋設備 | ガス給湯 / 浴室給湯あり / キッチン給湯あり / 洗面所給湯あり / TV付モニターホン / 下駄箱 / ガスコンロ(コンロ(2口)) / エアコン / ウォークインクロゼット / ベランダ / 洋式トイレ / シャワー / 浴室乾燥機 / 洗面化粧台 / 追焚き / 室内洗濯機置場 / バストイレ別 / 保証人不要 / 上位階なし / 2人入居 / シャワー付トイレ / 洗面所独立 / システムキッチン / ビルトインガレージ / オンライン内見 / オンライン接客 |
|---|---|
| 建物設備 | 宅配ボックス / デザイナーズマンション / BSアンテナ / 防犯カメラ |
物件詳細
| 交通機関 | ・横浜市営地下鉄グリーンライン 東山田駅(徒歩17分) ・横浜市営地下鉄ブルーライン 仲町台駅(徒歩20分) ・横浜市営地下鉄グリーンライン 高田駅(徒歩30分) | ||||
|---|---|---|---|---|---|
| 構造 | 木造 | 方位 | 東 | 階数/総階数 | 1階/2階建て |
| 総戸数 | 3戸 | 駐車場 | 無料 | 入居日 | 2026年4月上旬 |
| 環境 | 横浜市立勝田小学校 (707m) / 横浜市立早渕中学校 (697m) / ゆうゆうのもり幼稚園 (250m) / ファミリーマート早渕二丁目店 (316m) / 早渕公園 (598m) / 横浜勝田郵便局 (1,136m) / 川崎信用金庫勝田支店 (1,239m) / まいばすけっと仲町台駅前店 (1,616m) / スーパー文化堂仲町台店 (1,728m) / 業務スーパー仲町台店 (1,724m) / ファミリーマート新栄町店 (603m) / ローソン横浜新栄町店 (798m) / ドラッグセイムス仲町台駅前店 (1,612m) / しゃぶ葉都筑インター店 (567m) / イオンそよら横浜高田 (2,246m) | ||||
| 内装代 | - | 償却 | 0円 | 保険 | 損保要 |
| 更新料 | 220,000円 | 水道料金等預かり金 | - | 特記事項 | - |
| 飲用水 | 公営 | ガス | 都市 | 排水 | 公共下水 |
| 給湯方式 | ガス給湯(浴室給湯あり・キッチン給湯あり・洗面所給湯あり) | ||||
その他の費用
| 一時 | 初回保証委託料:91,200円/入居安心サービス料:17,600円/消毒料:17,600円 |
|---|---|
| 他 | 家賃保証会社 初回保証料40% 年間保証料(1年毎)14,000円 |
この物件のお問い合わせ番号 0001-S000107810-0002
類似物件一覧
-
19.5万円
195,000円
-
-
16.3万円
163,000円
1.0ヶ月
1LDK
神奈川県横浜市都筑区川和町 -
17.9万円
179,000円
-
1SLDK
神奈川県横浜市都筑区川和町 -
18.3万円
183,000円
183,000円
1SLDK
神奈川県横浜市都筑区川和町 -
19.0万円
190,000円
190,000円
1SLDK
神奈川県横浜市都筑区川和町 -
19.0万円
190,000円
190,000円
1SLDK
神奈川県横浜市都筑区川和町 -
17.9万円
179,000円
179,000円
1SLDK
神奈川県横浜市都筑区川和町 -
18.5万円
185,000円
185,000円
1SLDK
神奈川県横浜市都筑区川和町 -
18.3万円
183,000円
-
1SLDK
神奈川県横浜市都筑区川和町 -
18.1万円
181,000円
181,000円
1SLDK
神奈川県横浜市都筑区川和町 -
20.7万円
207,000円
1.0ヶ月
1SLDK
神奈川県横浜市都筑区川和町 -
18.1万円
181,000円
1.0ヶ月
1SLDK
神奈川県横浜市都筑区川和町
店舗情報
お電話での物件問い合わせは無料通話で!(直営店のみ)
0001-S000107810-0002
- センター南店
-
この物件で来店予約- 来店予約フォーム -
-
無料通話番号を表示
- 横浜市営地下鉄ブルーライン センター南駅(徒歩3分)
- Tel: 045-943-8832
- 店舗詳細情報
このお部屋にお問い合わせ
あわせて店舗への来店を希望のお客様は、上の希望店舗の来店予約フォームをご利用ください(直営店舗のみ)
Sorry,Japanese & English only. 日本語・英語のみ対応しております。ご了承ください。
- ※取扱形態は媒介(先物)です。 / お部屋の情報は随時更新です / 各種情報と現況に差異がある場合は、現況優先となります。 / 保証会社の審査があります。 / 契約一時金は、契約時に借主より貸主に支払われ返還されない金銭です。

この物件のかんたんお問合せフォーム
お電話でお問合せ(無料)
外観・間取り図















神奈川県横浜市都筑区川和町