エコーハイム 物件詳細情報
| 沿線・駅 所在地 |
賃料 共益費(管理費) |
敷金 礼金 |
間取り 専有面積 |
種別 建築年月日 |
|
|---|---|---|---|---|---|
|
京浜急行電鉄本線 杉田駅(徒歩19分)
神奈川県横浜市金沢区富岡東1丁目 |
99,000円 3,500円 |
99,000円 99,000円 |
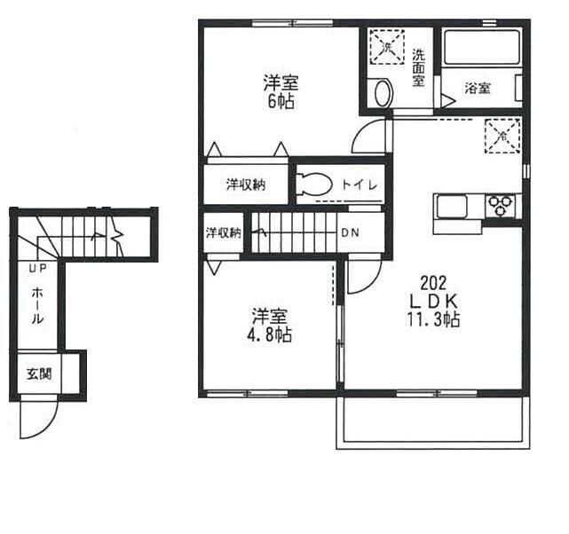
2LDK 55.42m2 |
コーポ 2015年11月 |
|
ミニミニの仲介手数料は家賃の55%(税込)です。※直営店は全店対象。但し、駐車場・店舗・事務所・業者仲介及び紹介契約は対象外。※FC店舗は対象外ですので、各店にお問い合わせください。
この物件のお問い合わせ番号 0001-S000107768-0001
外観・間取り図
情報登録日:2026/01/21 情報更新日:2026/01/22 次回更新予定日:2026/01/29
設備
| 部屋設備 | TV付モニターホン / 下駄箱 / IHヒーター / エアコン / ベランダ / バルコニー / 洗髪洗面化粧台 / 洗面化粧台 / 追焚き / 室内洗濯機置場 / バストイレ別 / 保証人不要 / コンロ(コンロ(2口)) / 角部屋 / シャワー付トイレ / 洗面所独立 / オンライン内見 / オンライン接客 / IT重説 |
|---|---|
| 建物設備 | 駐輪場 |
物件詳細
| 交通機関 | ・京浜急行電鉄本線 杉田駅(徒歩19分) | ||||
|---|---|---|---|---|---|
| 構造 | 軽量鉄骨造 | 方位 | 南 | 階数/総階数 | 2階/2階建て |
| 総戸数 | 4戸 | 駐車場 | - | 入居日 | 相談 |
| 環境 | 横浜市立梅林小学校 (733m) / 横浜市立小田中学校 (1,314m) / にじいろ保育園新杉田 (982m) / 横浜市磯子区役所 (3,302m) / 椿ヶ丘簡易郵便局 (650m) / 磯子警察署 (4,667m) / 新杉田公園 (1,229m) / 地方独立行政法人神奈川県立病院機構神奈川県立循環器呼吸器病センター (2,790m) / ユーコープ杉田店 (1,272m) / ファミリーマート金沢富岡店 (578m) / ハックドラッグ杉田3丁目店 (1,129m) / ノジマブランチ横浜南部市場店 (1,865m) / ガスト横浜杉田店(から好し取扱店) (613m) / 上州屋横浜南部市場店 (1,865m) | ||||
| 内装代 | - | 償却 | 0円 | 保険 | 損保要 |
| 更新料 | 99,000円 | 水道料金等預かり金 | - | 特記事項 | - |
| 飲用水 | 公営 | ガス | 都市 | 排水 | 公共下水 |
| 給湯方式 | - | ||||
その他の費用
| 毎月 | スマートロック月額利用料(月):1,100円/安心入居サポート(月):1,100円 |
|---|---|
| 一時 | スマートロック初期設定費(契約時):11,000円/害虫防除費(契約時):16,500円/エアコンクリーニング費用(退去時):13,200円 |
| 他 | 利用必須備考:初回保証加入料:月支払総額の50%(家賃・共益費・駐車場等の付帯料含む)/月額事務手数料:月々のご請求金額の2%(消費税込、契約更新月は更新料含む) |
この物件のお問い合わせ番号 0001-S000107768-0001
類似物件一覧
店舗情報
お電話での物件問い合わせは無料通話で!(直営店のみ)
0001-S000107768-0001
- 金沢八景店
-
この物件で来店予約- 来店予約フォーム -
-
無料通話番号を表示
- 京浜急行電鉄本線 金沢八景駅(徒歩1分)
- Tel: 045-785-3232
- 店舗詳細情報
このお部屋にお問い合わせ
あわせて店舗への来店を希望のお客様は、上の希望店舗の来店予約フォームをご利用ください(直営店舗のみ)
Sorry,Japanese & English only. 日本語・英語のみ対応しております。ご了承ください。
- ※取扱形態は媒介(先物)です。 / お部屋の情報は随時更新です / 各種情報と現況に差異がある場合は、現況優先となります。 / 保証会社の審査があります。 / 契約一時金は、契約時に借主より貸主に支払われ返還されない金銭です。

この物件のかんたんお問合せフォーム
お電話でお問合せ(無料)




神奈川県横浜市金沢区六浦南2丁目