GENOVIA二子新地 物件詳細情報
| 沿線・駅 所在地 |
賃料 共益費(管理費) |
敷金 礼金 |
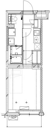
間取り 専有面積 |
種別 建築年月日 |
|
|---|---|---|---|---|---|
|
東急田園都市線 二子新地駅(徒歩5分)
神奈川県川崎市高津区瀬田 |
124,500円 10,000円 |
- - |
1K 25.35m2 |
分譲賃貸 2025年11月 |
|
ミニミニの仲介手数料は家賃の55%(税込)です。※直営店は全店対象。但し、駐車場・店舗・事務所・業者仲介及び紹介契約は対象外。※FC店舗は対象外ですので、各店にお問い合わせください。
この物件のお問い合わせ番号 0001-S000106003-0003
東急田園都市線/二子新地駅徒歩5分の新築RC造マンション! 人気の二子玉川駅まで徒歩圏内です! ペット飼育可能物件(大型犬・猫・多頭飼可能)です。 ⇒敷金+1ヶ月積み増し(解約時償却)・初回保証委託料月額合計60%。 オートロック・宅配BOX・温水洗浄便座・独立洗面台・2口ガスコンロ等 設備充実!敷金・礼金0で初期費用を抑えられます!

- まいばすけっと川崎二子新地店

- 川崎諏訪郵便局

- 富士ガーデン二子新地駅前店

- ココカラファイン二子新地店

- 川崎市高津区役所
設備
| 部屋設備 | ガス給湯 / 浴室給湯あり / キッチン給湯あり / 洗面所給湯あり / TV付モニターホン / 下駄箱 / ガスコンロ(コンロ(2口)) / エアコン / クッションフロアー / フローリング / ベランダ / バルコニー / 洋式トイレ / トイレ電源有 / シャワー / 浴室乾燥機 / 洗髪洗面化粧台 / 洗面化粧台 / 室内洗濯機置場 / バストイレ別 / 保証人不要 / シャワー付トイレ / クロゼット / 洗面所独立 / システムキッチン / オンライン内見 / オンライン接客 / IT重説 |
|---|---|
| 建物設備 | エレベータ / オートロック / 駐輪場 / 宅配ボックス / ペット可(犬・猫可) / ネット利用料無料 / 敷地内ゴミ置き場 / 防犯カメラ |
物件詳細
| 交通機関 | ・東急田園都市線 二子新地駅(徒歩5分) ・東急田園都市線 高津駅(徒歩11分) ・東急田園都市線 二子玉川駅(徒歩13分) | ||||
|---|---|---|---|---|---|
| 構造 | RC造 | 方位 | 南 | 階数/総階数 | 5階/5階建て |
| 総戸数 | 107戸 | 駐車場 | - | 入居日 | 即入居可 |
| 環境 | まいばすけっと川崎二子新地店 (312m) / 川崎諏訪郵便局 (263m) / 富士ガーデン二子新地駅前店 (423m) / ココカラファイン二子新地店 (361m) / 川崎市高津区役所 (2,168m) / 川崎市立高津図書館 (1,265m) / 高津警察署 (1,097m) / 帝京大学医学部附属溝口病院 (1,206m) / JAセレサ川崎北見方支店 (1,093m) / セブンイレブン川崎諏訪店 (293m) / 玉川タカシマヤ (1,222m) / ウエルシア二子新地店 (316m) / クリエイトエス・ディー川崎高津店 (1,017m) / エディオン二子玉川蔦屋家電 (1,338m) / エディオン246溝口店 (1,492m) / キッチンオリジン二子新地店 (256m) / 珈琲館二子新地駅店 (329m) / 二子玉川ライズ・ショッピングセンター・テラスマーケット (1,312m) | ||||
| 内装代 | - | 償却 | 0円 | 保険 | 損保要 |
| 更新料 | 1.0ヶ月 | 水道料金等預かり金 | - | 特記事項 | - |
| 飲用水 | 公営 | ガス | 都市 | 排水 | 公共下水 |
| 給湯方式 | ガス給湯(浴室給湯あり・キッチン給湯あり・洗面所給湯あり) | ||||
その他の費用
| 毎月 | RBI安心サポート:2,700円 |
|---|---|
| 一時 | ルームクリーニング費用:38,500円/消臭抗菌サービス:11,000円/契約事務手数料:11,000円 |
| 他 | 毎月賃料等請求金額の合計40% |
この物件のお問い合わせ番号 0001-S000106003-0003
類似物件一覧
-
9.2万円
92,000円
1.0ヶ月
-
13.1万円
131,000円
1.0ヶ月
1DK
神奈川県川崎市高津区諏訪1丁目 -
12.8万円
128,000円
-
1K
神奈川県川崎市高津区二子3丁目 -
12.6万円
126,000円
-
1K
神奈川県川崎市高津区二子3丁目 -
12.8万円
128,000円
-
1K
神奈川県川崎市高津区二子3丁目 -
12.8万円
128,000円
-
1K
神奈川県川崎市高津区二子3丁目 -
13.2万円
132,000円
1.0ヶ月
1DK
神奈川県川崎市高津区諏訪1丁目 -
9.9万円
99,000円
1.0ヶ月
1R
神奈川県川崎市高津区久本3丁目 -
12.8万円
128,000円
-
1K
神奈川県川崎市高津区二子3丁目 -
13.3万円
133,000円
1.0ヶ月
1DK
神奈川県川崎市高津区諏訪1丁目 -
9.8万円
-
1.0ヶ月
1K
神奈川県川崎市高津区久本2丁目 -
9.0万円
90,000円
1.0ヶ月
1K
神奈川県川崎市高津区溝口2丁目
店舗情報
お電話での物件問い合わせは無料通話で!(直営店のみ)
0001-S000106003-0003
- 溝ノ口店
-
この物件で来店予約- 来店予約フォーム -
-
無料通話番号を表示
- 東急田園都市線 溝の口駅(徒歩3分)
- Tel: 044-820-0532
- 店舗詳細情報
このお部屋にお問い合わせ
あわせて店舗への来店を希望のお客様は、上の希望店舗の来店予約フォームをご利用ください(直営店舗のみ)
Sorry,Japanese & English only. 日本語・英語のみ対応しております。ご了承ください。
- ※取扱形態は媒介(先物)です。 / お部屋の情報は随時更新です / 各種情報と現況に差異がある場合は、現況優先となります。 / 保証会社の審査があります。 / 契約一時金は、契約時に借主より貸主に支払われ返還されない金銭です。

この物件のかんたんお問合せフォーム
お電話でお問合せ(無料)
外観・間取り図

























神奈川県川崎市高津区諏訪3丁目