ブランシエスタ新丸子リバーフロント 物件詳細情報
| 沿線・駅 所在地 |
賃料 共益費(管理費) |
敷金 礼金 |
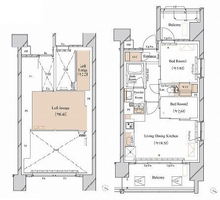
間取り 専有面積 |
種別 建築年月日 |
|
|---|---|---|---|---|---|
|
東急東横線 新丸子駅(徒歩8分)
神奈川県川崎市中原区上丸子八幡町 |
250,000円 20,000円 |
250,000円 250,000円 |
2LDK 42.03m2 |
マンション 2026年2月 |
|
ミニミニの仲介手数料は家賃の55%(税込)です。※直営店は全店対象。但し、駐車場・店舗・事務所・業者仲介及び紹介契約は対象外。※FC店舗は対象外ですので、各店にお問い合わせください。
この物件のお問い合わせ番号 0001-S000105311-0016
インターネット無料(つなぐネット)。屋上テラス、ワークスペース有!2駅5路線利用で通勤通学に便利!※内覧会については2026年2月20日、21日予定※1年未満解約時共込賃料1ヶ月分の違約金有。清掃代:39,600円※20u超+1,450円/u

- まいばすけっと丸子通1丁目店

- セブンイレブン新丸子店

- 武蔵小杉東急スクエア
設備
| 部屋設備 | TV付モニターホン / 下駄箱 / ガスコンロ(コンロ(2口)) / エアコン / フローリング / ウォークインクロゼット / 照明器具 / ベランダ / バルコニー / 洋式トイレ / シャワー / 浴室乾燥機 / 洗髪洗面化粧台 / 洗面化粧台 / 追焚き / バストイレ別 / 保証人不要 / 角部屋 / 2人入居 / シャワー付トイレ / 洗面所独立 / システムキッチン / オンライン内見 / オンライン接客 / IT重説 |
|---|---|
| 建物設備 | エレベータ / オートロック / 駐輪場 / 宅配ボックス / ペット可 / BSアンテナ / CSアンテナ / CATV / バイク置き場 / ネット利用料無料 / 防犯カメラ |
物件詳細
| 交通機関 | ・東急東横線 新丸子駅(徒歩8分) ・東急東横線 武蔵小杉駅(徒歩14分) ・南武線 武蔵小杉駅(徒歩15分) | ||||
|---|---|---|---|---|---|
| 構造 | RC造 | 方位 | 北東 | 階数/総階数 | 13階/15階建て |
| 総戸数 | - | 駐車場 | 27,500円 | 入居日 | 2026年2月下旬 |
| 環境 | 川崎市立上丸子小学校 (645m) / 川崎市立中原中学校 (996m) / しらかし保育園 (499m) / まいばすけっと丸子通1丁目店 (466m) / 川崎上丸子郵便局 (558m) / セブンイレブン新丸子店 (476m) / クスリのナカヤマ薬局新丸子駅前店 (794m) / ハンズビー武蔵小杉東急スクエア店 (1,537m) / 私立東京都市大学世田谷キャンパス (3,017m) / すき家新丸子駅東口店 (678m) / 武蔵小杉東急スクエア (1,497m) | ||||
| 内装代 | - | 償却 | 0円 | 保険 | 損保要 |
| 更新料 | 250,000円 | 水道料金等預かり金 | - | 特記事項 | - |
| 飲用水 | 公営 | ガス | 都市 | 排水 | 公共下水 |
| 給湯方式 | - | ||||
その他の費用
| 一時 | 消毒料:17,600円/駐車場紹介料:27,500円/清掃代※20u超+1,450円/u:39,600円/エアコン清掃費/基:16,500円 |
|---|---|
| 他 | 【収納代行】【新築プラン】初回保証料賃 料共益費等20%、以後1年毎20%月々口振事務手数料220円(税込)利用設 備利用料(駐車場・駐輪場等)も保証料算出賃料に含まれます。 |
この物件のお問い合わせ番号 0001-S000105311-0016
類似物件一覧
店舗情報
お電話での物件問い合わせは無料通話で!(直営店のみ)
0001-S000105311-0016
- 武蔵小杉店
-
この物件で来店予約- 来店予約フォーム -
-
無料通話番号を表示
- 東急東横線 武蔵小杉駅(徒歩3分)
- Tel: 044-738-3222
- 店舗詳細情報
このお部屋にお問い合わせ
あわせて店舗への来店を希望のお客様は、上の希望店舗の来店予約フォームをご利用ください(直営店舗のみ)
Sorry,Japanese & English only. 日本語・英語のみ対応しております。ご了承ください。
- ※取扱形態は媒介(先物)です。 / お部屋の情報は随時更新です / 各種情報と現況に差異がある場合は、現況優先となります。 / 保証会社の審査があります。 / 契約一時金は、契約時に借主より貸主に支払われ返還されない金銭です。

この物件のかんたんお問合せフォーム
お電話でお問合せ(無料)
外観・間取り図





神奈川県川崎市中原区井田1丁目