現在位置: [賃貸]お部屋探しのミニミニ > 愛知県 > 名古屋市中村区 > オープンレジデンシア横浜鶴見(0001-S000100001-0001)

オープンレジデンシア横浜鶴見 物件詳細情報

ミニミニマン このお部屋は募集を終了しました

ただいまこのお部屋は入居募集を終了しており、募集時の情報となっております。お部屋探しの参考としてご利用ください。募集が再度開始しましたら、こちらのページで詳細情報を掲載の上募集開始致します。情報掲載日:2025/10/10

沿線・駅
所在地
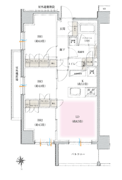
間取り
専有面積
種別
建築年月日
京浜東北・根岸線 鶴見駅(徒歩3分)
神奈川県横浜市鶴見区豊岡町
3DK
58.44m2
マンション
2025年9月

ミニミニの仲介手数料は家賃の55%(税込)です。※直営店は全店対象。但し、駐車場・店舗・事務所・業者仲介及び紹介契約は対象外。※FC店舗は対象外ですので、各店にお問い合わせください。

この物件のお問い合わせ番号 0001-S000100001-0001
このお部屋に似た物件を問い合わせる お電話でお問い合わせお電話でお問合せ(無料)
※お問合せ番号をお伝えください

間取り図間取り図

設備

部屋設備 ガス給湯 / 浴室給湯あり / キッチン給湯あり / 洗面所給湯あり / TV付モニターホン / インターホン / 下駄箱 / ガスコンロ / フローリング / バルコニー / 洋式トイレ / シャワー / 浴室乾燥機 / 洗髪洗面化粧台 / 追焚き / 室内洗濯機置場 / バストイレ別 / 保証人不要 / 角部屋 / 上位階なし / 2人入居 / シャワー付トイレ / クロゼット / 洗面所独立 / システムキッチン / オンライン内見 / オンライン接客 / IT重説
建物設備 特約有り / BSアンテナ / CATV

物件詳細

交通機関 ・京浜東北・根岸線 鶴見駅(徒歩3分) ・鶴見線 鶴見駅(徒歩3分)  ・京浜急行電鉄本線 京急鶴見駅(徒歩7分)
構造 RC造     総階数 10階建て
総戸数 -     入居日 入居不可(募集終了)
飲用水 公営 ガス 都市 排水 公共下水
給湯方式 ガス給湯(浴室給湯あり・キッチン給湯あり・洗面所給湯あり)
この物件のお問い合わせ番号 0001-S000100001-0001
このお部屋に似た物件を問い合わせる お電話でお問い合わせお電話でお問合せ(無料)
※お問合せ番号をお伝えください

店舗情報

お電話での物件問い合わせは無料通話で!(直営店のみ)

この物件のお問い合わせ番号 0001-S000100001-0001

このお部屋に似ている物件を問い合わせる

入力画面

あわせて店舗への来店を希望のお客様は、上の希望店舗の来店予約フォームをご利用ください(直営店舗のみ)

Sorry,Japanese & English only. 日本語・英語のみ対応しております。ご了承ください。

お問い合わせ内容【必須】 似た物件を探してほしい
内容【任意】

(全角800字以内)

お名前 (漢字)【必須】

(全角)

例) 山田太郎

お名前 (カナ)【必須】

(全角・スペースなし)

例) ヤマダタロウ

メールアドレス【必須】 (半角)

例) minimini-man@minimini.jp

ご連絡方法【必須】
電話番号
【連絡方法に電話を選択された方は必須】
(半角・ハイフンなし)

例) 0312345678

FAX番号
【連絡方法にFAXを選択された方は必須】
(半角・ハイフンなし)

例) 0312345678

プライバシー・ポリシー

※一度も来店されずにお部屋探し・各種サービスをご希望の場合は、情報漏洩の防止や契約の有効性確保の観点から事前に本人確認(身分証明書の提示)をお願いしております。
同意頂けない場合、各種サービスの提供ができないこともございます。予めご了承ください。

sectigo ssl

本サイトでのお客様の個人情報は、
SECTIGOのSSLにより保護しております。


お部屋探しダイヤル
通話料無料 ****-***-****
IP電話の方、お部屋探し以外のお客様は...
ミニミニ******-***-**** まで。