ザ・レジデンス横浜サウス 物件詳細情報
| 沿線・駅 所在地 |
賃料 共益費(管理費) |
敷金 礼金 |
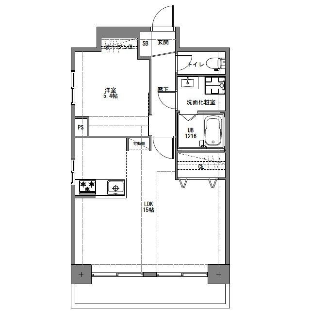
間取り 専有面積 |
種別 建築年月日 |
|
|---|---|---|---|---|---|
|
京浜急行電鉄本線 戸部駅(徒歩3分)
神奈川県横浜市西区戸部本町 |
200,000円 10,000円 |
200,000円 - |
1LDK 49.25m2 |
マンション 1987年10月 |
|
ミニミニの仲介手数料は家賃の55%(税込)です。※直営店は全店対象。但し、駐車場・店舗・事務所・業者仲介及び紹介契約は対象外。※FC店舗は対象外ですので、各店にお問い合わせください。
この物件のお問い合わせ番号 0001-S000088457-0006
横浜駅から徒歩13分!戸部駅より徒歩3分の好立地保ぢ【隣地新築工事】2024/10/2〜2026/6/30予定。 ※退去時ルームクリーニング費用39600円、20u超+1375円/u 解約違約金有

- ファミリーマート戸部駅東店
設備
| 部屋設備 | ガス給湯 / 浴室給湯あり / キッチン給湯あり / 洗面所給湯あり / TV付モニターホン / 下駄箱 / IHヒーター / ガスコンロ(コンロ(2口)) / エアコン / 照明器具 / ベランダ / バルコニー / 洋式トイレ / シャワー / 洗髪洗面化粧台 / 洗面化粧台 / 室内洗濯機置場 / バストイレ別 / 保証人不要 / 上位階なし / 2人入居 / シャワー付トイレ / クロゼット / 洗面所独立 / システムキッチン / オンライン内見 / オンライン接客 / IT重説 |
|---|---|
| 建物設備 | エレベータ / 駐輪場 / 宅配ボックス / CATV / バイク置き場 / 防犯カメラ |
物件詳細
| 交通機関 | ・京浜急行電鉄本線 戸部駅(徒歩3分) ・横浜市営地下鉄ブルーライン 高島町駅(徒歩4分) ・根岸線 横浜駅(徒歩13分) | ||||
|---|---|---|---|---|---|
| 構造 | RC造 | 方位 | 南 | 階数/総階数 | 10階/10階建て |
| 総戸数 | - | 駐車場 | - | 入居日 | 相談 |
| 環境 | ファミリーマート戸部駅東店 (249m) / 横浜市立平沼小学校 (574m) / 横浜市立西中学校 (900m) / グリーンポート桜木町保育園 (252m) / 横浜戸部本町郵便局 (267m) / まいばすけっと戸部駅南店 (334m) / マルイシティ横浜 (1,087m) / オーエスドラッグ横浜店 (1,140m) / ニトリみなとみらい店 (1,188m) / 藍屋横浜戸部店 (247m) | ||||
| 内装代 | - | 償却 | 0円 | 保険 | 損保要 |
| 更新料 | 200,000円 | 水道料金等預かり金 | - | 特記事項 | - |
| 飲用水 | 公営 | ガス | 都市 | 排水 | 公共下水 |
| 給湯方式 | ガス給湯(浴室給湯あり・キッチン給湯あり・洗面所給湯あり) | ||||
その他の費用
| 一時 | 鍵交換費用:16,500円/清掃代※20u超+1,375円/u:39,600円/エアコン清掃代/台:16,500円/消毒料:17,600円 |
|---|---|
| 他 | 保証委託料:月額賃料等の50%(最低保 証料2万円)、月額保証料:月額賃料等の1%(上限千円)利用設備(駐車場・バイ ク置き場)利用料も保証料算出賃料に含まれます。 |
この物件のお問い合わせ番号 0001-S000088457-0006
類似物件一覧
店舗情報
お電話での物件問い合わせは無料通話で!(直営店のみ)
0001-S000088457-0006
- 横浜西口店
-
この物件で来店予約- 来店予約フォーム -
-
無料通話番号を表示
- 東海道本線 横浜駅(徒歩7分)
- Tel: 045-323-3220
- 店舗詳細情報
このお部屋にお問い合わせ
あわせて店舗への来店を希望のお客様は、上の希望店舗の来店予約フォームをご利用ください(直営店舗のみ)
Sorry,Japanese & English only. 日本語・英語のみ対応しております。ご了承ください。
- ※取扱形態は媒介(先物)です。 / お部屋の情報は随時更新です / 各種情報と現況に差異がある場合は、現況優先となります。 / 保証会社の審査があります。 / 契約一時金は、契約時に借主より貸主に支払われ返還されない金銭です。

この物件のかんたんお問合せフォーム
お電話でお問合せ(無料)
外観・間取り図




神奈川県横浜市西区南幸2丁目