グラン・バレーナ 物件詳細情報
| 沿線・駅 所在地 |
賃料 共益費(管理費) |
敷金 礼金 |
間取り 専有面積 |
種別 建築年月日 |
|
|---|---|---|---|---|---|
|
南武線 武蔵新城駅(バス10分 ・子母口住宅前停、 徒歩4分)
神奈川県川崎市高津区子母口 |
93,000円 5,000円 |
93,000円 93,000円 |
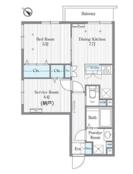
1SDK 42.44m2 |
マンション 2022年7月 |
|
ミニミニの仲介手数料は家賃の55%(税込)です。※直営店は全店対象。但し、駐車場・店舗・事務所・業者仲介及び紹介契約は対象外。※FC店舗は対象外ですので、各店にお問い合わせください。
この物件のお問い合わせ番号 0001-S000080207-0003
不審者の侵入に目を光らせる防犯カメラ完備、更におとなりさんの生活音が軽減される角部屋なので、漏れ聞こえる生活音に挟まれることなく快適。コンビニ・スーパーが近く生活に便利な立地です

- ローソン高津子母口東店
設備
| 部屋設備 | 浴室給湯あり / キッチン給湯あり / 洗面所給湯あり / TV付モニターホン / 下駄箱 / ガスコンロ / エアコン / ベランダ / バルコニー / 洋式トイレ / シャワー / 浴室乾燥機 / 洗面化粧台 / 追焚き / 室内洗濯機置場 / バストイレ別 / 角部屋 / シャワー付トイレ / クロゼット2ヶ所 / クロゼット / 全居室収納 / 洗面所独立 / カウンターキッチン / システムキッチン / オンライン内見 / オンライン接客 / IT重説 |
|---|---|
| 建物設備 | オートロック / 駐輪場 / 宅配ボックス / BSアンテナ / ネット利用料無料 / 防犯カメラ |
物件詳細
| 交通機関 | ・南武線 武蔵新城駅(バス10分 ・子母口住宅前停、 徒歩4分) ・南武線 武蔵中原駅(バス16分 ・子母口住宅前停、 徒歩4分) ・東急東横線 元住吉駅(徒歩35分) | ||||
|---|---|---|---|---|---|
| 構造 | 鉄骨造 | 方位 | 北東 | 階数/総階数 | 1階/3階建て |
| 総戸数 | 12戸 | 駐車場 | - | 入居日 | 2026年4月下旬 |
| 環境 | ローソン高津子母口東店 (340m) / 川崎市立子母口小学校 (779m) / 川崎市立東橘中学校 (780m) / たちばな幼稚園 (570m) / 神奈川県立新城高校 (1,641m) / 川崎市中原区役所 (3,095m) / 川崎子母口郵便局 (723m) / 川崎市立高津図書館橘分館 (483m) / ライフ子母口店 (428m) / サンドラッグ子母口店 (647m) / 和食レストランとんでん子母口店 (549m) / 西松屋川崎久末店 (387m) | ||||
| 内装代 | - | 償却 | 0円 | 保険 | 損保要 |
| 更新料 | 1.0ヶ月 | 水道料金等預かり金 | - | 特記事項 | - |
| 飲用水 | 公営 | ガス | 都市 | 排水 | 公共下水 |
| 給湯方式 | 浴室給湯あり・キッチン給湯あり・洗面所給湯あり | ||||
その他の費用
| 一時 | 清掃費:64,680円/エアコン清掃費:33,000円/消毒料:17,600円 |
|---|---|
| 他 | レジデンシャルパートナーズ保証料:賃料等の50%(最低2万)、月額保証・事務手数料:賃料等の1%( |
この物件のお問い合わせ番号 0001-S000080207-0003
類似物件一覧
-
9.8万円
-
1.0ヶ月
-
9.7万円
-
1.0ヶ月
1R
神奈川県川崎市高津区末長4丁目 -
7.6万円
76,000円
-
1K
神奈川県川崎市高津区下作延3丁目 -
9.8万円
-
1.0ヶ月
1R
神奈川県川崎市高津区末長4丁目 -
9.7万円
-
1.0ヶ月
1K
神奈川県川崎市高津区末長4丁目 -
8.5万円
85,000円
1.0ヶ月
1K
神奈川県川崎市高津区千年 -
9.9万円
-
1.0ヶ月
1K
神奈川県川崎市高津区末長4丁目 -
9.9万円
-
1.0ヶ月
1K
神奈川県川崎市高津区末長4丁目 -
9.9万円
-
1.0ヶ月
1K
神奈川県川崎市高津区末長4丁目 -
9.8万円
-
1.0ヶ月
1K
神奈川県川崎市高津区末長4丁目 -
8.6万円
86,000円
1.0ヶ月
1K
神奈川県川崎市高津区梶ケ谷1丁目 -
9.8万円
-
1.0ヶ月
1K
神奈川県川崎市高津区末長4丁目
店舗情報
お電話での物件問い合わせは無料通話で!(直営店のみ)
0001-S000080207-0003
- 溝ノ口店
-
この物件で来店予約- 来店予約フォーム -
-
無料通話番号を表示
- 東急田園都市線 溝の口駅(徒歩3分)
- Tel: 044-820-0532
- 店舗詳細情報
このお部屋にお問い合わせ
あわせて店舗への来店を希望のお客様は、上の希望店舗の来店予約フォームをご利用ください(直営店舗のみ)
Sorry,Japanese & English only. 日本語・英語のみ対応しております。ご了承ください。
- ※取扱形態は媒介(先物)です。 / お部屋の情報は随時更新です / 各種情報と現況に差異がある場合は、現況優先となります。 / 保証会社の審査があります。 / 契約一時金は、契約時に借主より貸主に支払われ返還されない金銭です。

この物件のかんたんお問合せフォーム
お電話でお問合せ(無料)
外観・間取り図



















神奈川県川崎市高津区末長4丁目