風雅(FUGA) 物件詳細情報
このお部屋は募集を終了しました
ただいまこのお部屋は入居募集を終了しており、募集時の情報となっております。お部屋探しの参考としてご利用ください。募集が再度開始しましたら、こちらのページで詳細情報を掲載の上募集開始致します。情報掲載日:2026/01/11
| 沿線・駅 所在地 |
間取り 専有面積 |
種別 建築年月日 |
|
|---|---|---|---|
|
相模鉄道本線 瀬谷駅(徒歩16分)
神奈川県横浜市瀬谷区東野 |
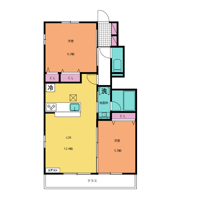
2LDK 54.03m2 |
コーポ 2023年8月 |
|
ミニミニの仲介手数料は家賃の55%(税込)です。※直営店は全店対象。但し、駐車場・店舗・事務所・業者仲介及び紹介契約は対象外。※FC店舗は対象外ですので、各店にお問い合わせください。
この物件のお問い合わせ番号 0001-S000057592-0002
設備
| 部屋設備 | ガス給湯 / 浴室給湯あり / キッチン給湯あり / 洗面所給湯あり / TV付モニターホン / 下駄箱 / エアコン / フローリング / 洋式トイレ / シャワー / 浴室乾燥機 / 洗髪洗面化粧台 / 追焚き / 室内洗濯機置場 / バストイレ別 / 角部屋 / 2人入居 / コンロ(コンロ(3口)) / シャワー付トイレ / クロゼット / 洗面所独立 / カウンターキッチン / システムキッチン / オンライン内見 / オンライン接客 / IT重説 |
|---|---|
| 建物設備 | オートロック / 駐輪場 / 宅配ボックス / ペット可 / BSアンテナ / ネット利用料無料 |
物件詳細
| 交通機関 | ・相模鉄道本線 瀬谷駅(徒歩16分) ・相模鉄道本線 三ツ境駅(徒歩20分) ・相模鉄道本線 希望ヶ丘駅(徒歩38分) | ||||
|---|---|---|---|---|---|
| 構造 | 軽量鉄骨造 | 総階数 | 2階建て | ||
| 総戸数 | 10戸 | 入居日 | 入居不可(募集終了) | ||
| 飲用水 | 公営 | ガス | 都市 | 排水 | 公共下水 |
| 給湯方式 | ガス給湯(浴室給湯あり・キッチン給湯あり・洗面所給湯あり) | ||||
この物件のお問い合わせ番号 0001-S000057592-0002
類似物件一覧
-
10.8万円
108,000円
2.0ヶ月
-
13.2万円
132,000円
2.0ヶ月
2LDK
神奈川県横浜市瀬谷区瀬谷1丁目 -
13.2万円
-
-
2LDK
神奈川県横浜市瀬谷区相沢3丁目 -
13.0万円
130,000円
2.0ヶ月
2LDK
神奈川県横浜市瀬谷区瀬谷1丁目 -
10.7万円
107,000円
2.0ヶ月
2LDK
神奈川県横浜市瀬谷区本郷3丁目 -
10.7万円
107,000円
2.0ヶ月
2LDK
神奈川県横浜市瀬谷区本郷3丁目 -
10.9万円
109,000円
2.0ヶ月
2LDK
神奈川県横浜市瀬谷区本郷3丁目 -
10.9万円
109,000円
2.0ヶ月
2LDK
神奈川県横浜市瀬谷区本郷3丁目 -
13.0万円
260,000円
1.0ヶ月
2DK
神奈川県横浜市瀬谷区瀬谷3丁目 -
10.8万円
108,000円
2.0ヶ月
2LDK
神奈川県横浜市瀬谷区本郷3丁目 -
10.9万円
109,000円
2.0ヶ月
2LDK
神奈川県横浜市瀬谷区本郷3丁目 -
13.5万円
135,000円
-
2LDK
神奈川県横浜市瀬谷区本郷2丁目
店舗情報
お電話での物件問い合わせは無料通話で!(直営店のみ)
0001-S000057592-0002
- 二俣川店
-
この物件で来店予約- 来店予約フォーム -
-
無料通話番号を表示
- 相模鉄道本線 二俣川駅(徒歩1分)
- Tel: 045-362-3232
- 店舗詳細情報
このお部屋に似ている物件を問い合わせる
あわせて店舗への来店を希望のお客様は、上の希望店舗の来店予約フォームをご利用ください(直営店舗のみ)
Sorry,Japanese & English only. 日本語・英語のみ対応しております。ご了承ください。
- ※各種情報と現況に差異がある場合は、現況優先となります。

似た物件を問い合わせる
お電話でお問合せ(無料)
間取り図

神奈川県横浜市瀬谷区本郷3丁目