ラティエラ武蔵小杉 物件詳細情報
| 沿線・駅 所在地 |
賃料 共益費(管理費) |
敷金 礼金 |
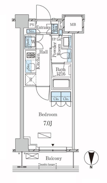
間取り 専有面積 |
種別 建築年月日 |
|
|---|---|---|---|---|---|
|
南武線 武蔵小杉駅(徒歩7分)
神奈川県川崎市中原区小杉町2丁目 |
143,000円 10,000円 |
143,000円 143,000円 |
1K 25.31m2 |
マンション 2022年11月 |
|
ミニミニの仲介手数料は家賃の55%(税込)です。※直営店は全店対象。但し、駐車場・店舗・事務所・業者仲介及び紹介契約は対象外。※FC店舗は対象外ですので、各店にお問い合わせください。
この物件のお問い合わせ番号 0001-S000043414-0005
交通、買い物便利な武蔵小杉駅まで徒歩7分の好立地オートロック、宅配ボックス、浴室乾燥など充実の設備

- 川崎市中原区役所

- 日本医科大学武蔵小杉病院
設備
| 部屋設備 | ガス給湯 / TV付モニターホン / 下駄箱 / ガスコンロ(コンロ(2口)) / エアコン / フローリング / ベランダ / バルコニー / 洋式トイレ / トイレ電源有 / シャワー / 浴室乾燥機 / 洗面化粧台 / 追焚き / 室内洗濯機置場 / バストイレ別 / 保証人不要 / クロゼット / 全居室収納 / 洗面所独立 / システムキッチン / オンライン内見 / オンライン接客 / IT重説 |
|---|---|
| 建物設備 | エレベータ / オートロック / エントランス / 駐輪場 / 宅配ボックス / バイク置き場 / 敷地内ゴミ置き場 / 防犯カメラ |
物件詳細
| 交通機関 | ・南武線 武蔵小杉駅(徒歩7分) ・東急東横線 新丸子駅(徒歩9分) ・南武線 武蔵中原駅(徒歩20分) | ||||
|---|---|---|---|---|---|
| 構造 | RC造 | 方位 | 北 | 階数/総階数 | 5階/6階建て |
| 総戸数 | 197戸 | 駐車場 | - | 入居日 | 2026年6月下旬 |
| 環境 | 私立大西学園小学校 (257m) / 私立大西学園中学校 (276m) / 大西学園幼稚園 (251m) / 私立大西学園高校 (281m) / 川崎市中原区役所 (539m) / 川崎小杉郵便局 (345m) / 日本医科大学武蔵小杉病院 (399m) / 三菱UFJ銀行武蔵小杉駅前支店 (519m) / まいばすけっと小杉町2丁目店 (170m) / ビオセボン武蔵小杉店 (597m) / セブンイレブンAIM日本医科大学武蔵小杉病院店 (399m) / マツモトキヨシ武蔵小杉駅北口店 (581m) | ||||
| 内装代 | - | 償却 | 0円 | 保険 | 損保要 |
| 更新料 | 1.0ヶ月 | 水道料金等預かり金 | - | 特記事項 | - |
| 飲用水 | 公営 | ガス | 都市 | 排水 | 公共下水 |
| 給湯方式 | ガス給湯 | ||||
その他の費用
| 毎月 | 口座振替事務手数料:220円 |
|---|---|
| 一時 | 玄関錠交換代:22,000円/通常清掃費用:44,000円/駐輪場ステッカー代:3,300円 |
| 他 | 家賃保証会社 初回保証料50% 継続保証料2年目以降1年毎10,000円 |
この物件のお問い合わせ番号 0001-S000043414-0005
類似物件一覧
-
14.5万円
-
-
-
17.4万円
174,000円
2.0ヶ月
1DK
神奈川県川崎市中原区新丸子町 -
15.5万円
155,000円
1.0ヶ月
1R
神奈川県川崎市中原区丸子通1丁目 -
13.9万円
139,000円
-
1K
神奈川県川崎市中原区丸子通1丁目 -
10.2万円
-
1.0ヶ月
1K
神奈川県川崎市中原区下小田中4丁目 -
13.5万円
135,000円
-
1K
神奈川県川崎市中原区丸子通1丁目 -
15.2万円
152,000円
1.0ヶ月
1R
神奈川県川崎市中原区丸子通1丁目 -
14.3万円
-
-
1R
神奈川県川崎市中原区丸子通1丁目 -
11.0万円
110,000円
1.0ヶ月
1K
神奈川県川崎市中原区上小田中3丁目 -
13.4万円
134,000円
-
1K
神奈川県川崎市中原区丸子通1丁目 -
11.1万円
-
1.0ヶ月
1K
神奈川県川崎市中原区宮内4丁目 -
13.2万円
132,000円
-
1K
神奈川県川崎市中原区今井上町
店舗情報
お電話での物件問い合わせは無料通話で!(直営店のみ)
0001-S000043414-0005
- 中部法人部
- 0800-888-3215
- 愛知県名古屋市中区錦3丁目16−27 栄パークサイドプレイス12F
このお部屋にお問い合わせ
あわせて店舗への来店を希望のお客様は、上の希望店舗の来店予約フォームをご利用ください(直営店舗のみ)
Sorry,Japanese & English only. 日本語・英語のみ対応しております。ご了承ください。
- ※取扱形態は媒介(先物)です。 / お部屋の情報は随時更新です / 各種情報と現況に差異がある場合は、現況優先となります。 / 保証会社の審査があります。 / 契約一時金は、契約時に借主より貸主に支払われ返還されない金銭です。

この物件のかんたんお問合せフォーム
お電話でお問合せ(法人用)
外観・間取り図




















神奈川県川崎市中原区丸子通1丁目