レジディア自由が丘 物件詳細情報
| 沿線・駅 所在地 |
賃料 共益費(管理費) |
敷金 礼金 |
間取り 専有面積 |
種別 建築年月日 |
|
|---|---|---|---|---|---|
|
東急東横線 自由が丘駅(徒歩9分)
東京都目黒区中根1丁目 |
300,000円 25,000円 |
300,000円 300,000円 |
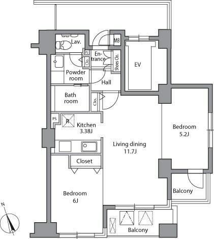
2LDK 54.80m2 |
マンション 2002年4月 |
|
ミニミニの仲介手数料は家賃の55%(税込)です。※直営店は全店対象。但し、駐車場・店舗・事務所・業者仲介及び紹介契約は対象外。※FC店舗は対象外ですので、各店にお問い合わせください。
この物件のお問い合わせ番号 0001-1310803834-0005
新しい技術や感性を取り入れたアップデート済みリノベーションの物件、更にリモートでのやりとりだから対面では聞きづらいことも聞けるIT重説対応なので、転勤先でもリモートで契約手続きができます。ダブルロック・防犯カメラ・外壁タイル張りのオートロックM。

- デニーズ

- 大黒屋

- ザ・ガーデン自由が丘

- 若草幼稚園

- 区立宮前小学校

- 私立八雲学園中学校
設備
| 部屋設備 | ガス給湯 / 浴室給湯あり / キッチン給湯あり / TV付モニターホン / インターホン / 下駄箱 / ガスコンロ / エアコン / フローリング / 浴室乾燥機 / 追焚き / 室内洗濯機置場 / バストイレ別 / シャワー付トイレ / クロゼット / システムキッチン / オンライン内見 / オンライン接客 / IT重説 |
|---|---|
| 建物設備 | エレベータ / オートロック / エントランス / 駐輪場 / 宅配ボックス / BSアンテナ / CATV / 防犯カメラ |
物件詳細
| 交通機関 | ・東急東横線 自由が丘駅(徒歩9分) ・東急東横線 都立大学駅(徒歩12分) ・東急東横線 田園調布駅(徒歩26分) | ||||
|---|---|---|---|---|---|
| 構造 | SRC造 | 方位 | 南 | 階数/総階数 | 7階/10階建て |
| 総戸数 | 28戸 | 駐車場 | - | 入居日 | 相談 |
| 環境 | デニーズ (90m) / 大黒屋 (140m) / ザ・ガーデン自由が丘 (150m) / 八雲二郵便局 (520m) / ローソン (480m) / 若草幼稚園 (140m) / 区立宮前小学校 (290m) / 私立八雲学園中学校 (770m) | ||||
| 内装代 | - | 償却 | 0円 | 保険 | 損保要 |
| 更新料 | 300,000円 | 水道料金等預かり金 | - | 特記事項 | - |
| 飲用水 | 公営 | ガス | 都市 | 排水 | 公共下水 |
| 給湯方式 | ガス給湯(浴室給湯あり・キッチン給湯あり) | ||||
その他の費用
| 一時 | 鍵交換料:36,000円/鍵交換費:29,700円 |
|---|---|
| 他 | 加入要 初回契約時:40%、更新時:10,000円、月額:1,000円、※保証会社の更新は1年毎となります |
この物件のお問い合わせ番号 0001-1310803834-0005
類似物件一覧
-
23.5万円
1.0ヶ月
-
-
35.7万円
357,000円
-
2SLDK
東京都目黒区中根1丁目 -
38.0万円
380,000円
-
2SLDK
東京都目黒区中根1丁目 -
23.0万円
2.0ヶ月
1.0ヶ月
2LDK
東京都目黒区碑文谷6丁目 -
37.9万円
379,000円
-
2SLDK
東京都目黒区中根1丁目 -
35.0万円
-
-
2LDK
東京都目黒区目黒本町2丁目 -
27.0万円
270,000円
1.0ヶ月
2LDK
東京都目黒区柿の木坂1丁目 -
35.7万円
357,000円
-
2SLDK
東京都目黒区中根1丁目 -
23.5万円
1.0ヶ月
-
2LDK
東京都目黒区五本木3丁目 -
28.0万円
-
-
2LDK
東京都目黒区自由が丘2丁目 -
35.6万円
356,000円
-
2SLDK
東京都目黒区中根1丁目 -
28.0万円
-
-
2LDK
東京都目黒区自由が丘2丁目
店舗情報
お電話での物件問い合わせは無料通話で!(直営店のみ)
0001-1310803834-0005
- 三重法人部
- 059-356-8041
- 三重県四日市市鵜の森1丁目1-19太平洋鵜の森ビル5階
このお部屋にお問い合わせ
あわせて店舗への来店を希望のお客様は、上の希望店舗の来店予約フォームをご利用ください(直営店舗のみ)
Sorry,Japanese & English only. 日本語・英語のみ対応しております。ご了承ください。
- ※取扱形態は媒介(先物)です。 / お部屋の情報は随時更新です / 各種情報と現況に差異がある場合は、現況優先となります。 / 保証会社の審査があります。 / 契約一時金は、契約時に借主より貸主に支払われ返還されない金銭です。

この物件のかんたんお問合せフォーム
お電話でお問合せ(法人用)
外観・間取り図

















東京都目黒区五本木3丁目