アジールコート都立大学 物件詳細情報
| 沿線・駅 所在地 |
賃料 共益費(管理費) |
敷金 礼金 |
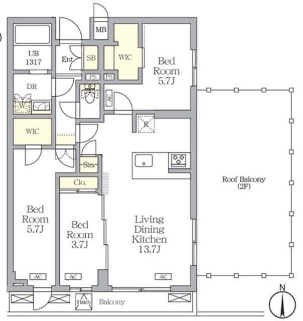
間取り 専有面積 |
種別 建築年月日 |
|
|---|---|---|---|---|---|
|
東急東横線 都立大学駅(徒歩7分)
東京都目黒区中根1丁目 |
387,000円 20,000円 |
387,000円 - |
3LDK 65.90m2 |
マンション 2025年10月 |
|
ミニミニの仲介手数料は家賃の55%(税込)です。※直営店は全店対象。但し、駐車場・店舗・事務所・業者仲介及び紹介契約は対象外。※FC店舗は対象外ですので、各店にお問い合わせください。
この物件のお問い合わせ番号 0001-S000110604-0006
やすらぎに満ちた日常を叶える都立大学駅☆ 設備の充実した新築マンションで新生活を楽しみましょう!リビング、各寝室全室にエアコン設置済♪♪ 2月末まで礼金0円キャンペーン中です☆

- いなげや目黒八雲店

- ナチュラルローソン八雲三丁目店

- 調剤薬局ツルハドラッグ都立大学店
設備
| 部屋設備 | ガス給湯 / 浴室給湯あり / キッチン給湯あり / 洗面所給湯あり / TV付モニターホン / インターホン / 下駄箱 / ガスコンロ(コンロ(2口)) / エアコン / フローリング / ウォークインクロゼット / 照明器具 / ベランダ / バルコニー / 洋式トイレ / トイレ電源有 / 浴室乾燥機 / 洗面化粧台 / 追焚き / 室内洗濯機置場 / バストイレ別 / 保証人不要 / 角部屋 / 2人入居 / シャワー付トイレ / クロゼット2ヶ所 / クロゼット3ヶ所 / クロゼット / 全居室収納 / 洗面所独立 / 地下室 / ルーフバルコニー / カウンターキッチン / システムキッチン / オンライン内見 / オンライン接客 / IT重説 |
|---|---|
| 建物設備 | 光ファイバー(VDSL) / エレベータ / オートロック / 駐輪場 / 宅配ボックス / ペット可(犬・猫可) / 高齢者可 / ネット利用料無料 / ネット環境(光ファイバ対応) / BSアンテナ / バイク置き場 / 巡回管理 / 敷地内ゴミ置き場 / 防犯カメラ |
物件詳細
| 交通機関 | ・東急東横線 都立大学駅(徒歩7分) ・東急大井町線 自由が丘駅(徒歩13分) ・東急目黒線 奥沢駅(徒歩19分) | ||||
|---|---|---|---|---|---|
| 構造 | RC造 | 方位 | 南 | 階数/総階数 | 4階/4階建て |
| 総戸数 | 30戸 | 駐車場 | - | 入居日 | 即入居可 |
| 環境 | 目黒区立八雲小学校 (472m) / 私立八雲学園中学校 (653m) / マグハウス都立大学 (508m) / 医療法人財団日扇会第一病院 (398m) / いなげや目黒八雲店 (368m) / ナチュラルローソン八雲三丁目店 (442m) / 調剤薬局ツルハドラッグ都立大学店 (474m) / ヤマダデンキLABI自由が丘 (730m) | ||||
| 内装代 | - | 償却 | 0円 | 保険 | 損保要 |
| 更新料 | 387,000円 | 水道料金等預かり金 | - | 特記事項 | - |
| 飲用水 | 公営 | ガス | 都市 | 排水 | 公共下水 |
| 給湯方式 | ガス給湯(浴室給湯あり・キッチン給湯あり・洗面所給湯あり) | ||||
その他の費用
| 一時 | M-REALプレミアム会費:19,800円/M-REALプレミアム会費2年:19,800円 |
|---|---|
| 他 | 加入要 当社指定:初期費用は賃料等の50%、月次保証料は賃料等の1%。その他保証会社条件有 |
この物件のお問い合わせ番号 0001-S000110604-0006
類似物件一覧
店舗情報
お電話での物件問い合わせは無料通話で!(直営店のみ)
0001-S000110604-0006
- 自由が丘店
-
この物件で来店予約- 来店予約フォーム -
-
無料通話番号を表示
- 東急東横線 自由が丘駅(徒歩1分)
- Tel: 03-5729-3232
- 店舗詳細情報
このお部屋にお問い合わせ
あわせて店舗への来店を希望のお客様は、上の希望店舗の来店予約フォームをご利用ください(直営店舗のみ)
Sorry,Japanese & English only. 日本語・英語のみ対応しております。ご了承ください。
- ※取扱形態は媒介(先物)です。 / お部屋の情報は随時更新です / 各種情報と現況に差異がある場合は、現況優先となります。 / 保証会社の審査があります。 / 契約一時金は、契約時に借主より貸主に支払われ返還されない金銭です。

この物件のかんたんお問合せフォーム
お電話でお問合せ(無料)
外観・間取り図






















東京都目黒区柿の木坂1丁目