Prima Stella 物件詳細情報
| 沿線・駅 所在地 |
賃料 共益費(管理費) |
敷金 礼金 |
間取り 専有面積 |
種別 建築年月日 |
|
|---|---|---|---|---|---|
|
東京メトロ丸ノ内線 西新宿駅(徒歩5分)
東京都新宿区西新宿8丁目 |
326,000円 10,000円 |
1.0ヶ月 1.0ヶ月 |
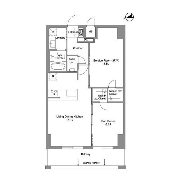
1SLDK 62.13m2 |
マンション 2025年7月 |
|
ミニミニの仲介手数料は家賃の55%(税込)です。※直営店は全店対象。但し、駐車場・店舗・事務所・業者仲介及び紹介契約は対象外。※FC店舗は対象外ですので、各店にお問い合わせください。
この物件のお問い合わせ番号 0001-S000108981-0001
外観・間取り図
情報登録日:2026/01/26 情報更新日:2026/01/29 次回更新予定日:2026/02/05
設備
| 部屋設備 | TV付モニターホン / 下駄箱 / エアコン / ウォークインクロゼット / トランクルーム / 浴室乾燥機 / 追焚き / 室内洗濯機置場 / バストイレ別 / シャワー付トイレ / システムキッチン / オンライン内見 / オンライン接客 / IT重説 |
|---|---|
| 建物設備 | オートロック / 駐輪場 / 宅配ボックス / BSアンテナ / CSアンテナ / ネット利用料無料 / 敷地内ゴミ置き場 / 防犯カメラ |
物件詳細
| 交通機関 | ・東京メトロ丸ノ内線 西新宿駅(徒歩5分) ・総武・中央緩行線 大久保駅(徒歩6分) ・都営地下鉄大江戸線 新宿西口駅(徒歩8分) | ||||
|---|---|---|---|---|---|
| 構造 | RC造 | 方位 | 北西 | 階数/総階数 | 8階/14階建て |
| 総戸数 | 67戸 | 駐車場 | - | 入居日 | 即入居可 |
| 環境 | |||||
| 内装代 | - | 償却 | 0円 | 保険 | 損保要 |
| 更新料 | - | 水道料金等預かり金 | - | 特記事項 | - |
| 飲用水 | 公営 | ガス | 都市 | 排水 | 公共下水 |
| 給湯方式 | - | ||||
その他の費用
| 他 | 利用必須備考:保証料:賃料等の50%(最低2万)、月額保証料:賃料等の1%(更新料無) |
|---|
この物件のお問い合わせ番号 0001-S000108981-0001
類似物件一覧
店舗情報
お電話での物件問い合わせは無料通話で!(直営店のみ)
0001-S000108981-0001
- 下北沢店
-
この物件で来店予約- 来店予約フォーム -
-
無料通話番号を表示
- 小田急電鉄小田原線 下北沢駅(徒歩1分)
- Tel: 03-3481-3200
- 店舗詳細情報
このお部屋にお問い合わせ
あわせて店舗への来店を希望のお客様は、上の希望店舗の来店予約フォームをご利用ください(直営店舗のみ)
Sorry,Japanese & English only. 日本語・英語のみ対応しております。ご了承ください。
- ※取扱形態は媒介(先物)です。 / お部屋の情報は随時更新です / 各種情報と現況に差異がある場合は、現況優先となります。 / 保証会社の審査があります。 / 契約一時金は、契約時に借主より貸主に支払われ返還されない金銭です。

この物件のかんたんお問合せフォーム
お電話でお問合せ(無料)




















東京都新宿区西新宿8丁目