ザ・パークハビオ麻布十番 物件詳細情報
| 沿線・駅 所在地 |
賃料 共益費(管理費) |
敷金 礼金 |
間取り 専有面積 |
種別 建築年月日 |
|
|---|---|---|---|---|---|
|
都営地下鉄大江戸線 麻布十番駅(徒歩4分)
東京都港区六本木5丁目 |
380,000円 25,000円 |
1.0ヶ月 - |
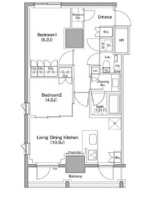
2LDK 52.45m2 |
マンション 2021年10月 |
|
ミニミニの仲介手数料は家賃の55%(税込)です。※直営店は全店対象。但し、駐車場・店舗・事務所・業者仲介及び紹介契約は対象外。※FC店舗は対象外ですので、各店にお問い合わせください。
この物件のお問い合わせ番号 0001-S000084555-0007
広々とした2LDKオートロック付きマンション♪

- 私立東洋英和女学院小学部

- 私立東洋英和女学院中学部

- 三菱UFJ銀行麻布支店
設備
| 部屋設備 | ガス給湯 / 浴室給湯あり / キッチン給湯あり / 洗面所給湯あり / TV付モニターホン / インターホン / 下駄箱 / ガスコンロ(コンロ(3口)) / エアコン / フローリング / 照明器具 / ベランダ / バルコニー / 洋式トイレ / シャワー / 浴室乾燥機 / 洗面化粧台 / 追焚き / 室内洗濯機置場 / バストイレ別 / 保証人不要 / シャワー付トイレ / クロゼット2ヶ所 / クロゼット / 洗面所独立 / システムキッチン / オンライン内見 / オンライン接客 / IT重説 |
|---|---|
| 建物設備 | エレベータ / オートロック / エントランス / 駐輪場 / 宅配ボックス / ペット可 / 敷地内ゴミ置き場 / 防犯カメラ |
物件詳細
| 交通機関 | ・都営地下鉄大江戸線 麻布十番駅(徒歩4分) ・東京メトロ南北線 六本木一丁目駅(徒歩9分) ・東京メトロ日比谷線 六本木駅(徒歩10分) | ||||
|---|---|---|---|---|---|
| 構造 | RC造 | 方位 | 東 | 階数/総階数 | 12階/14階建て |
| 総戸数 | 106戸 | 駐車場 | - | 入居日 | 2026年1月下旬 |
| 環境 | 私立東洋英和女学院小学部 (515m) / 私立東洋英和女学院中学部 (228m) / 公益財団法人心臓血管研究所付属病院 (1,216m) / 三菱UFJ銀行麻布支店 (448m) / 信濃屋六本木ヒルズ店 (745m) / ファミリーマート一の橋店 (394m) / バーニーズニューヨーク六本木店 (1,169m) / くすりの福太郎麻布十番店 (482m) / HIDA東京神谷町店 (1,408m) / SHIBUYA TSUTAYA (3,995m) / フレッシュネスバーガー麻布十番店 (357m) / AXISビル (308m) | ||||
| 内装代 | - | 償却 | 0円 | 保険 | 損保要 |
| 更新料 | 1.0ヶ月 | 水道料金等預かり金 | - | 特記事項 | - |
| 飲用水 | 公営 | ガス | 都市 | 排水 | 公共下水 |
| 給湯方式 | ガス給湯(浴室給湯あり・キッチン給湯あり・洗面所給湯あり) | ||||
その他の費用
| 一時 | 鍵交換料:33,000円 |
|---|---|
| 他 | 賃料等合計額の40%(最低保証料2万円)2年目以降:1年毎8千円 |
この物件のお問い合わせ番号 0001-S000084555-0007
類似物件一覧
店舗情報
お電話での物件問い合わせは無料通話で!(直営店のみ)
0001-S000084555-0007
- 麻布店
-
この物件で来店予約- 来店予約フォーム -
-
無料通話番号を表示
- 東京メトロ南北線 麻布十番駅(徒歩2分)
- Tel: 03-5484-3232
- 店舗詳細情報
このお部屋にお問い合わせ
あわせて店舗への来店を希望のお客様は、上の希望店舗の来店予約フォームをご利用ください(直営店舗のみ)
Sorry,Japanese & English only. 日本語・英語のみ対応しております。ご了承ください。
- ※取扱形態は媒介(先物)です。 / お部屋の情報は随時更新です / 各種情報と現況に差異がある場合は、現況優先となります。 / 保証会社の審査があります。 / 契約一時金は、契約時に借主より貸主に支払われ返還されない金銭です。

この物件のかんたんお問合せフォーム
お電話でお問合せ(無料)
外観・間取り図

























東京都港区白金台5丁目