エミリブ鷺ノ宮 物件詳細情報
| 沿線・駅 所在地 |
賃料 共益費(管理費) |
敷金 礼金 |
間取り 専有面積 |
種別 建築年月日 |
|
|---|---|---|---|---|---|
|
西武新宿線 鷺ノ宮駅(徒歩3分)
東京都中野区白鷺1丁目 |
198,000円 12,000円 |
198,000円 - |
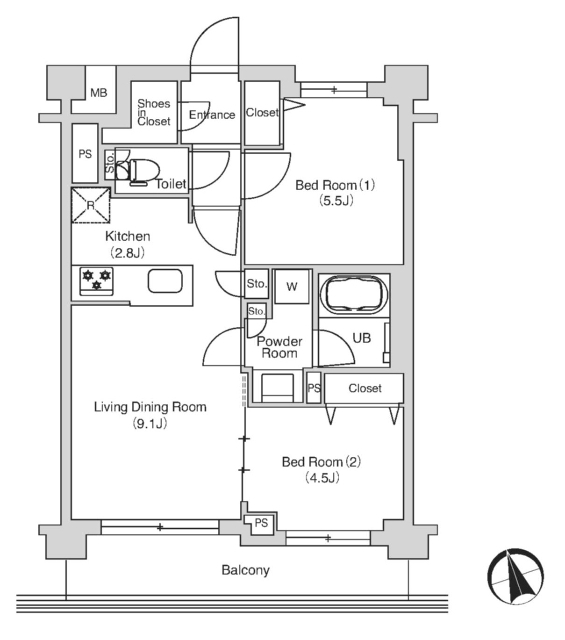
2LDK 50.55m2 |
マンション 2018年3月 |
|
ミニミニの仲介手数料は家賃の55%(税込)です。※直営店は全店対象。但し、駐車場・店舗・事務所・業者仲介及び紹介契約は対象外。※FC店舗は対象外ですので、各店にお問い合わせください。
この物件のお問い合わせ番号 0001-1310870750-0013
再契約可能(再契約料新賃料の1ヶ月分)人気の水回り設備充実。エレベーター、宅配ボックス、オートロック等共用設備も充実のファミリー向けマンションです。

- 中野区立鷺の杜小学校

- 杉並区立東原中学校

- 東京都立鷺宮高校

- 練馬警察署

- 医療法人社団三成会河北前田病院

- ルミネ荻窪店
パノラマ
設備
| 部屋設備 | ガス給湯 / 浴室給湯あり / キッチン給湯あり / 洗面所給湯あり / TV付モニターホン / 下駄箱 / ガスコンロ(コンロ(3口)) / エアコン / フローリング / バルコニー / 洋式トイレ / シャワー / 浴室乾燥機 / 洗髪洗面化粧台 / 追焚き / 室内洗濯機置場 / バストイレ別 / 保証人不要 / 2人入居 / シャワー付トイレ / クロゼット / 洗面所独立 / システムキッチン / オンライン内見 / オンライン接客 / IT重説 |
|---|---|
| 建物設備 | エレベータ / オートロック / 駐輪場 / 宅配ボックス / 防犯カメラ |
物件詳細
| 交通機関 | ・西武新宿線 鷺ノ宮駅(徒歩3分) ・西武新宿線 都立家政駅(徒歩9分) ・西武新宿線 下井草駅(徒歩20分) | ||||
|---|---|---|---|---|---|
| 構造 | RC造 | 方位 | 南 | 階数/総階数 | 2階/10階建て |
| 総戸数 | 70戸 | 駐車場 | 24,200円 | 入居日 | 即入居可 |
| 環境 | 中野区立鷺の杜小学校 (602m) / 杉並区立東原中学校 (854m) / 東京都立鷺宮高校 (827m) / 練馬警察署 (3,035m) / 医療法人社団三成会河北前田病院 (1,158m) / ルミネ荻窪店 (2,975m) | ||||
| 内装代 | - | 償却 | 0円 | 保険 | 損保要 |
| 更新料 | - | 水道料金等預かり金 | - | 特記事項 | 定期建物賃貸借物件 |
| 飲用水 | 公営 | ガス | 都市 | 排水 | 公共下水 |
| 給湯方式 | ガス給湯(浴室給湯あり・キッチン給湯あり・洗面所給湯あり) | ||||
その他の費用
| 一時 | 鍵発行手数料:16,500円 |
|---|---|
| 他 | 家賃保証会社 初回保証料40% |
この物件のお問い合わせ番号 0001-1310870750-0013
類似物件一覧
-
20.9万円
209,000円
-
-
19.4万円
-
2.0ヶ月
2LDK
東京都中野区白鷺3丁目 -
19.4万円
-
2.0ヶ月
2LDK
東京都中野区白鷺3丁目 -
18.8万円
-
2.0ヶ月
2LDK
東京都中野区鷺宮3丁目 -
18.5万円
185,000円
1.0ヶ月
2LDK
東京都中野区鷺宮3丁目 -
22.4万円
224,000円
1.0ヶ月
2LDK
東京都中野区中野3丁目 -
16.0万円
160,000円
1.0ヶ月
2DK
東京都中野区東中野1丁目 -
19.2万円
-
2.0ヶ月
2LDK
東京都中野区白鷺3丁目 -
21.1万円
211,000円
-
2LDK
東京都中野区本町5丁目 -
22.0万円
220,000円
1.0ヶ月
2LDK
東京都中野区本町2丁目 -
15.0万円
150,000円
-
2LDK
東京都中野区新井1丁目
店舗情報
お電話での物件問い合わせは無料通話で!(直営店のみ)
0001-1310870750-0013
- 高円寺店
-
この物件で来店予約- 来店予約フォーム -
-
無料通話番号を表示
- 中央本線 高円寺駅(徒歩1分)
- Tel: 03-3313-3322
- 店舗詳細情報
このお部屋にお問い合わせ
あわせて店舗への来店を希望のお客様は、上の希望店舗の来店予約フォームをご利用ください(直営店舗のみ)
Sorry,Japanese & English only. 日本語・英語のみ対応しております。ご了承ください。
- ※取扱形態は媒介(先物)です。 / お部屋の情報は随時更新です / 各種情報と現況に差異がある場合は、現況優先となります。 / 保証会社の審査があります。 / 契約一時金は、契約時に借主より貸主に支払われ返還されない金銭です。

この物件のかんたんお問合せフォーム
お電話でお問合せ(無料)
外観・間取り図

























東京都中野区本町5丁目