ザ・パークハビオ中野富士見町ガーデン 物件詳細情報
| 沿線・駅 所在地 |
賃料 共益費(管理費) |
敷金 礼金 |
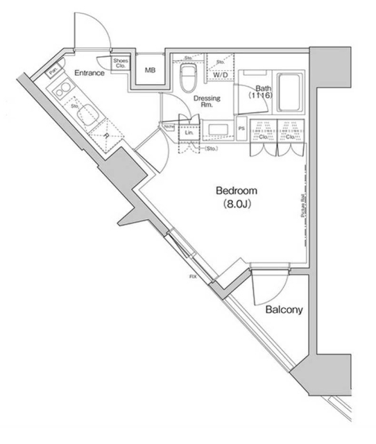
間取り 専有面積 |
種別 建築年月日 |
|
|---|---|---|---|---|---|
|
東京メトロ方南支線 中野富士見町駅(徒歩3分)
東京都中野区弥生町2丁目 |
144,000円 15,000円 |
144,000円 - |
1K 26.83m2 |
マンション 2023年8月 |
|
ミニミニの仲介手数料は家賃の55%(税込)です。※直営店は全店対象。但し、駐車場・店舗・事務所・業者仲介及び紹介契約は対象外。※FC店舗は対象外ですので、各店にお問い合わせください。
この物件のお問い合わせ番号 0001-S000093289-0012
ミニミニ新宿店、03-3340-3210にお問い合わせください。

- 中野本町五郵便局
パノラマ
設備
| 部屋設備 | ガス給湯 / 浴室給湯あり / キッチン給湯あり / 洗面所給湯あり / TV付モニターホン / 下駄箱 / エアコン / フローリング / ベランダ / バルコニー / 洋式トイレ / シャワー / 浴室乾燥機 / 洗面化粧台 / 追焚き / 室内洗濯機置場 / バストイレ別 / 保証人不要 / コンロ(コンロ(2口)) / シャワー付トイレ / クロゼット / 洗面所独立 / システムキッチン / オンライン内見 / IT重説 |
|---|---|
| 建物設備 | エレベータ / オートロック / 駐輪場 / 宅配ボックス / バイク置き場 / 敷地内ゴミ置き場 / 防犯カメラ |
物件詳細
| 交通機関 | ・東京メトロ方南支線 中野富士見町駅(徒歩3分) ・東京メトロ丸ノ内線 新中野駅(徒歩10分) ・都営地下鉄大江戸線 中野坂上駅(徒歩19分) | ||||
|---|---|---|---|---|---|
| 構造 | RC造 | 方位 | 西 | 階数/総階数 | 6階/14階建て |
| 総戸数 | 115戸 | 駐車場 | 35,200円 | 入居日 | 2026年5月上旬 |
| 環境 | 中野本町五郵便局 (330m) / 業務スーパー中野弥生町店 (172m) / マルエツプチ杉並和田一丁目店 (398m) / ローソンストア100中野新橋店 (217m) / ファミリーマート中野富士見町駅前店 (240m) / ウエルシア中野富士見町駅前店 (162m) | ||||
| 内装代 | - | 償却 | 0円 | 保険 | 損保要 |
| 更新料 | 144,000円 | 水道料金等預かり金 | - | 特記事項 | - |
| 飲用水 | 公営 | ガス | 都市 | 排水 | 公共下水 |
| 給湯方式 | ガス給湯(浴室給湯あり・キッチン給湯あり・洗面所給湯あり) | ||||
その他の費用
| 他 | 家賃保証会社 初回保証料 賃料等(下限25,000円)50% |
|---|
この物件のお問い合わせ番号 0001-S000093289-0012
類似物件一覧
店舗情報
お電話での物件問い合わせは無料通話で!(直営店のみ)
0001-S000093289-0012
- 静岡法人部
- 054-654-3201
- 静岡県静岡市駿河区稲川2丁目1−32 セキスイハイム稲川ビルディング1階
このお部屋にお問い合わせ
あわせて店舗への来店を希望のお客様は、上の希望店舗の来店予約フォームをご利用ください(直営店舗のみ)
Sorry,Japanese & English only. 日本語・英語のみ対応しております。ご了承ください。
- ※取扱形態は媒介(先物)です。 / お部屋の情報は随時更新です / 各種情報と現況に差異がある場合は、現況優先となります。 / 保証会社の審査があります。 / 契約一時金は、契約時に借主より貸主に支払われ返還されない金銭です。

この物件のかんたんお問合せフォーム
お電話でお問合せ(法人用)
外観・間取り図




















東京都中野区弥生町3丁目