LASPACIO東陽町レジデンス 物件詳細情報
| 沿線・駅 所在地 |
賃料 共益費(管理費) |
敷金 礼金 |
間取り 専有面積 |
種別 建築年月日 |
|
|---|---|---|---|---|---|
|
東京メトロ東西線 木場駅(徒歩7分)
東京都江東区東陽5丁目 |
121,000円 10,000円 |
- - |
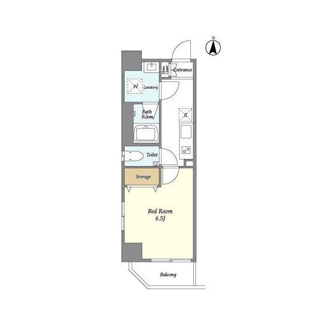
1R 26.67m2 |
マンション 2018年8月 |
|
ミニミニの仲介手数料は家賃の55%(税込)です。※直営店は全店対象。但し、駐車場・店舗・事務所・業者仲介及び紹介契約は対象外。※FC店舗は対象外ですので、各店にお問い合わせください。
この物件のお問い合わせ番号 0001-1310917718-0005
外観・間取り図
情報登録日:2026/02/09 情報更新日:2026/02/10 次回更新予定日:2026/02/17
設備
| 部屋設備 | TV付モニターホン / 洗面化粧台 / 室内洗濯機置場 / バストイレ別 / シャワー付トイレ / 洗面所独立 / オンライン内見 / オンライン接客 / IT重説 |
|---|---|
| 建物設備 | エレベータ / オートロック / 駐輪場 / 宅配ボックス / BSアンテナ / CSアンテナ / 敷地内ゴミ置き場 / 防犯カメラ |
物件詳細
| 交通機関 | ・東京メトロ東西線 木場駅(徒歩7分) ・東京メトロ東西線 東陽町駅(徒歩7分) | ||||
|---|---|---|---|---|---|
| 構造 | RC造 | 方位 | 南 | 階数/総階数 | 2階/8階建て |
| 総戸数 | 21戸 | 駐車場 | - | 入居日 | 2026年4月上旬 |
| 環境 | 江東区立東陽小学校 (349m) / 江東区立東陽中学校 (598m) / さくらさくみらい東陽町 (281m) / 東京都立深川高校 (369m) / 江東区役所 (597m) / 江東洲崎橋郵便局 (411m) / 江東区立東陽図書館 (860m) / 深川警察署 (896m) / 洲崎川緑道公園 (452m) / 医療法人社団修世会木場病院 (711m) / 三菱UFJ銀行木場深川支店 (587m) / まいばすけっと東陽5丁目店 (249m) / セブンイレブン江東東陽5丁目店 (181m) / 丸井錦糸町店 (3,071m) / くすりの福太郎東陽町3丁目店 (297m) / ノジマイトーヨーカドー木場店 (1,384m) / 私立東京保健医療専門職大学 (1,110m) / TSUTAYA門前仲町店 (1,313m) / キッチンオリジン東陽町店 (350m) / 東京イースト21 (897m) | ||||
| 内装代 | - | 償却 | 0円 | 保険 | 損保要 |
| 更新料 | 121,000円 | 水道料金等預かり金 | - | 特記事項 | - |
| 飲用水 | 公営 | ガス | 都市 | 排水 | 公共下水 |
| 給湯方式 | - | ||||
その他の費用
| 一時 | 鍵交換代:30,000円/消毒料:17,600円 |
|---|---|
| 他 | 毎月賃料等請求金額の合計40% 月額保証料:賃料等の1% |
この物件のお問い合わせ番号 0001-1310917718-0005
類似物件一覧
-
15.0万円
150,000円
-
-
13.4万円
-
-
1K
東京都江東区富岡2丁目 -
12.2万円
122,000円
1.0ヶ月
1K
東京都江東区亀戸2丁目 -
15.4万円
154,000円
-
1DK
東京都江東区大島4丁目 -
12.0万円
120,000円
-
1K
東京都江東区南砂7丁目 -
13.3万円
133,000円
-
1DK
東京都江東区大島4丁目 -
12.3万円
-
-
1K
東京都江東区木場6丁目 -
14.5万円
-
-
1K
東京都江東区清澄3丁目 -
13.6万円
136,000円
-
1DK
東京都江東区塩浜2丁目 -
9.2万円
92,000円
1.0ヶ月
1K
東京都江東区亀戸2丁目 -
11.2万円
112,000円
-
1K
東京都江東区福住1丁目 -
12.1万円
-
-
1K
東京都江東区大島3丁目
店舗情報
お電話での物件問い合わせは無料通話で!(直営店のみ)
0001-1310917718-0005
- 門前仲町店
-
この物件で見学予約- 見学予約フォーム -
-
無料通話番号を表示
- 東京メトロ東西線 門前仲町駅(徒歩1分)
- Tel: 03-5245-2232
- 店舗詳細情報
このお部屋にお問い合わせ
あわせて店舗への来店を希望のお客様は、上の希望店舗の来店予約フォームをご利用ください(直営店舗のみ)
Sorry,Japanese & English only. 日本語・英語のみ対応しております。ご了承ください。
- ※取扱形態は媒介(先物)です。 / お部屋の情報は随時更新です / 各種情報と現況に差異がある場合は、現況優先となります。 / 保証会社の審査があります。 / 契約一時金は、契約時に借主より貸主に支払われ返還されない金銭です。

この物件のかんたんお問合せフォーム
お電話でお問合せ(無料)







東京都江東区常盤2丁目